+ Lisa oma töö      

Otsid ehitajat "Põrandatööd" valdkonnast?

Parima pakkumise ja teostaja leidmiseks lisa oma töö.

Põranda vahetus

ID 120903

979 vaatamist

Prindi

  • check Pakkumiste tegemine
    kuni 11.08.2025
  • check Võitja valik kuni
    18.08.2025
  • 3 Töö teostamine
    ja hinnang
Hanke lõpp: E, 11. august, 2025
Maakond: Harjumaa
Tööde lõpp: Kokkuleppel
Ehitusmaterjalid: Töö tellija poolt
Soovin pakkumisi: Summa kogu projektile

Töö sisu

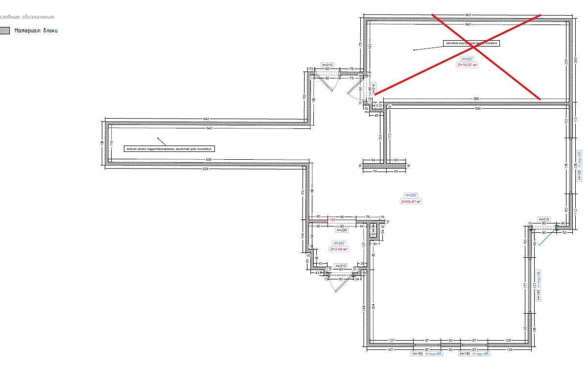
kogu koridori ja elutoa/köögi olemasoleva põrandakatte eemaldus(koridor/köök plaaditud, elutoaosa parkett), ahju kõrval oleva lesoimitatsiooni lammutamine,põrnada ettevalmistus ja uue naturaalparketi paigaldus. Uus kate on planeeritud naturaalparkett kalasabasse liimituna(14x120x600mm, matt lakk, 4-faasi) samuti liistude paigaldus kogu ulatuses.
Betoonpõrand milles on vesipõrandakütte torustik.
Põrandapinda ca. 59 ruutmeetrit.

Hind peab sisaldama vana põranda utiliseerimist ning samuti vajalikke töövahendeid/materjale(kaasaarvatud kõiki uue põranda ettevalmistuseks vajalikke materjale ). Tellija poolt elektriühendus, uue põranda materjal.

Pildid, video ja failid

Hanke korraldaja: eraisik ID21299

Pakkumised

Pakkumisi kokku: 1

Ettevõte Summa Käibemaks Lisatud Vestlus
Kasutaja ikoon ID72970
Pakkuja profiil Väike nool paremale
5 121€ Sisaldab KM Sisaldab KM 06.08.2025 Vestlus (5)

Pakkumise kirjeldus:

Tööde sisu:
Olemasoleva põrandakatte eemaldus koridorist ja elutoast/köögist (keraamilised plaadid ja vana parkett)

Ahju kõrval oleva lesoimitatsiooni lammutamine

Põrandapinna ettevalmistus


Uue naturaalparketi paigaldus kalasabamustris (14×120×600 mm, matt lakk, 4 faasi)

Liistude paigaldus kogu põranda ulatuses

Vana põrandakatte ... Rohkem

Küsimused hanke korraldajale

Hanke korraldajale ei ole veel küsimusi esitatud.

Lisa küsimus

Lisa küsimus

Minu pakkumine

Reeglid

Pakkumise kirjelduse väli on mõeldud pakkumise detailsemaks lahti kirjutamiseks. Pikema teksti mugavaks sisestamiseks klikkige kasti paremal ülaservas oleval ikoonil.
Pakkumist tehes on keelatud postitada enda kontaktandmeid (nimi, telefon, aadress jne). Me jälgime ja analüüsime pakkumisi, et vältida pettuseid ja reeglite rikkumisi.
Rikkumise puhul kasutajakonto blokeeritakse.

 

Teisi töid samas valdkonnas

Valdkonnas "Põrandatööd" on 2 aktiivset tööd

Talumaja põrandate valamine/ehitus koos küttetorustiku paigaldusega

Asukoht: Raplamaa, Purila
Aega jäänud: 16p 20h
Tehtud pakkumisi: 2

Põrandakütte paigaldus ja põrandavalu (kips või betoon)

Asukoht: Saaremaa, Muhu vald
Aega jäänud: 20h 40 min
Tehtud pakkumisi: 1

Vanemad teated:

Vaata kõiki

Sellel veebilehel kasutatakse küpsiseid. Kasutamist jätkates nõustute küpsiste kasutamisega.

Sulge
 
Minu pakkumine

Reeglid

Pakkumise kirjelduse väli on mõeldud pakkumise detailsemaks lahti kirjutamiseks. Pikema teksti mugavaks sisestamiseks klikkige kasti paremal ülaservas oleval ikoonil.
Pakkumist tehes on keelatud postitada enda kontaktandmeid (nimi, telefon, aadress jne). Me jälgime ja analüüsime pakkumisi, et vältida pettuseid ja reeglite rikkumisi.
Rikkumise puhul kasutajakonto blokeeritakse.