+ Lisa oma töö      

Otsid ehitajat "Vundamenditööd" valdkonnast?

Parima pakkumise ja teostaja leidmiseks lisa oma töö.

Hange on lõppenud!

Võitjaks osutus kasutaja ID 76534

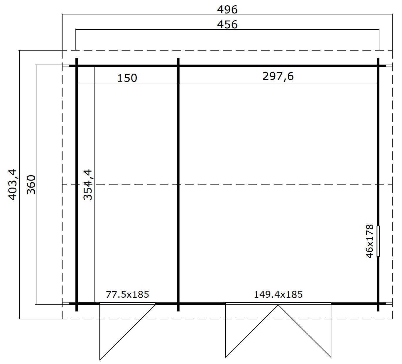
Postvundament kahele väikemajale (2x ~16rm)

ID 120522

740 vaatamist

Prindi

  • check Pakkumiste tegemine
    kuni 31.07.2025
  • check Võitja valik kuni
    07.08.2025
  • 3 Töö teostamine
    ja hinnang
Hanke lõpp: N, 31. juuli, 2025
Maakond: Tartumaa
Muu asula: Lepiku
Tööde lõpp: Kokkuleppel
Ehitusmaterjalid: Töö tegija poolt
Soovin pakkumisi: Summa kogu projektile

Töö sisu

Saan kopatööd ja põhja lasta eelnevalt ära teha vastavalt vundamendi ehitaja soovidele, et töö oleks kiirem ja mugavam ja sujuvam.

Pildid, video ja failid

Hanke korraldaja: eraisik ID92446

Pakkumised

Pakkumisi kokku: 2

Ettevõte Summa Käibemaks Lisatud Vestlus
Kasutaja ikoon ID78083
Pakkuja profiil Väike nool paremale
1 975€ Ei ole KMKR Ei ole KMKR 30.07.2025 Vestlus (0)

Pakkumise kirjeldus:

Tere
Teen pakkumise kahele vundamendile.
Venttorude paigaldus loodimine.
Armatuur vaia paigaldus betoneerimine .
Hind sisaldab materjali,materjali transporti objektile ja tööraha.

Kasutaja ikoon ID76534
Pakkuja profiil Väike nool paremale
1 720€ Ei ole KMKR Ei ole KMKR 30.07.2025 Vestlus (2)

Pakkumise kirjeldus:

Tere

Lisan pakkumisse kruvivaiade paigalduse koos materjaliga. Kruvivaiad kokku 27tk: kuurile 12tk ja domeo majale 15tk.
Kruvid paigaldan selliselt, et nende peale saaks minna kandma 50x100 aluskarkass kuhu peale läheks omakorda tehase 40x70 karkass. Selliselt jääks majad tugevalt postide peale kandma.

***Kui maapind pole pehme, siis saab ka majad ... Rohkem

Küsimused hanke korraldajale

Küsimus: private ID78083   30.07.2025 10:27
Tere
Postvundament siis fibo 5 plokkidest laotuna?

Teavita reeglite rikkumisest

Korraldaja vastus: 30.07.2025 10:31

Postid maasse ja loodi ja betooniga täita.

Teavita reeglite rikkumisest

Küsimus: private ID78083   30.07.2025 10:53
Põrandalaagide asetus joonist ei ole ?
Kahe maja peale kokku ~50 posti ?

Teavita reeglite rikkumisest

Korraldaja vastus: 30.07.2025 11:07

Kahjuks rohkem jooniseid mul pole. Tegemist on Lasita Maja väikemajadega "Carroz2" ja "Domeo3". Eeldan, et jah, ligikaudu nõndapalju.

Teavita reeglite rikkumisest

Küsimus: private ID76534   30.07.2025 21:23
Kruvivaiad oleks ka mõeldav? Oleksid selliste väiksemate majade puhul effektiivsemad ja tuleksid kokkuvõttes soodsamad.
Saaksime ka pakkuda majadele paigaldust ja kõike muud seonduvat majadega. Tegeleme ise igapäevaselt aiamajade paigaldusega.

Teavita reeglite rikkumisest

Korraldaja vastus: 30.07.2025 21:43

Ka kruvivaiad on täiesti mõeldavad, kui spetsialist peab seda sobivaks antud majadele. Saab läbi rääkida ka muid plaane tõesti.

Teavita reeglite rikkumisest

Lisa küsimus

Lisa küsimus

Minu pakkumine

Reeglid

Pakkumise kirjelduse väli on mõeldud pakkumise detailsemaks lahti kirjutamiseks. Pikema teksti mugavaks sisestamiseks klikkige kasti paremal ülaservas oleval ikoonil.
Pakkumist tehes on keelatud postitada enda kontaktandmeid (nimi, telefon, aadress jne). Me jälgime ja analüüsime pakkumisi, et vältida pettuseid ja reeglite rikkumisi.
Rikkumise puhul kasutajakonto blokeeritakse.

 

Vanemad teated:

Vaata kõiki

Sellel veebilehel kasutatakse küpsiseid. Kasutamist jätkates nõustute küpsiste kasutamisega.

Sulge
 
Minu pakkumine

Reeglid

Pakkumise kirjelduse väli on mõeldud pakkumise detailsemaks lahti kirjutamiseks. Pikema teksti mugavaks sisestamiseks klikkige kasti paremal ülaservas oleval ikoonil.
Pakkumist tehes on keelatud postitada enda kontaktandmeid (nimi, telefon, aadress jne). Me jälgime ja analüüsime pakkumisi, et vältida pettuseid ja reeglite rikkumisi.
Rikkumise puhul kasutajakonto blokeeritakse.