+ Lisa oma töö      

Otsid ehitajat "Betoonitööd" valdkonnast?

Parima pakkumise ja teostaja leidmiseks lisa oma töö.

Plaatvundamendi ehitus

ID 120311

1118 vaatamist

Prindi

  • check Pakkumiste tegemine
    kuni 08.08.2025
  • check Võitja valik kuni
    15.08.2025
  • 3 Töö teostamine
    ja hinnang
Hanke lõpp: R, 8. august, 2025
Maakond: Valgamaa
Muu asula: Lepa
Tööde lõpp: P, 31. august, 2025
Ehitusmaterjalid: Töö tegija poolt
Soovin pakkumisi: Summa kogu projektile

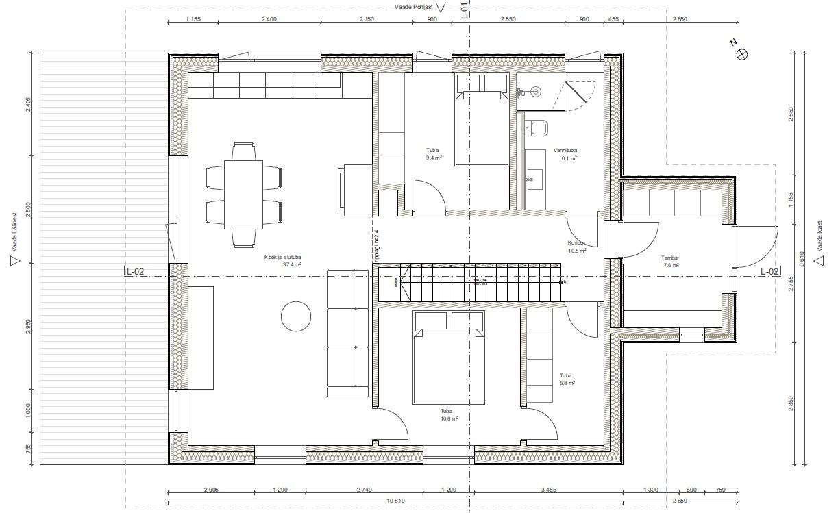
Töö sisu

Vaja ehitada plaatvundament, et sinna peale saaks paigaldada olemasolevatest palkidest maja.

Pildid, video ja failid

Hanke korraldaja: eraisik ID55591

Pakkumised

Pakkumisi kokku: 2

Ettevõte Summa Käibemaks Lisatud Vestlus
Kasutaja ikoon ID61081
Pakkuja profiil Väike nool paremale
16 500€ KM lisandub KM lisandub 26.07.2025 Vestlus (0)

Pakkumise kirjeldus:

Tere.

Hinnapakkumine antud tööle alates geodeediga mahamärkimisest kuni lihvitud betoon pinnani.

Kasutaja ikoon ID72008
Pakkuja profiil Väike nool paremale
15 500€ KM lisandub KM lisandub 31.07.2025 Vestlus (0)

Küsimused hanke korraldajale

Küsimus: private ID92421   29.07.2025 08:21
Tervist kas plaanis teha Lplokiga

Teavita reeglite rikkumisest

Korraldaja vastus: 29.07.2025 14:49

Tere! Võite pakkumise teha L-plokiga plaatvundamendile.

Teavita reeglite rikkumisest

Küsimus: private ID72008   08.08.2025 16:24
Tere.

Vajadusel saaksime ülejärgmine nädal vundamendi ära teha teile.
Kui otsustate meie kasuks siis saame keskkonna väliselt kokku leppida asjades ja lõpetate lihtsalt hanke.
Tegeleme igapäevaselt plaatvundamentidega ja teisipäeval saab meil just valatud üks jälle.

Teavita reeglite rikkumisest

Korraldaja vastus:
Hanke korraldaja ei ole küsimusele veel vastanud

Lisa küsimus

Lisa küsimus

Minu pakkumine

Reeglid

Pakkumise kirjelduse väli on mõeldud pakkumise detailsemaks lahti kirjutamiseks. Pikema teksti mugavaks sisestamiseks klikkige kasti paremal ülaservas oleval ikoonil.
Pakkumist tehes on keelatud postitada enda kontaktandmeid (nimi, telefon, aadress jne). Me jälgime ja analüüsime pakkumisi, et vältida pettuseid ja reeglite rikkumisi.
Rikkumise puhul kasutajakonto blokeeritakse.

 

Teisi töid samas valdkonnas

Valdkonnas "Betoonitööd" on 5 aktiivset tööd

Betoonist platsi valamine väljas.

Asukoht: Harjumaa, Luige
Aega jäänud: 18h 54 min
Tehtud pakkumisi: 4

Betoonpõranda valu

Asukoht: Harjumaa, Jõelähtme
Aega jäänud: 2p 18h
Tehtud pakkumisi: 3

Vanemad teated:

Vaata kõiki

Sellel veebilehel kasutatakse küpsiseid. Kasutamist jätkates nõustute küpsiste kasutamisega.

Sulge
 
Minu pakkumine

Reeglid

Pakkumise kirjelduse väli on mõeldud pakkumise detailsemaks lahti kirjutamiseks. Pikema teksti mugavaks sisestamiseks klikkige kasti paremal ülaservas oleval ikoonil.
Pakkumist tehes on keelatud postitada enda kontaktandmeid (nimi, telefon, aadress jne). Me jälgime ja analüüsime pakkumisi, et vältida pettuseid ja reeglite rikkumisi.
Rikkumise puhul kasutajakonto blokeeritakse.