+ Lisa oma töö      

Otsid ehitajat "Katusetööd" valdkonnast?

Parima pakkumise ja teostaja leidmiseks lisa oma töö.

Hange on lõppenud!

Võitjaks osutus kasutaja ID 57334

Korraldaja hinnang tehtud tööle

 
5.0
20.09.2025
Töökiirus: 12345
Kvaliteet: 12345
Hind: 12345

Vága hea suhtlus, töö kvaliteet ja tápsus. Hind on natuke úle keskmise, aga garantii ja töö kvaliteet on seda váárt. Tegemist on vága agarate tegijatega, seega ees ootab meid pikem koostöö. Soovitan 100%. - Ingrid K.

Katuse vahetus. Pööningu "pórand".

ID 119924

1001 vaatamist

Prindi

  • check Pakkumiste tegemine
    kuni 26.07.2025
  • check Võitja valik kuni
    26.07.2025
  • 3 Töö teostamine
    ja hinnang
Hanke lõpp: L, 26. juuli, 2025
Maakond: Jõgevamaa
Muu asula: Aidu
Tööde lõpp: Kokkuleppel
Ehitusmaterjalid: Töö tegija poolt
Soovin pakkumisi: Tüki- või ühikuhinda

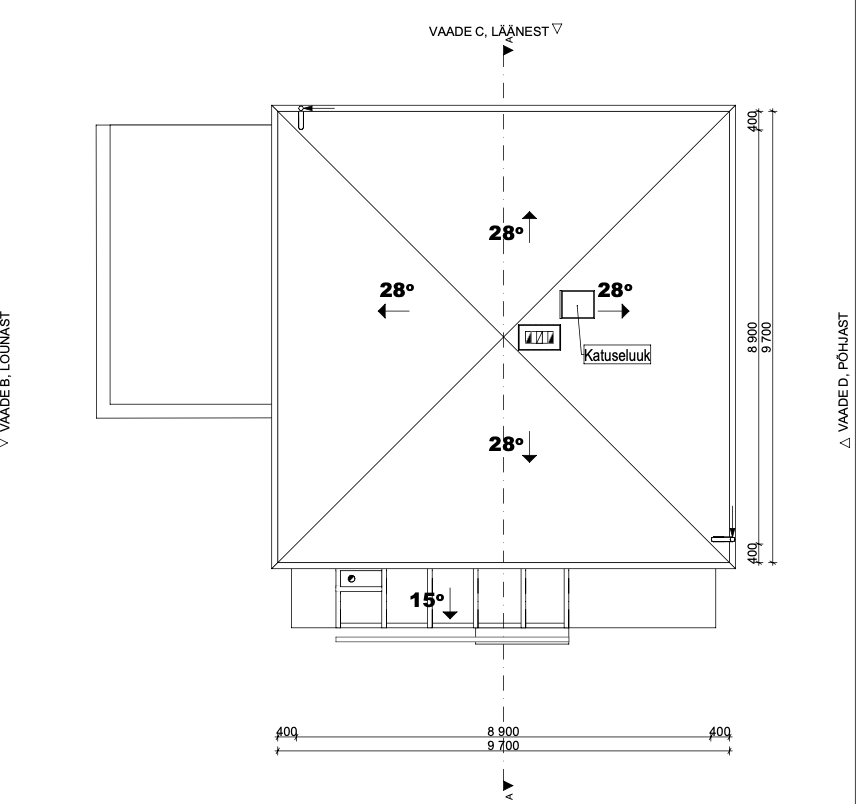
Töö sisu

UUS KATUS JA PÖÖNINGU PÓRAND. KAS KOOS ÚHELT PAKKUJALT VÓI ERALDI MITMELT.
Katuse vahetus, púramiid profiil katusele.
Pööningu "pórand". Pööning on soojendamata ruum ja ei ole plaanis sinna elamiskólbulikku ala lisada. Soov vaid teha pööning kasutuskólblikumaks asjade hoidmiseks náiteks.
- Vana eterniidi eemaldamine ja utiliseerimine
- Uue katusepleki paigaldamine. Klassik profiil, toon tumehall RR2H3
- Vihmaveerennide ja torude paigaldus
- Tuulekastid ja sarikad peaksid olema korralikud. Aga sooviks kontrolli ja úlevaadet.
- Katuseluuk,
- Redel puudub.

Kuna pööningul on talade vahe táidetud saepuruga, siis sooviks saepuru eemaldada, táita villaga ja teha laudispórand.

Majale on hea ligipáás. Kuna majale tuleb úmber uus haljastus, siis muru (mis on praegu rohkem heina moodi juba) tallamise párast ei ole vaja muretseda ;)

Váljavóte projektist:
4.5 Lagi
Hoone lagi on ehitatud puittaladele, mis on soojustatud termoliidi või saepuruga. Vana soojustus
eemaldatakse ning asendatakse uuega. Vahelae taladele lisatakse puittalasid sellise mõõduga, et
talade vahele kokku mahuks kivivilla 400 mm. Talade peale paigaldatakse laudis.
4.6 Katus
Elamu vana katusekate eemaldatakse. Alles jäetakse hoone sarikad ja sarikate peal olev hõre
laudis. Laudise peale paigaldatakse hingav katuse aluskate, millele omakorda vertikaalne
roovitus 22x50 mm, horisontaalne roovitus 22x100 mm, samm vastavalt katusekatte tootja
juhistele ning katusekatteks klassik profiilplekk.

Pildid, video ja failid

Hanke korraldaja: eraisik ID90968

Pakkumised

Pakkumisi kokku: 1

Ettevõte Summa Käibemaks Lisatud Vestlus
Kasutaja ikoon ID57334
Pakkuja profiil Väike nool paremale
14 800€ KM lisandub KM lisandub 24.07.2025 Vestlus (24)

Pakkumise kirjeldus:

Tere,

pakkumine on koostatud vastavalt hanke infole ning sisaldab kõiki materjale ja töid, ka transporti ja tellinguid.
Garantii töödele min 3 aastat.

Parimat soovides.

Küsimused hanke korraldajale

Hanke korraldajale ei ole veel küsimusi esitatud.

Lisa küsimus

Lisa küsimus

Minu pakkumine

Reeglid

Pakkumise kirjelduse väli on mõeldud pakkumise detailsemaks lahti kirjutamiseks. Pikema teksti mugavaks sisestamiseks klikkige kasti paremal ülaservas oleval ikoonil.
Pakkumist tehes on keelatud postitada enda kontaktandmeid (nimi, telefon, aadress jne). Me jälgime ja analüüsime pakkumisi, et vältida pettuseid ja reeglite rikkumisi.
Rikkumise puhul kasutajakonto blokeeritakse.

 

Teisi töid samas valdkonnas

Valdkonnas "Katusetööd" on 9 aktiivset tööd

no-img Pilt puudub

Käidava katuse PVC 54m2

Asukoht: Harjumaa, Muraste
Aega jäänud: 4p 17h
Tehtud pakkumisi: 3

Garaaži katuse vahetamine

Asukoht: Harjumaa, Viimsi
Aega jäänud: 13p 17h
Tehtud pakkumisi: 2

Vanemad teated:

Vaata kõiki

Sellel veebilehel kasutatakse küpsiseid. Kasutamist jätkates nõustute küpsiste kasutamisega.

Sulge
 
Minu pakkumine

Reeglid

Pakkumise kirjelduse väli on mõeldud pakkumise detailsemaks lahti kirjutamiseks. Pikema teksti mugavaks sisestamiseks klikkige kasti paremal ülaservas oleval ikoonil.
Pakkumist tehes on keelatud postitada enda kontaktandmeid (nimi, telefon, aadress jne). Me jälgime ja analüüsime pakkumisi, et vältida pettuseid ja reeglite rikkumisi.
Rikkumise puhul kasutajakonto blokeeritakse.