+ Lisa oma töö      

Otsid ehitajat "Plaatimistööd" valdkonnast?

Parima pakkumise ja teostaja leidmiseks lisa oma töö.

Plaatimine - põrandad ja seinad

ID 118674

1080 vaatamist

Prindi

  • check Pakkumiste tegemine
    kuni 16.07.2025
  • check Võitja valik kuni
    23.07.2025
  • 3 Töö teostamine
    ja hinnang
Hanke lõpp: K, 16. juuli, 2025
Maakond: Harjumaa
Muu asula: Muraste
Tööde lõpp: Kokkuleppel
Ehitusmaterjalid: Töö tellija poolt
Soovin pakkumisi: Summa kogu projektile

Töö sisu

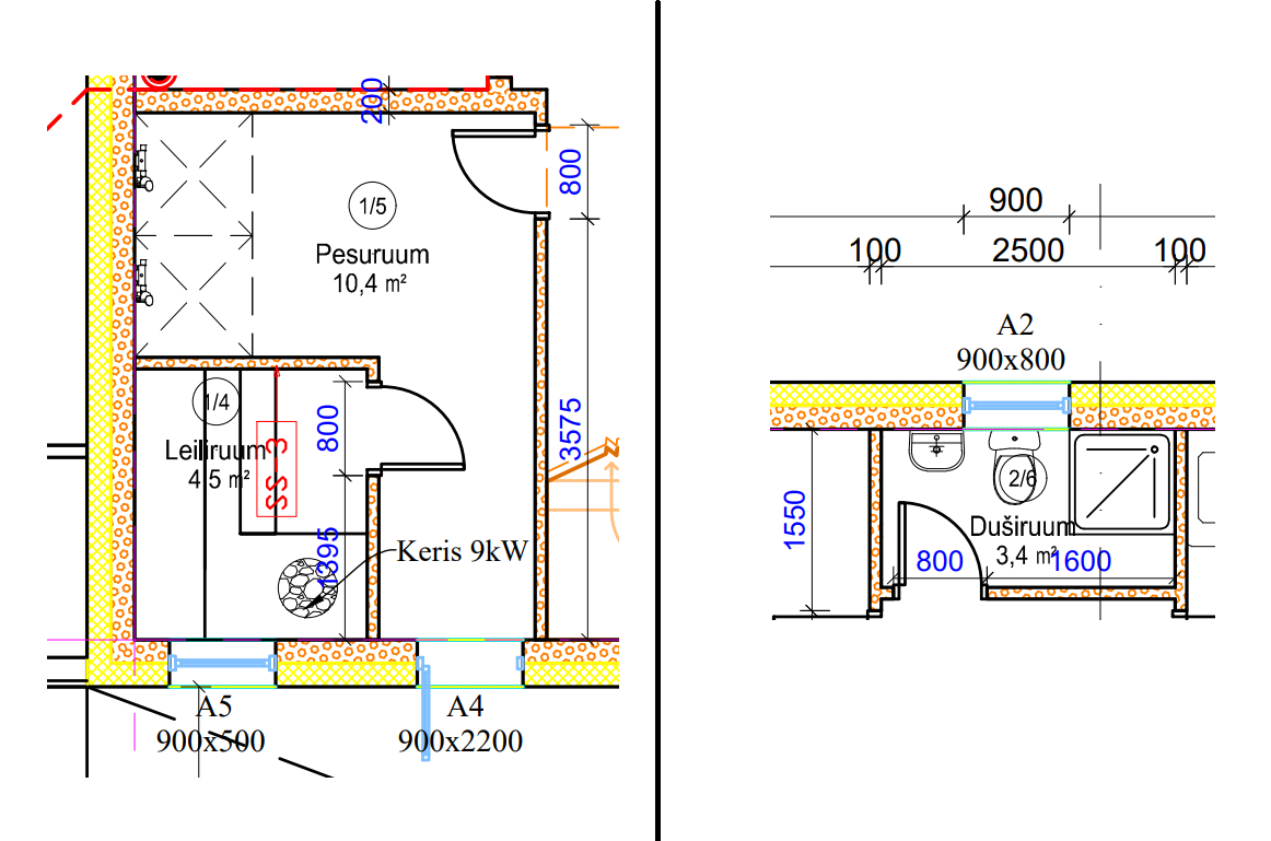
Plaadid on juba seal olemas/valmis. Seinad ja enamus põrandaid on plaatidega 60x60, aga väike osa põrandast duššide all on vee kaldeid rohkem ja sinna on 10x10 plaadid.

1. korrusel on pesuruum + leiliruumi (seal plaadiks ainult põrandaid, mitte seinu).
2. korrusel on väike dušširuum.
Kokku on põrandaid ~18,3m2 ja plaate on juba väikese varuga.

Pildid, video ja failid

Hanke korraldaja: eraisik ID83407

Pakkumised

Pakkumisi kokku: 5

Ettevõte Summa Käibemaks Lisatud Vestlus
Kasutaja ikoon ID58471
Pakkuja profiil Väike nool paremale
2 700€ KM lisandub KM lisandub 03.07.2025 Vestlus (0)

Pakkumise kirjeldus:

Hind plaatimistöödeks. Sisaldab hüdroisoleerimist, plaatimist, vuukimist, silikoonimist, hanke tasu, tarvikuid.

Töö kestus ca 7 päeva, teostamine juulis.
Tasumine peale tööde lõppu. Arvega tasumisel lisandub käibemaks, võimalik ilma.
Tehtud töödele garantii.


Meeldiva koostööni!

Kasutaja ikoon ID90254
Pakkuja profiil Väike nool paremale
2 200€ Ikoon kell KM lisandub KM lisandub 03.07.2025 Vestlus (0)
Kasutaja ikoon ID48936
Pakkuja profiil Väike nool paremale
5 700€ Ei ole KMKR Ei ole KMKR 04.07.2025 Vestlus (0)

Pakkumise kirjeldus:

Tere
Pakkumine tehtud töödele vastavalt hankes olevale kirjeldusele - hüdroisolatsioon+ plaatimine.
Head

Kasutaja ikoon ID77006
Pakkuja profiil Väike nool paremale
500€ Sisaldab KM Sisaldab KM 10.07.2025 Vestlus (0)

Pakkumise kirjeldus:

Tere Hind on ühe vanni kohta, plaatide lõikenurk makstakse eraldi. Hüdroisolatsiooni eest makstakse samuti eraldi. Kõikidele töödele kehtib 2-aastane garantii. Kui teil on küsimusi, küsige julgelt.

Kasutaja ikoon ID29676
Pakkuja profiil Väike nool paremale
1 700€ Ei ole KMKR Ei ole KMKR 16.07.2025 Vestlus (0)

Pakkumise kirjeldus:

Kõik 16 eu / m2 + summa action hange .

Küsimused hanke korraldajale

Küsimus: private ID58471   03.07.2025 14:11
Tere, millised duššivee äravoolud on? Kas loputuskasti ja aknapalede välisnurgad liistuga?

Teavita reeglite rikkumisest

Korraldaja vastus: 03.07.2025 15:27

Vee äravoolud on "väikesed ringid", mitte "pikad sirged lõigud" https://prnt.sc/uK8xHfDfd5Aq
Kui tunned mugavalt, siis teeks ilma liistudeta, aga pole selles 100%.

Teavita reeglite rikkumisest

Küsimus: private ID29676   16.07.2025 08:08
Tere,Kui palju km Tallinast?

Teavita reeglite rikkumisest

Korraldaja vastus: 16.07.2025 11:12

Haaberstist 14km

Teavita reeglite rikkumisest

Küsimus: private ID29676   16.07.2025 11:25
Kui palju kõik m2 , 18.3?

Teavita reeglite rikkumisest

Korraldaja vastus: 16.07.2025 11:39

Vabandust, see 18,3 on mul (veaga) valesti trükitud. Aitäh.
Pigem kõik seinad ja põrandad kokku on 87m2
https://prnt.sc/lbioHMz7FTx1

Teavita reeglite rikkumisest

Lisa küsimus

Lisa küsimus

Minu pakkumine

Reeglid

Pakkumise kirjelduse väli on mõeldud pakkumise detailsemaks lahti kirjutamiseks. Pikema teksti mugavaks sisestamiseks klikkige kasti paremal ülaservas oleval ikoonil.
Pakkumist tehes on keelatud postitada enda kontaktandmeid (nimi, telefon, aadress jne). Me jälgime ja analüüsime pakkumisi, et vältida pettuseid ja reeglite rikkumisi.
Rikkumise puhul kasutajakonto blokeeritakse.

 

Teisi töid samas valdkonnas

Valdkonnas "Plaatimistööd" on 2 aktiivset tööd

Trepikoja plaatimine

Asukoht: Tartumaa, Ülenurme
Aega jäänud: 4p 10h
Tehtud pakkumisi: 2

Pesuruumi plaatimine 12.6 m2

Asukoht: Tartumaa, Teedla
Aega jäänud: 1p 10h
Tehtud pakkumisi: 0

Vanemad teated:

Vaata kõiki

Sellel veebilehel kasutatakse küpsiseid. Kasutamist jätkates nõustute küpsiste kasutamisega.

Sulge
 
Minu pakkumine

Reeglid

Pakkumise kirjelduse väli on mõeldud pakkumise detailsemaks lahti kirjutamiseks. Pikema teksti mugavaks sisestamiseks klikkige kasti paremal ülaservas oleval ikoonil.
Pakkumist tehes on keelatud postitada enda kontaktandmeid (nimi, telefon, aadress jne). Me jälgime ja analüüsime pakkumisi, et vältida pettuseid ja reeglite rikkumisi.
Rikkumise puhul kasutajakonto blokeeritakse.