+ Lisa oma töö      

Otsid ehitajat "Siseviimistlustööd" valdkonnast?

Parima pakkumise ja teostaja leidmiseks lisa oma töö.

Hange on lõppenud!

Võitjaks osutus kasutaja ID 89331

Korraldaja hinnang tehtud tööle

 
5.0
08.08.2025
Töökiirus: 12345
Kvaliteet: 12345
Hind: 12345

Korralikult tehtud töö, kõikidest lubadustest peeti kinni ja töö sujus ladusalt. Usaldusväärne ja kvaliteetne, võib julgelt soovitada. - Anna E.

Näita pilte (2) Peida pildid

Enne:

  • PXL_20250628_141610350.jpg

Pärast:

  • PXL_20250721_061759010.jpg

Põrandakatte vahetus

ID 118397

892 vaatamist

Prindi

  • check Pakkumiste tegemine
    kuni 01.07.2025
  • check Võitja valik kuni
    08.07.2025
  • 3 Töö teostamine
    ja hinnang
Hanke lõpp: T, 1. juuli, 2025
Maakond: Harjumaa
Linn: Tallinn
Tööde lõpp: Kokkuleppel
Ehitusmaterjalid: Töö tellija poolt
Soovin pakkumisi: Summa kogu projektile

Töö sisu

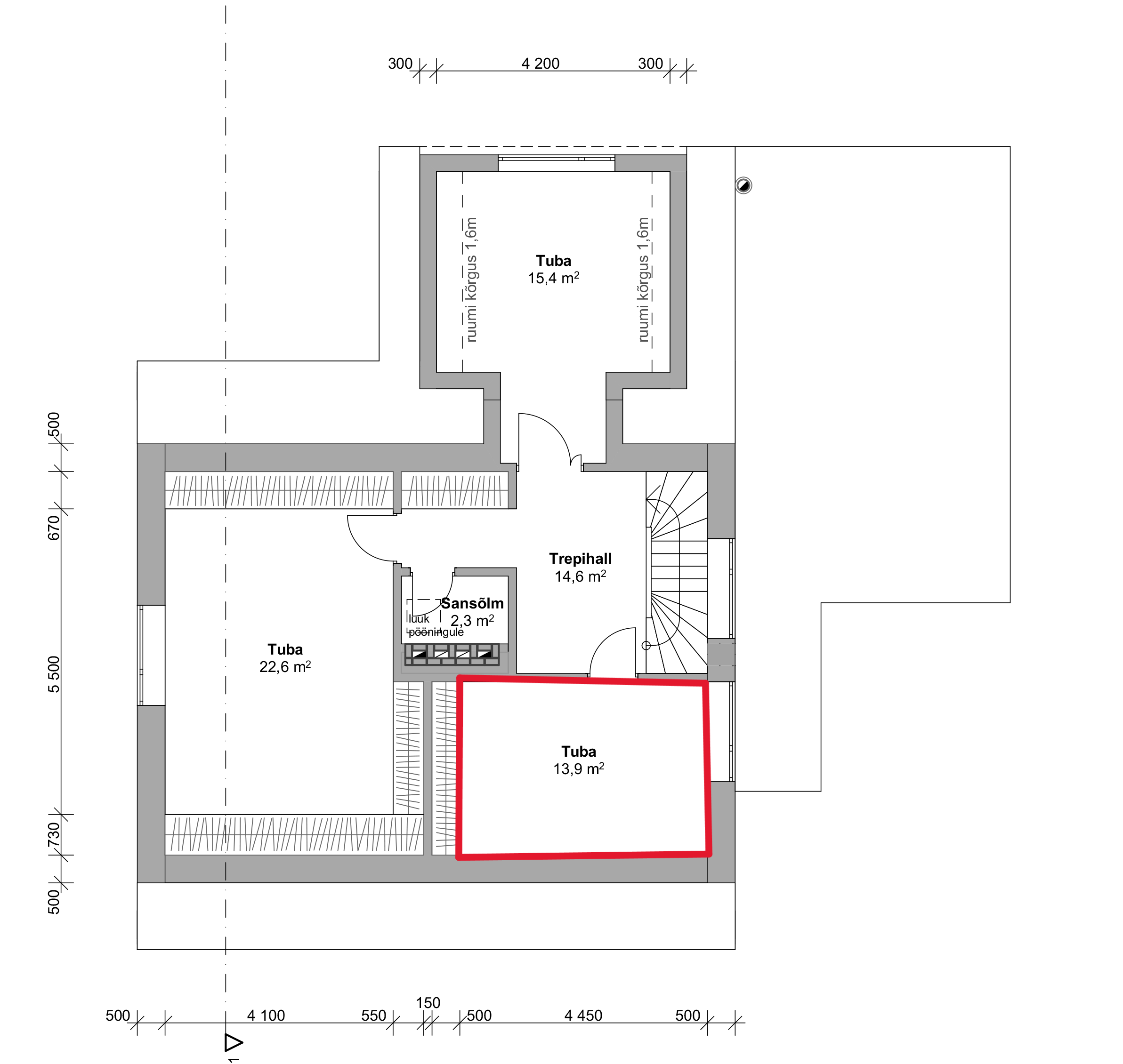
Soovime välja vahetada 13,9 ruutmeetrit korkpõrandat, mis on UV kiirgusest värvi muutnud ja kohati kummis. Praegune korkpõrand on liimitud, tarvis on see eemaldada, aluspind tasandada ja paigaldada uus pinnakate - laudparkett.

Parkett on töö tellija poolt, muud materjalid põrandaaluse tasandamiseks töö tegija poolt.
Asukoht Tallinn, Kristiine linnaosa.

Pildid, video ja failid

Hanke korraldaja: eraisik ID54753

Pakkumised

Pakkumisi kokku: 2

Ettevõte Summa Käibemaks Lisatud Vestlus
Kasutaja ikoon ID89331
Pakkuja profiil Väike nool paremale
1 200€ Sisaldab KM Sisaldab KM 01.07.2025 Vestlus (7)

Pakkumise kirjeldus:

Tere! Hinnas sisaldub vana katte eemaldamine – 20 €/m², pinna tasandamine – 12 €/m², parketi paigaldus – 14,5 €/m² ning prügi äravedu. Tööd teen ametlikult lepingu alusel. Kohtumisel ja ruumide ülevaatusel saab kõiki üksikasju täpsemalt arutada.

Kasutaja ikoon ID65365
Pakkuja profiil Väike nool paremale
790€ Ei ole KMKR Ei ole KMKR 01.07.2025 Vestlus (0)

Küsimused hanke korraldajale

Hanke korraldajale ei ole veel küsimusi esitatud.

Lisa küsimus

Lisa küsimus

Minu pakkumine

Reeglid

Pakkumise kirjelduse väli on mõeldud pakkumise detailsemaks lahti kirjutamiseks. Pikema teksti mugavaks sisestamiseks klikkige kasti paremal ülaservas oleval ikoonil.
Pakkumist tehes on keelatud postitada enda kontaktandmeid (nimi, telefon, aadress jne). Me jälgime ja analüüsime pakkumisi, et vältida pettuseid ja reeglite rikkumisi.
Rikkumise puhul kasutajakonto blokeeritakse.

 

Teisi töid samas valdkonnas

Valdkonnas "Siseviimistlustööd" on 25 aktiivset tööd

Korteri remont

Asukoht: Harjumaa, Muraste
Aega jäänud: 2p 11h
Tehtud pakkumisi: 15

no-img Pilt puudub

Laminaatparketi paigaldus

Asukoht: Harjumaa, Tallinn
Aega jäänud: 4p 11h
Tehtud pakkumisi: 8

Vanemad teated:

Vaata kõiki

Sellel veebilehel kasutatakse küpsiseid. Kasutamist jätkates nõustute küpsiste kasutamisega.

Sulge
 
Minu pakkumine

Reeglid

Pakkumise kirjelduse väli on mõeldud pakkumise detailsemaks lahti kirjutamiseks. Pikema teksti mugavaks sisestamiseks klikkige kasti paremal ülaservas oleval ikoonil.
Pakkumist tehes on keelatud postitada enda kontaktandmeid (nimi, telefon, aadress jne). Me jälgime ja analüüsime pakkumisi, et vältida pettuseid ja reeglite rikkumisi.
Rikkumise puhul kasutajakonto blokeeritakse.