+ Lisa oma töö      

Otsid ehitajat "Siseviimistlustööd" valdkonnast?

Parima pakkumise ja teostaja leidmiseks lisa oma töö.

Maja siseviimistlustööd

ID 118369

784 vaatamist

Prindi

  • check Pakkumiste tegemine
    kuni 03.07.2025
  • check Võitja valik kuni
    10.07.2025
  • 3 Töö teostamine
    ja hinnang
Hanke lõpp: N, 3. juuli, 2025
Maakond: Harjumaa
Muu asula: Viimsi
Tööde lõpp: Kokkuleppel
Ehitusmaterjalid: Töö tegija poolt
Soovin pakkumisi: Summa kogu projektile

Töö sisu

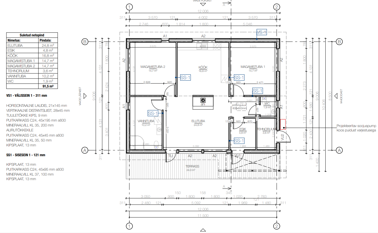
Siseviimistlustööd majale. Põranda pind kokku 85m2, millest 10m2 oleks vaja plaatida ja ülejäänud 75m2 tuleks parkett panna. Samuti oleks vaja kõik seinad-laed pahteldada ja värvida. Vannitoa seinad plaatida. Seinte kõrgus 2.55m. Väike WC (1,9m2) on juba valmis, seda pakkumisel mitte arvesse võtta. Kõik materjalid ja töövahendid tegija poolt.

Pildid, video ja failid

Hanke korraldaja: eraisik ID88221

Pakkumised

Pakkumisi kokku: 3

Ettevõte Summa Käibemaks Lisatud Vestlus
Kasutaja ikoon ID52542
Pakkuja profiil Väike nool paremale
4 500€ Ei ole KMKR Ei ole KMKR 30.06.2025 Vestlus (0)

Pakkumise kirjeldus:

Tere.
Materjali voime koos osta poes
siis pole ettemaksu vaja.
eeldatav Viimistlustööde maht on 300
sellest ka hind.
Teostan ainult Maalritôid.
garantii 2a.
Alustada saan 02.07.
tööde lòpp. 16.07. hiljemalt.

Kasutaja ikoon ID76330
Pakkuja profiil Väike nool paremale
7 300€ KM lisandub KM lisandub 01.07.2025 Vestlus (0)

Pakkumise kirjeldus:

Tere
Meie hind 7300 eur + KM, hinnas pole plaat ja parkett. Hinda kuulub viimistlusmaterjal, krunt, kaks põhivärvi, põranda paigaldus ja plaatimistööd.
Lugupidamisega

Kasutaja ikoon ID82196
Pakkuja profiil Väike nool paremale
11 000€ KM lisandub KM lisandub 03.07.2025 Vestlus (0)

Pakkumise kirjeldus:

Tere!

Meie pakkumine teie soovitud tööle. Lisainfo vestluses.

Lugupidamisega,
R&P

Küsimused hanke korraldajale

Küsimus: private ID88722   01.07.2025 07:41
Tere. Mööblit pole vaja?

Teavita reeglite rikkumisest

Korraldaja vastus:
Hanke korraldaja ei ole küsimusele veel vastanud

Lisa küsimus

Lisa küsimus

Minu pakkumine

Reeglid

Pakkumise kirjelduse väli on mõeldud pakkumise detailsemaks lahti kirjutamiseks. Pikema teksti mugavaks sisestamiseks klikkige kasti paremal ülaservas oleval ikoonil.
Pakkumist tehes on keelatud postitada enda kontaktandmeid (nimi, telefon, aadress jne). Me jälgime ja analüüsime pakkumisi, et vältida pettuseid ja reeglite rikkumisi.
Rikkumise puhul kasutajakonto blokeeritakse.

 

Teisi töid samas valdkonnas

Valdkonnas "Siseviimistlustööd" on 24 aktiivset tööd

Korteri remont

Asukoht: Harjumaa, Muraste
Aega jäänud: 2p 5h
Tehtud pakkumisi: 15

Seinte pahteldus ja värvimine

Asukoht: Harjumaa, Türisalu
Aega jäänud: 3p 5h
Tehtud pakkumisi: 7

Vanemad teated:

Vaata kõiki

Sellel veebilehel kasutatakse küpsiseid. Kasutamist jätkates nõustute küpsiste kasutamisega.

Sulge
 
Minu pakkumine

Reeglid

Pakkumise kirjelduse väli on mõeldud pakkumise detailsemaks lahti kirjutamiseks. Pikema teksti mugavaks sisestamiseks klikkige kasti paremal ülaservas oleval ikoonil.
Pakkumist tehes on keelatud postitada enda kontaktandmeid (nimi, telefon, aadress jne). Me jälgime ja analüüsime pakkumisi, et vältida pettuseid ja reeglite rikkumisi.
Rikkumise puhul kasutajakonto blokeeritakse.