+ Lisa oma töö      

Otsid ehitajat "Üldehitus" valdkonnast?

Parima pakkumise ja teostaja leidmiseks lisa oma töö.

Hange on lõppenud!

Võitjaks osutus kasutaja ID 76534

Korraldaja hinnang tehtud tööle

 
4.3
10.09.2025
Töökiirus: 12345
Kvaliteet: 12345
Hind: 12345

Aiamaja paigaldus

ID 118045

1227 vaatamist

Prindi

  • check Pakkumiste tegemine
    kuni 06.07.2025
  • check Võitja valik kuni
    13.07.2025
  • 3 Töö teostamine
    ja hinnang
Hanke lõpp: P, 6. juuli, 2025
Maakond: Järvamaa
Linn: Türi
Tööde lõpp: Kokkuleppel
Ehitusmaterjalid: Töö tellija poolt
Soovin pakkumisi: Summa kogu projektile

Töö sisu

Soovin hinnapakkumist aiamaja paigaldustöödele.

Objekti kirjeldus:

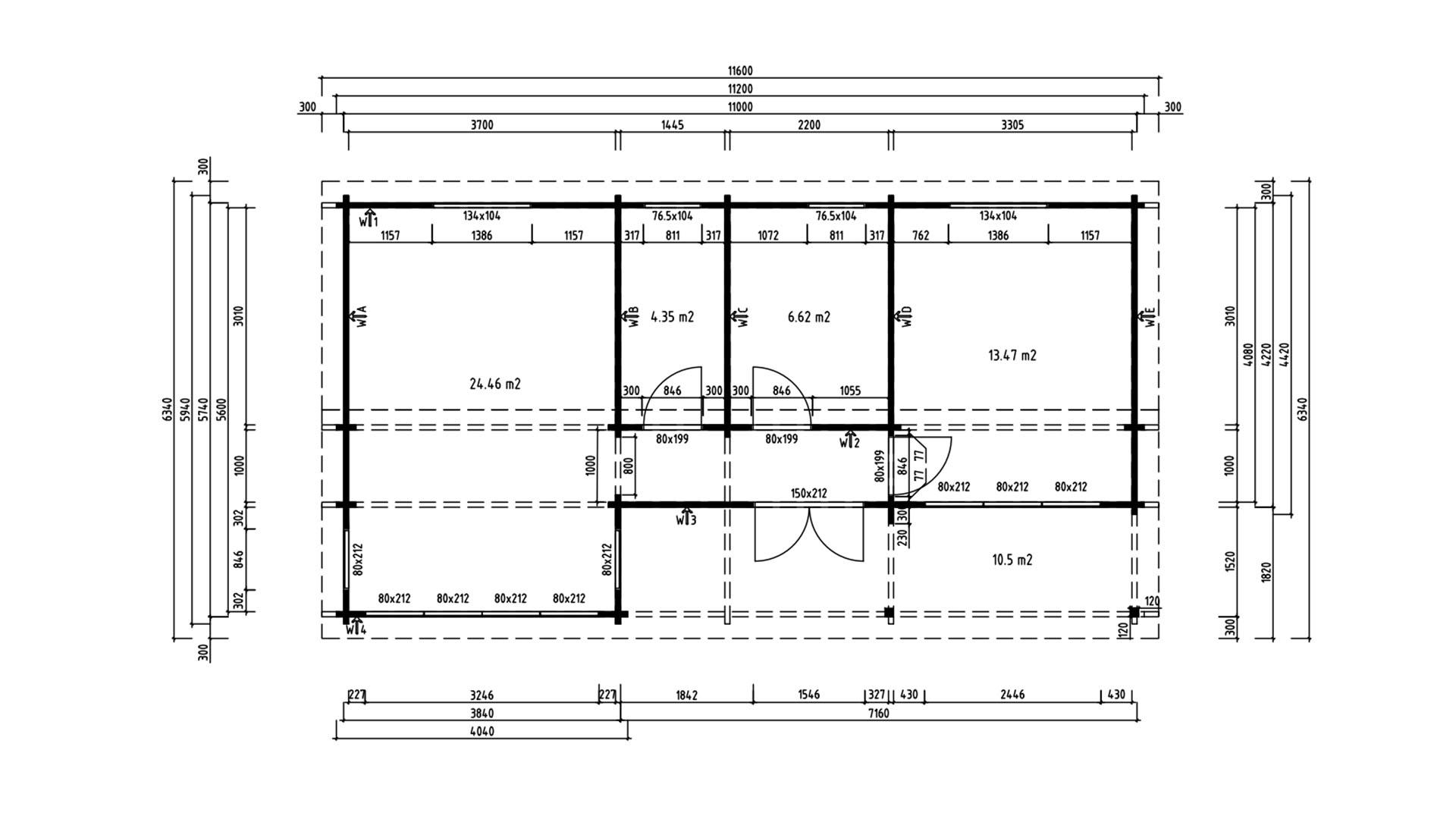
Mudel: Aiamaja "Casablanca", mudeli number 7003221. Maja välismõõdud on ligikaudu 48.9 m², 594 X 1120 cm
https://gardenhouse24.ee/product/casablanca-70/

Olemasolevad materjalid: Olemas on täielik aiamaja komplekt (seinadetailid, põrandalauad, katuselauad, uksed, aknad, liistud jms vastavalt lisatud spetsifikatsioonile). Joonised ja detailide nimekiri on lisatud kirjale.
Teostatavad tööd:
Vundamendi ehitus: Postvundamendi rajamine vastavalt maja mõõtudele.
Maja montaaž: Aiamaja kokkupanek vastavalt lisatud joonistele (seinad, põrand, katusekonstruktsioon).
Katuse paigaldus: Katusekatte (bituumensindel) paigaldamine.
Aknad ja uksed: Komplekti kuuluvate akende ja uste paigaldus.

Materjalide jaotus:
Tellija poolt (olemas): Aiamaja "Casablanca 70" komplekt.

Ehitaja poolt (palun lisada pakkumisse):
Kõik vundamendi ehituseks vajalikud materjalid (nt postid, betoon, killustik, geodekstiil, kinnitusvahendid, tugevam alusraam 50x150, jms).
Katusekattematerjal (bituumensindel, kärgkate) koos kõige vajaminevaga (alusmaterjal, servaplekid, katusekruvid/naelad, harjaplaadid).
Kõik muud paigalduseks vajalikud kinnitusvahendid ja tarvikud, mis ei kuulu maja komplekti.

Lisainformatsioon:
Käesolevale kirjale on lisatud maja joonised (põhiplaan, seina- ja katuseplaanid, detailide loetelu) ja illustreerivad pildid.

Palun esitada hinnapakkumine, mis sisaldab:

Tööde kogumaksumust, eraldi välja tooduna:
- Tööraha (vundament, maja montaaž, katuse paigaldus).
- Materjalide maksumus (vundament, katusekate).
- Tööde teostamise eeldatavat ajakava ja kestust.
- Võimalikku töödega alustamise aega.
- Maksetingimused: Kuidas toimub arvete esitamine ja tasumine (nt. etappide kaupa, ettemaks, lõpparve).
- Garantii: Millise garantii annate teostatud tööle
- Varasemad tööd: Võimalusel lisada viiteid või pilte eelnevatest sarnastest töödest.

Pildid, video ja failid

Hanke korraldaja: eraisik ID50281

Pakkumised

Pakkumisi kokku: 3

Ettevõte Summa Käibemaks Lisatud Vestlus
Kasutaja ikoon ID53098
Pakkuja profiil Väike nool paremale
10 000€ Sisaldab KM Sisaldab KM 23.06.2025 Vestlus (0)

Pakkumise kirjeldus:

Tere!

Meie pakkumine vundamendi ehitusele 200mm postvundamendiga.
45x145 immutatud karkassimaterjal.
kandekonstruktsiooniks. (Kas tootel on olemas ka oma põranda konstruktsioon või ainult põrandalaud?)
Soovi korral saab põranda ka soojustada(Ei sisaldu pakkumises)

Aiamaja kokkumonteerimine.
Akende/uste paigaldus.
Katusekatte paigaldus. Bit ... Rohkem

Kasutaja ikoon ID76534
Pakkuja profiil Väike nool paremale
8 240€ Ei ole KMKR Ei ole KMKR 24.06.2025 Vestlus (26)

Pakkumise kirjeldus:

Tere!

Summa 8240€ on kogu paigaldusele koos materjalidega + hange keskkonna teenustasu.
Seletan siis paigaldusjärjekorras lahti ka hinnad.

1. Aluse ehitus: kaevamine, tehnika, postide rajamine ja kinnitusvahentite loodimine, aluskarkassi ehitus immutatud 150x50 prussist ning geotekstiili ja peenkillustiku (4-12mm) panek. Hinnaks 2400€

2. Maja ... Rohkem

Kasutaja ikoon ID65365
Pakkuja profiil Väike nool paremale
7 948€ Ei ole KMKR Ei ole KMKR 06.07.2025 Vestlus (0)

Pakkumise kirjeldus:

Pakkumine kirjeldatud tööle ja materjal.

Küsimused hanke korraldajale

Küsimus: private ID87262   24.06.2025 22:53
Tere!

Kas Teil on olemas luba / kooskõlastus KOV-ga?
https://www.riigiteataja.ee/aktilisa/1050/3201/5001/Lisa_1.pdf

Teavita reeglite rikkumisest

Korraldaja vastus: 28.06.2025 20:22

Tere, KOViga on suheldud, taotlus on pooleli ja saab vormistatud järgmine nädal.

Teavita reeglite rikkumisest

Lisa küsimus

Lisa küsimus

Minu pakkumine

Reeglid

Pakkumise kirjelduse väli on mõeldud pakkumise detailsemaks lahti kirjutamiseks. Pikema teksti mugavaks sisestamiseks klikkige kasti paremal ülaservas oleval ikoonil.
Pakkumist tehes on keelatud postitada enda kontaktandmeid (nimi, telefon, aadress jne). Me jälgime ja analüüsime pakkumisi, et vältida pettuseid ja reeglite rikkumisi.
Rikkumise puhul kasutajakonto blokeeritakse.

 

Teisi töid samas valdkonnas

Valdkonnas "Üldehitus" on 49 aktiivset tööd

Korterist tellisseina eemaldamine

Asukoht: Harjumaa, Tallinn
Aega jäänud: 2p
Tehtud pakkumisi: 6

no-img Pilt puudub

Abihoone ehitus

Asukoht: Valgamaa, Otepää
Aega jäänud: 1 min
Tehtud pakkumisi: 5

Vanemad teated:

Vaata kõiki

Sellel veebilehel kasutatakse küpsiseid. Kasutamist jätkates nõustute küpsiste kasutamisega.

Sulge
 
Minu pakkumine

Reeglid

Pakkumise kirjelduse väli on mõeldud pakkumise detailsemaks lahti kirjutamiseks. Pikema teksti mugavaks sisestamiseks klikkige kasti paremal ülaservas oleval ikoonil.
Pakkumist tehes on keelatud postitada enda kontaktandmeid (nimi, telefon, aadress jne). Me jälgime ja analüüsime pakkumisi, et vältida pettuseid ja reeglite rikkumisi.
Rikkumise puhul kasutajakonto blokeeritakse.