+ Lisa oma töö      

Otsid ehitajat "Vundamenditööd" valdkonnast?

Parima pakkumise ja teostaja leidmiseks lisa oma töö.

Vundamendi soojustamine

ID 117918

1111 vaatamist

Prindi

  • check Pakkumiste tegemine
    kuni 13.07.2025
  • check Võitja valik kuni
    20.07.2025
  • 3 Töö teostamine
    ja hinnang
Hanke lõpp: P, 13. juuli, 2025
Maakond: Pärnumaa
Muu asula: Lindi
Tööde lõpp: Kokkuleppel
Ehitusmaterjalid: Töö tegija poolt
Soovin pakkumisi: Summa kogu projektile

Töö sisu

Soovin hinnapakkumist olemasoleva eluhoone vundamendi ja sokli soojustamise töödele. Kuna töö eeldab kaevet, siis soovin selle käigus teostada ka drenaaži rajamist ümber maja.

Ootaks ka hinnapakkumist ning teostust järgmistele tegevustele:
* Sokli ja vundamendi vertikaalne soojustus (ümbermõõt 68m)
* Horisontaalne soojustus vundamendi jalamilt väljapoole kaldega u 1200 mm ulatuses
* Näriliste tõkestamine
* Hüdroisolatsioon
* Drenaažisüsteemi rajamine – palun pakkuda kompleksteenus koos torustiku, killustiku jms-ga.
* Kolme betoontrepi lammutamine, et pääseda ligi vundamendile.

Täiendav info:
Üks proovikaev näitas, et vundamendi jalus jääb umbes 32–33 cm sügavusele sokli alumisest servast.
Majale on igast küljest hea ligipääs.
Treppe taastama ei pea.

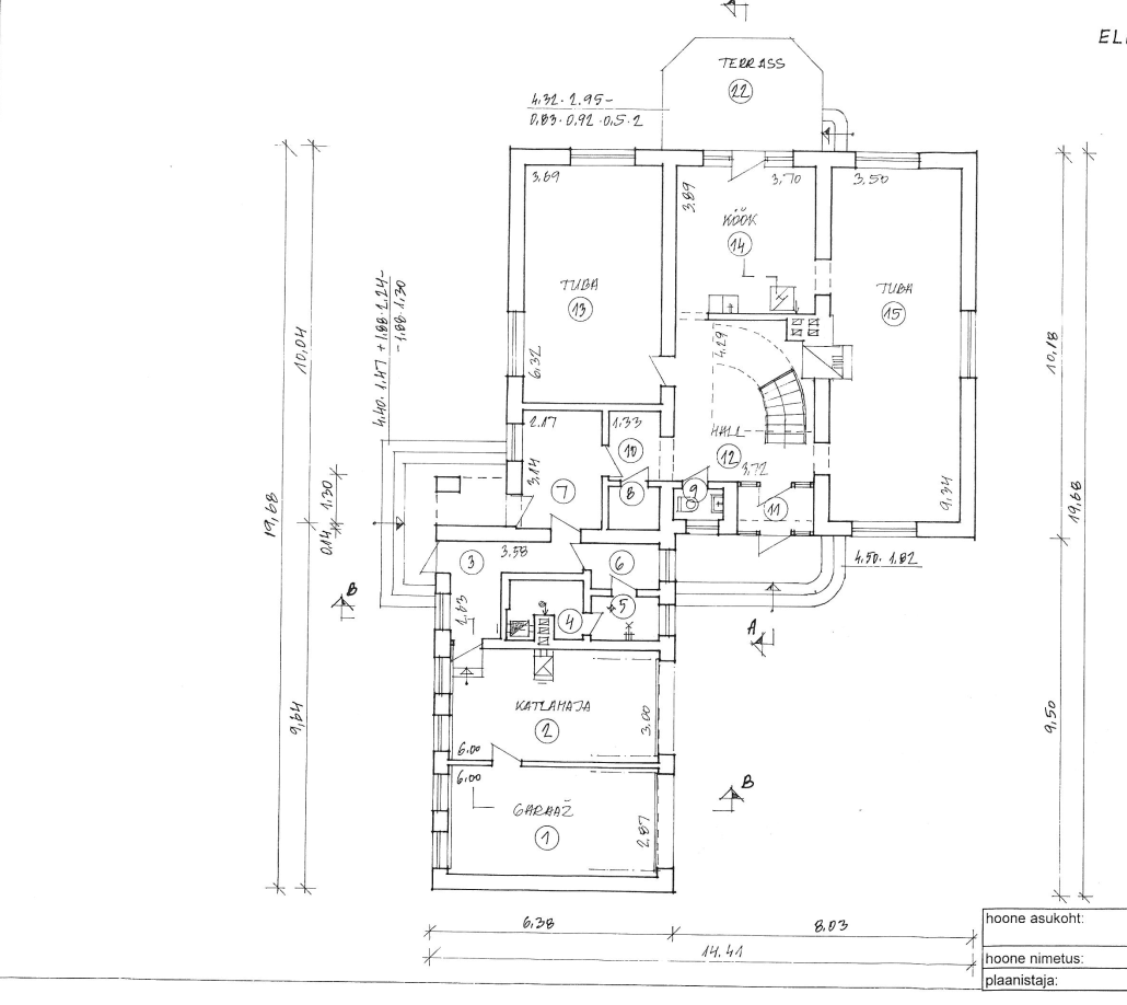
Pildid, video ja failid

Hanke korraldaja: eraisik ID67691

Pakkumised

Pakkumisi kokku: 1

Ettevõte Summa Käibemaks Lisatud Vestlus
Kasutaja ikoon ID9009
Pakkuja profiil Väike nool paremale
7 630€ KM lisandub KM lisandub 08.07.2025 Vestlus (1)

Pakkumise kirjeldus:

Drenaaz toru 110, sadevee toru 110, geotekstiil killustik. Vertikaalne soojustus 100mm, horisontaalne 50mm. Treppide lõhkumine.

Küsimused hanke korraldajale

Küsimus: private ID9009   03.07.2025 05:16
Tere.
Tekkisid küsimused ,Kui suur on maja ümbermõõt , kui kaugele saab juhtida drenaas vett ,kui paksu soojustusest te mõtlesite?

Teavita reeglite rikkumisest

Korraldaja vastus: 03.07.2025 16:10

Tere

Tänan, et juhtisite sellele tähelepanu, unustasin antud info lisada kirjeldusse.
Ümbermõõt on ~68 meetrit ning drenaazi saaks juhtida kraavi, mis asub 20m kaugusel majast.

Soojustus sobiks ehk 100 seina eps perimeeter tapiga ja horisontaalne xps 50mm või siis 100mm.

Teavita reeglite rikkumisest

Küsimus: private ID9009   03.07.2025 20:27
Veel mis katet mõtlesite sojustusele?

Teavita reeglite rikkumisest

Korraldaja vastus: 04.07.2025 01:57

Mõte liikus delta katte suunas.

Teavita reeglite rikkumisest

Lisa küsimus

Lisa küsimus

Minu pakkumine

Reeglid

Pakkumise kirjelduse väli on mõeldud pakkumise detailsemaks lahti kirjutamiseks. Pikema teksti mugavaks sisestamiseks klikkige kasti paremal ülaservas oleval ikoonil.
Pakkumist tehes on keelatud postitada enda kontaktandmeid (nimi, telefon, aadress jne). Me jälgime ja analüüsime pakkumisi, et vältida pettuseid ja reeglite rikkumisi.
Rikkumise puhul kasutajakonto blokeeritakse.

 

Vanemad teated:

Vaata kõiki

Sellel veebilehel kasutatakse küpsiseid. Kasutamist jätkates nõustute küpsiste kasutamisega.

Sulge
 
Minu pakkumine

Reeglid

Pakkumise kirjelduse väli on mõeldud pakkumise detailsemaks lahti kirjutamiseks. Pikema teksti mugavaks sisestamiseks klikkige kasti paremal ülaservas oleval ikoonil.
Pakkumist tehes on keelatud postitada enda kontaktandmeid (nimi, telefon, aadress jne). Me jälgime ja analüüsime pakkumisi, et vältida pettuseid ja reeglite rikkumisi.
Rikkumise puhul kasutajakonto blokeeritakse.