+ Lisa oma töö      

Otsid ehitajat "Ventilatsioonitööd" valdkonnast?

Parima pakkumise ja teostaja leidmiseks lisa oma töö.

Eramaja ventilatsioon

ID 117520

1201 vaatamist

Prindi

  • check Pakkumiste tegemine
    kuni 27.06.2025
  • check Võitja valik kuni
    04.07.2025
  • 3 Töö teostamine
    ja hinnang
Hanke lõpp: R, 27. juuni, 2025
Maakond: Harjumaa
Muu asula: Kose
Tööde lõpp: Kokkuleppel
Ehitusmaterjalid: Töö tegija poolt
Soovin pakkumisi: Summa kogu projektile

Töö sisu

Lp Ehitajad

Olen otsimas peagi valmivasse eramusse ventilatsioonisüsteemi terviklahendust. Hetkel valmis vundament ja alustatakse seinte ladumisega. Soov oleks nn partner juba varakult leida, et peale fermida paigaldust saaks nn ventilatsioonitöödega alustada.

Eelistan võimalust, kus seade ise asub pööningul aga vajadusel aksepteerin ka nn standard lahendust (seinale).
Soov oleks, et õhuvõtt ja puhe toimuks pööningult minnes, tuulekasti kaudu ( sinna võre)( lahendus on läbiräägitav)
Seadme osas eelistused puuduvad
Lisaks välja ehitada toru kubule.

Töö teostamise aeg umbes juuli lõpp/ augusti algus

Soovin arve tegemise võimalust.

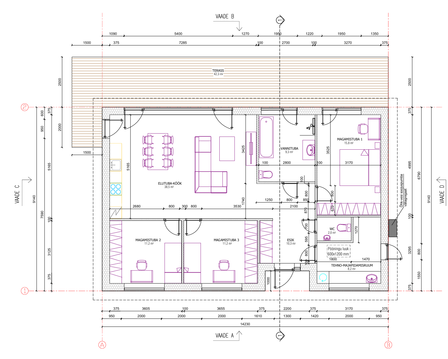
Lisan maja põhiplaani ja omapoolse nägmuse torude asetusest.
Vastan meelldi küsimustele.

Pildid, video ja failid

Hanke korraldaja: eraisik ID87412

Pakkumised

Pakkumisi kokku: 5

Ettevõte Summa Käibemaks Lisatud Vestlus
Kasutaja ikoon ID72372
Pakkuja profiil Väike nool paremale
6 448,0€ KM lisandub KM lisandub 16.06.2025 Vestlus (0)

Pakkumise kirjeldus:

Hinnapakkumine

Pööningule
Flexit Nordic CL2 ventilatsiooniseade koos Nordic Panel juhtpuldiga ning kõiki tööde teostamiseks vajalikke tarvikuid, et tagada terviklik ja töökindel lahendus . Komplekti kuuluvad kõik kinnitusdetailid, tihendid, rõhualanduskastid, plafoonid, müra­summutid ning isolatsioonimaterjalid.
• Flexit Nordic CL2 seade
... Rohkem

Kasutaja ikoon ID7685
Pakkuja profiil Väike nool paremale
9 800€ KM lisandub KM lisandub 16.06.2025 Vestlus (0)

Pakkumise kirjeldus:

Ventilatsiooni täislahendus va.teostusjoonised

Kasutaja ikoon ID60355
Pakkuja profiil Väike nool paremale
6 054€ KM lisandub KM lisandub 16.06.2025 Vestlus (1)

Pakkumise kirjeldus:

Seade Systemair vtr 300 + pult 2350.-
Torustik + kastid 820.-
Mürasummutid 2tk 195.-
Plafoonid + restid 165.-
Abimaterjalid + isolatsioon 250.-
Transport 85.-
Paigaldus 1500.-
mõõdistus + dokumentatsioon 400.-
Hange teenustasu 5%

Võimalus vahetada seade Domekt R400 vastu
siis hinnast - 300.

Kasutaja ikoon ID74787
Pakkuja profiil Väike nool paremale
6 000€ KM lisandub KM lisandub 18.06.2025 Vestlus (0)

Pakkumise kirjeldus:

Hind sisaldab
seade "systemair" SAVE VSR 300 ( pööningule )
torud, jaotuskastid jm.vajalik
välisrestid
paigaldus
mõõdsitus, mõõdistuspass

Hind ei sisalda:
-km
-kubu katuseotsik VILPE
-elektritööd ja materjalid ( puldi kaabeldus ja toosi paigaldus . Spets Systemairi toos on hinna sees )

Kasutaja ikoon ID31586
Pakkuja profiil Väike nool paremale
8 600€ KM lisandub KM lisandub 26.06.2025 Vestlus (0)

Pakkumise kirjeldus:

Tere. Pakkumine sisaldab torustiku, soojustagastusega ventilatsiooniseadet, mõõdistust ja teostusjoonist.

Küsimused hanke korraldajale

Küsimus: private ID77833   16.06.2025 23:17
Tere. Mis on pööningu kõrgus?

Teavita reeglite rikkumisest

Korraldaja vastus: 17.06.2025 08:03

Tere

Tegemist on nn kelpkatuse lahendusega siis kõrgeim osa on 2993mm

Teavita reeglite rikkumisest

Lisa küsimus

Lisa küsimus

Minu pakkumine

Reeglid

Pakkumise kirjelduse väli on mõeldud pakkumise detailsemaks lahti kirjutamiseks. Pikema teksti mugavaks sisestamiseks klikkige kasti paremal ülaservas oleval ikoonil.
Pakkumist tehes on keelatud postitada enda kontaktandmeid (nimi, telefon, aadress jne). Me jälgime ja analüüsime pakkumisi, et vältida pettuseid ja reeglite rikkumisi.
Rikkumise puhul kasutajakonto blokeeritakse.

 

Teisi töid samas valdkonnas

Valdkonnas "Ventilatsioonitööd" on 3 aktiivset tööd

Eramaja ventilatsioonitööd

Asukoht: Tartumaa, Soinaste
Aega jäänud: 6p 1h
Tehtud pakkumisi: 1

no-img Pilt puudub

Ventilatsiooni paigaldamine

Asukoht: Tartumaa, Tartu
Aega jäänud: 3p 1h
Tehtud pakkumisi: 0

Vanemad teated:

Vaata kõiki

Sellel veebilehel kasutatakse küpsiseid. Kasutamist jätkates nõustute küpsiste kasutamisega.

Sulge
 
Minu pakkumine

Reeglid

Pakkumise kirjelduse väli on mõeldud pakkumise detailsemaks lahti kirjutamiseks. Pikema teksti mugavaks sisestamiseks klikkige kasti paremal ülaservas oleval ikoonil.
Pakkumist tehes on keelatud postitada enda kontaktandmeid (nimi, telefon, aadress jne). Me jälgime ja analüüsime pakkumisi, et vältida pettuseid ja reeglite rikkumisi.
Rikkumise puhul kasutajakonto blokeeritakse.