+ Lisa oma töö      

Otsid ehitajat "Üldehitus" valdkonnast?

Parima pakkumise ja teostaja leidmiseks lisa oma töö.

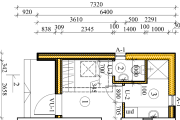
Maja juurdeehitus - koda, vannituba ja WC

ID 117269

1281 vaatamist

Prindi

  • check Pakkumiste tegemine
    kuni 10.07.2025
  • check Võitja valik kuni
    17.07.2025
  • 3 Töö teostamine
    ja hinnang
Hanke lõpp: N, 10. juuli, 2025
Maakond: Järvamaa
Muu asula: Soosalu
Tööde lõpp: Kokkuleppel
Ehitusmaterjalid: Töö tegija poolt
Soovin pakkumisi: Summa kogu projektile

Töö sisu

Juurdeehituse alas on hetkel trepp, betoon rada ja hekk - need tuleb vundamendi kaevamise käigus eemaldada.
Katuse eterniit on olemas.

Pildid, video ja failid

Hanke korraldaja: eraisik ID91031

Pakkumised

Pakkumisi kokku: 2

Ettevõte Summa Käibemaks Lisatud Vestlus
Kasutaja ikoon ID69073
Pakkuja profiil Väike nool paremale
57 135€ Sisaldab KM Sisaldab KM 11.06.2025 Vestlus (1)

Pakkumise kirjeldus:

Hind(EUR)
1. Vundament ja põrand 20 520
2. Välisseinad 18 240
3. Katus ja lagi 18 375
KOKKU (ligikaudne) 57 135

Mida see hind EI sisalda:

Aknad ja uksed (suur varieeruv kuluartikkel, ca 5 000 - 15 000 EUR)
Siseseinad (karkass, kips, viimistlus)
Lõplik siseviimistlus (põrandakatted eluruumides, värvimine, plaatimine väljaspool vannituba)
... Rohkem

Kasutaja ikoon ID59528
Pakkuja profiil Väike nool paremale
39 340€ KM lisandub KM lisandub 10.07.2025 Vestlus (1)

Pakkumise kirjeldus:

Tere,

Pakkumine tehtud vastavalt Hankes kirjeldatud töödele. Täpsema hinnakalkulatsiooni saame saata vestluses.
Meie profiili alt näete meie poolt tehtud töid ja klientide poolt antud hinnanguid
Ettevōttel olemas MTR registreering!

Meie poolt tehtud töid ja klientide poolt antud hinnanguid saate näha sellelt lingilt

https://www.hange.ee/et ... Rohkem

Küsimused hanke korraldajale

Hanke korraldajale ei ole veel küsimusi esitatud.

Lisa küsimus

Lisa küsimus

Minu pakkumine

Reeglid

Pakkumise kirjelduse väli on mõeldud pakkumise detailsemaks lahti kirjutamiseks. Pikema teksti mugavaks sisestamiseks klikkige kasti paremal ülaservas oleval ikoonil.
Pakkumist tehes on keelatud postitada enda kontaktandmeid (nimi, telefon, aadress jne). Me jälgime ja analüüsime pakkumisi, et vältida pettuseid ja reeglite rikkumisi.
Rikkumise puhul kasutajakonto blokeeritakse.

 

Teisi töid samas valdkonnas

Valdkonnas "Üldehitus" on 44 aktiivset tööd

Vannitoa kapitaalremont ja wc ning vannitoa ühendamine

Asukoht: Pärnumaa, Pärnu
Aega jäänud: 1h 12 min
Tehtud pakkumisi: 6

no-img Pilt puudub

Majal terrassi vahetus

Asukoht: Harjumaa, Tallinn
Aega jäänud: 1h 12 min
Tehtud pakkumisi: 6

Vanemad teated:

Vaata kõiki

Sellel veebilehel kasutatakse küpsiseid. Kasutamist jätkates nõustute küpsiste kasutamisega.

Sulge
 
Minu pakkumine

Reeglid

Pakkumise kirjelduse väli on mõeldud pakkumise detailsemaks lahti kirjutamiseks. Pikema teksti mugavaks sisestamiseks klikkige kasti paremal ülaservas oleval ikoonil.
Pakkumist tehes on keelatud postitada enda kontaktandmeid (nimi, telefon, aadress jne). Me jälgime ja analüüsime pakkumisi, et vältida pettuseid ja reeglite rikkumisi.
Rikkumise puhul kasutajakonto blokeeritakse.