+ Lisa oma töö      

Otsid ehitajat "Siseviimistlustööd" valdkonnast?

Parima pakkumise ja teostaja leidmiseks lisa oma töö.

Parketi paigaldus betoonpõrandale liimimise teel

ID 117119

958 vaatamist

Prindi

  • check Pakkumiste tegemine
    kuni 22.06.2025
  • check Võitja valik kuni
    29.06.2025
  • 3 Töö teostamine
    ja hinnang
Hanke lõpp: P, 22. juuni, 2025
Maakond: Saaremaa
Muu asula: Väike-Rahula
Tööde lõpp: Kokkuleppel
Ehitusmaterjalid: Töö tellija poolt
Soovin pakkumisi: Summa kogu projektile

Töö sisu

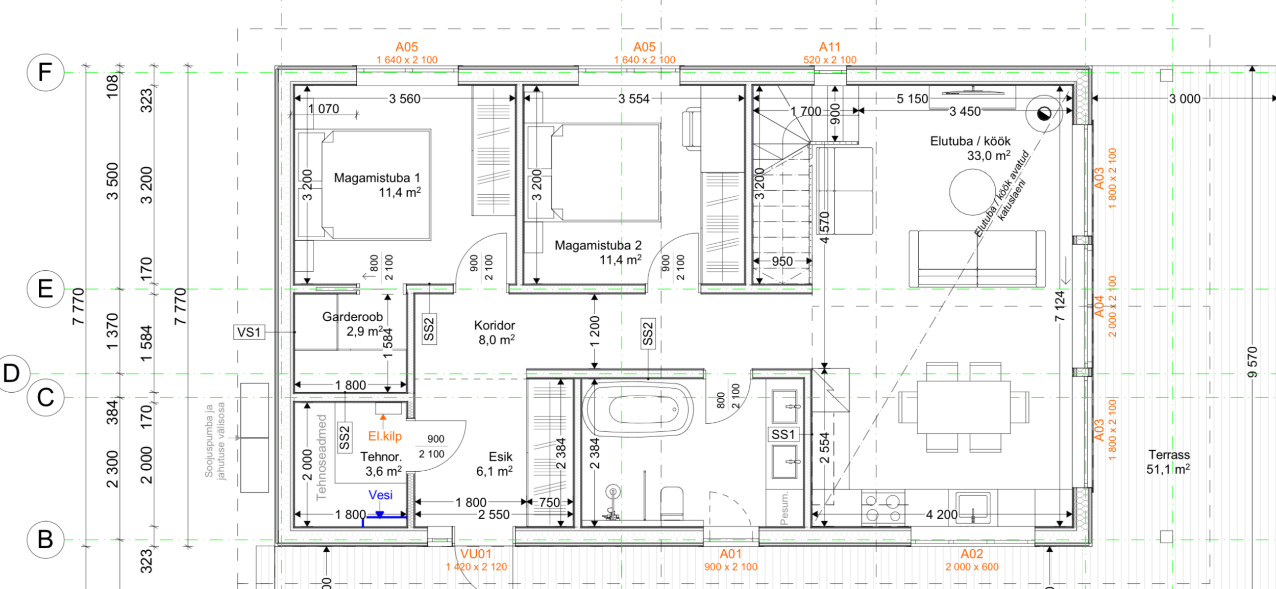
Põrandad valatud september 2024, tänaseks kindlasti täielikult kuivanud.

Pindala umbes 70m2: koridor (~10m2), kaks magamistuba(2x 11.4m2), garderoob (3m2), elutuba-köök (33m2).

Vajavad ka eeltöid (servade ja mõne kõrgema koha tasanduslihvimine, akna-ja ukseaukude tasandamine põranda pinnaga vms). Servade lihvimisega on osaliselt algust tehtud, aga võib pakkumise teha arvestusega, et seda ei ole üldse tehtud veel.

Parkett on 15mm tammeparkett vineeri põhjal. On seisnud kinnistes pakendites hoones juba mitu nädalat.

Liimi veel ostnud ei ole, selle hangin vastavalt paigaldaja eelistustele.

Pildid, video ja failid

Hanke korraldaja: eraisik ID90949

Pakkumised

Pakkumisi kokku: 3

Ettevõte Summa Käibemaks Lisatud Vestlus
Kasutaja ikoon ID86330
Pakkuja profiil Väike nool paremale
1 750€ Ei ole KMKR Ei ole KMKR 09.06.2025 Vestlus (0)

Pakkumise kirjeldus:

Liistu paigaldus hind on 4.50 jm. Ja lisa tööde hind on 25 eurot tund

Kasutaja ikoon ID79431
Pakkuja profiil Väike nool paremale
1 200€ Ei ole KMKR Ei ole KMKR 09.06.2025 Vestlus (0)

Pakkumise kirjeldus:

Paigaldus 900.-
Eeltööd 300.-
Saan pakkuda kvaliteetset bona liimi väga hea hinnaga

Kasutaja ikoon ID84549
Pakkuja profiil Väike nool paremale
900€ Ei ole KMKR Ei ole KMKR 12.06.2025 Vestlus (0)

Pakkumise kirjeldus:

Hind sisaldab ainult tööraha
Kui saame hinnas kokkuleppele saame alustada kohe!

Küsimused hanke korraldajale

Küsimus: private ID76974   16.06.2025 20:50
Tere.

Mis ajaks peaks olema parkett põrandale laotud ?
'
TErvitades, M

Teavita reeglite rikkumisest

Korraldaja vastus:
Hanke korraldaja ei ole küsimusele veel vastanud

Lisa küsimus

Lisa küsimus

Minu pakkumine

Reeglid

Pakkumise kirjelduse väli on mõeldud pakkumise detailsemaks lahti kirjutamiseks. Pikema teksti mugavaks sisestamiseks klikkige kasti paremal ülaservas oleval ikoonil.
Pakkumist tehes on keelatud postitada enda kontaktandmeid (nimi, telefon, aadress jne). Me jälgime ja analüüsime pakkumisi, et vältida pettuseid ja reeglite rikkumisi.
Rikkumise puhul kasutajakonto blokeeritakse.

 

Teisi töid samas valdkonnas

Valdkonnas "Siseviimistlustööd" on 25 aktiivset tööd

Korteri remont

Asukoht: Harjumaa, Muraste
Aega jäänud: 2p 8h
Tehtud pakkumisi: 15

no-img Pilt puudub

Laminaatparketi paigaldus

Asukoht: Harjumaa, Tallinn
Aega jäänud: 4p 8h
Tehtud pakkumisi: 8

Vanemad teated:

Vaata kõiki

Sellel veebilehel kasutatakse küpsiseid. Kasutamist jätkates nõustute küpsiste kasutamisega.

Sulge
 
Minu pakkumine

Reeglid

Pakkumise kirjelduse väli on mõeldud pakkumise detailsemaks lahti kirjutamiseks. Pikema teksti mugavaks sisestamiseks klikkige kasti paremal ülaservas oleval ikoonil.
Pakkumist tehes on keelatud postitada enda kontaktandmeid (nimi, telefon, aadress jne). Me jälgime ja analüüsime pakkumisi, et vältida pettuseid ja reeglite rikkumisi.
Rikkumise puhul kasutajakonto blokeeritakse.