+ Lisa oma töö      

Otsid ehitajat "Vundamenditööd" valdkonnast?

Parima pakkumise ja teostaja leidmiseks lisa oma töö.

Plaatvundamendi ehitus

ID 116995

860 vaatamist

Prindi

  • check Pakkumiste tegemine
    kuni 08.06.2025
  • check Võitja valik kuni
    15.06.2025
  • 3 Töö teostamine
    ja hinnang
Hanke lõpp: P, 8. juuni, 2025
Maakond: Läänemaa
Tööde lõpp: E, 30. juuni, 2025
Ehitusmaterjalid: Töö tellija poolt
Soovin pakkumisi: Summa kogu projektile

Töö sisu

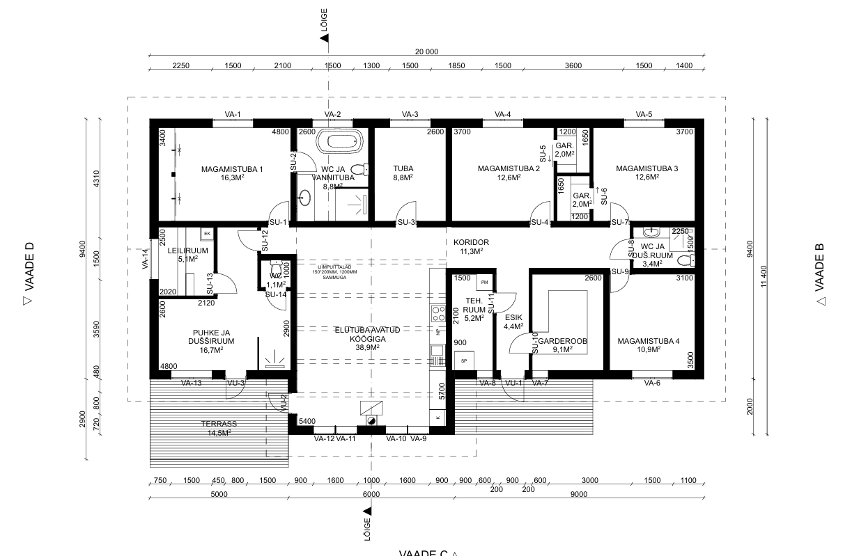
Plaatvundamendi ehitus 200rm eramule põrandaküttega

Pildid, video ja failid

Hanke korraldaja: eraisik ID90911

Pakkumised

Pakkumisi kokku: 5

Ettevõte Summa Käibemaks Lisatud Vestlus
Kasutaja ikoon ID54770
Pakkuja profiil Väike nool paremale
36 000€ KM lisandub KM lisandub 06.06.2025 Vestlus (0)
Kasutaja ikoon ID72008
Pakkuja profiil Väike nool paremale
29 500€ Ikoon kell KM lisandub KM lisandub 06.06.2025 Vestlus (0)

Pakkumise kirjeldus:

Sisaldab-

Pinnase koorimist ja täitmist.
L-plokk 400mm paigaldust ja 300mm sojustust.
Armeerimist -paksendused rangidega ja 12mm pikirauad.armatuurvõrk 8mm.
Tarbevesi ja kanal.
Põrandaküte 20mm koos survestamisega.
Betoonivalu c25/30 betooniga.

Hinnas ei sisaldu ainult sokli viimistlus ja täitematerjal.

Kui soovite materjali ise võtta sii ... Rohkem

Kasutaja ikoon ID61081
Pakkuja profiil Väike nool paremale
24 000€ KM lisandub KM lisandub 06.06.2025 Vestlus (0)

Pakkumise kirjeldus:

Tere.

Hinnapakkumine antud tööle koos materjalidega, ei sisalda aluspinna täitmist. Täpsemalt sõnumites

Kasutaja ikoon ID50329
Pakkuja profiil Väike nool paremale
31 000€ KM lisandub KM lisandub 07.06.2025 Vestlus (0)
Kasutaja ikoon ID90921
Pakkuja profiil Väike nool paremale
10 000€ Ei ole KMKR Ei ole KMKR 08.06.2025 Vestlus (0)

Pakkumise kirjeldus:

Üle 20 aastase betoonitööde kogemusega võime vajadusel teha Teie maja plaatvundamendi betooni nii kvaliteetse, et see enam parketti ei vajagi. Lisaks saame tagada, et kõik kanali-, vee- ja küttetorud paigaldatakse professionaalse täpsusega. Tellija soovi korral saama loomulikult ka ise soodsa hinnaga vajalikke materjale tarnida. Praegune pakutud hin ... Rohkem

Küsimused hanke korraldajale

Küsimus: private ID38464   05.06.2025 22:37
Tere . Kas aluspind tehtud ?

Teavita reeglite rikkumisest

Korraldaja vastus: 06.06.2025 07:37

Aluspind saab tehtud selleks nädala jooksul umbes

Teavita reeglite rikkumisest

Lisa küsimus

Lisa küsimus

Minu pakkumine

Reeglid

Pakkumise kirjelduse väli on mõeldud pakkumise detailsemaks lahti kirjutamiseks. Pikema teksti mugavaks sisestamiseks klikkige kasti paremal ülaservas oleval ikoonil.
Pakkumist tehes on keelatud postitada enda kontaktandmeid (nimi, telefon, aadress jne). Me jälgime ja analüüsime pakkumisi, et vältida pettuseid ja reeglite rikkumisi.
Rikkumise puhul kasutajakonto blokeeritakse.

 

Vanemad teated:

Vaata kõiki

Sellel veebilehel kasutatakse küpsiseid. Kasutamist jätkates nõustute küpsiste kasutamisega.

Sulge
 
Minu pakkumine

Reeglid

Pakkumise kirjelduse väli on mõeldud pakkumise detailsemaks lahti kirjutamiseks. Pikema teksti mugavaks sisestamiseks klikkige kasti paremal ülaservas oleval ikoonil.
Pakkumist tehes on keelatud postitada enda kontaktandmeid (nimi, telefon, aadress jne). Me jälgime ja analüüsime pakkumisi, et vältida pettuseid ja reeglite rikkumisi.
Rikkumise puhul kasutajakonto blokeeritakse.