+ Lisa oma töö      

Otsid ehitajat "Siseviimistlustööd" valdkonnast?

Parima pakkumise ja teostaja leidmiseks lisa oma töö.

Tapeetimine

ID 116974

804 vaatamist

Prindi

  • check Pakkumiste tegemine
    kuni 08.06.2025
  • check Võitja valik kuni
    15.06.2025
  • 3 Töö teostamine
    ja hinnang
Hanke lõpp: P, 8. juuni, 2025
Maakond: Harjumaa
Muu asula: Saku
Tööde lõpp: P, 15. juuni, 2025
Ehitusmaterjalid: Töö tellija poolt
Soovin pakkumisi: Summa kogu projektile

Töö sisu

Tere

Küsiks pakkumist tapeetimisele. Saku, saab ukse ette parkida. Pistikuid ei ole paigas ja saan kõik asjad eest ära tõsta töö tegemise jaoks.

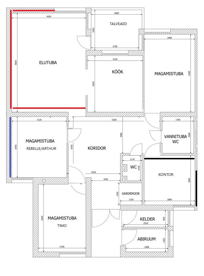
1. Sein 10,8m ja ülemine osa 1,4m vaja tapeetida (sein alt tumesinine) tapeet
https://www.bauhaus.ee/fliistapeet-diamond-ornament-hele-taust.html
2. Sein 3,5m lai ja 2,5m kõrge, tapeet
https://www.bauhaus.ee/fliistapeet-a-s-creation-my-home-my-spa-katariina-0-53-x-10-05-m-38708-3.html
3. Sein 5,6m lai ja 2,5m kõrge. Vaja kaks osa tapeetida, keskele jääb roheline post. Tapeet https://www.bauhaus.ee/fliistapeet-a-s-creation-pintwalls-39748-4-valge.html.
Tapeediliim olemas selline, kui ei sobi võib enda liimiga teha:
https://www.bauhaus.ee/tapeediliim-metylan-direct-vliestapeten-200-g.html

Seinad siledaks pahteldatud ja krunditud ning värvitud 2 korda.

Pildid, video ja failid

Hanke korraldaja: eraisik ID38776

Pakkumised

Pakkumisi kokku: 4

Ettevõte Summa Käibemaks Lisatud Vestlus
Kasutaja ikoon ID77473
Pakkuja profiil Väike nool paremale
1 500€ Ei ole KMKR Ei ole KMKR 05.06.2025 Vestlus (3)

Pakkumise kirjeldus:

Hinnapakkumine kirjeldatud töödele.

Küsimused on teretulnud.

Edu hankel

Kasutaja ikoon ID81836
Pakkuja profiil Väike nool paremale
480€ Sisaldab KM Sisaldab KM 06.06.2025 Vestlus (7)

Pakkumise kirjeldus:

Tere,
Hinnapakkumine tapeedi paigaldusele.

Suht palju paane ja lõikamist, hind ka selle võrra vastav.

Tapeedi liimiks ise soovitan Kiilto Master Flis.

Töö igati korralik!

Lugupidamisega,
Andi

Kasutaja ikoon ID87310
Pakkuja profiil Väike nool paremale
400€ Ei ole KMKR Ei ole KMKR 06.06.2025 Vestlus (3)
Kasutaja ikoon ID73521
Pakkuja profiil Väike nool paremale
550€ Sisaldab KM Sisaldab KM 08.06.2025 Vestlus (8)

Küsimused hanke korraldajale

Küsimus: private ID81836   06.06.2025 00:14
Tere,
Tegi pakkumise, jäi mainimata, et saaksin tulla töö ära teha juba järgmisel nädalal.

Teavita reeglite rikkumisest

Korraldaja vastus: 07.06.2025 09:45

Tere! Selge

Teavita reeglite rikkumisest

Lisa küsimus

Lisa küsimus

Minu pakkumine

Reeglid

Pakkumise kirjelduse väli on mõeldud pakkumise detailsemaks lahti kirjutamiseks. Pikema teksti mugavaks sisestamiseks klikkige kasti paremal ülaservas oleval ikoonil.
Pakkumist tehes on keelatud postitada enda kontaktandmeid (nimi, telefon, aadress jne). Me jälgime ja analüüsime pakkumisi, et vältida pettuseid ja reeglite rikkumisi.
Rikkumise puhul kasutajakonto blokeeritakse.

 

Teisi töid samas valdkonnas

Valdkonnas "Siseviimistlustööd" on 26 aktiivset tööd

Korteri remont

Asukoht: Harjumaa, Muraste
Aega jäänud: 2p 9h
Tehtud pakkumisi: 15

no-img Pilt puudub

Laminaatparketi paigaldus

Asukoht: Harjumaa, Tallinn
Aega jäänud: 4p 9h
Tehtud pakkumisi: 8

Vanemad teated:

Vaata kõiki

Sellel veebilehel kasutatakse küpsiseid. Kasutamist jätkates nõustute küpsiste kasutamisega.

Sulge
 
Minu pakkumine

Reeglid

Pakkumise kirjelduse väli on mõeldud pakkumise detailsemaks lahti kirjutamiseks. Pikema teksti mugavaks sisestamiseks klikkige kasti paremal ülaservas oleval ikoonil.
Pakkumist tehes on keelatud postitada enda kontaktandmeid (nimi, telefon, aadress jne). Me jälgime ja analüüsime pakkumisi, et vältida pettuseid ja reeglite rikkumisi.
Rikkumise puhul kasutajakonto blokeeritakse.