+ Lisa oma töö      

Otsid ehitajat "Üldehitus" valdkonnast?

Parima pakkumise ja teostaja leidmiseks lisa oma töö.

Maja ehitus

ID 116564

1708 vaatamist

Prindi

  • check Pakkumiste tegemine
    kuni 09.07.2025
  • check Võitja valik kuni
    16.07.2025
  • 3 Töö teostamine
    ja hinnang
Hanke lõpp: K, 9. juuli, 2025
Maakond: Harjumaa
Linn: Tallinn
Tööde lõpp: Kokkuleppel
Ehitusmaterjalid: Töö tegija poolt
Soovin pakkumisi: Tüki- või ühikuhinda

Töö sisu

See on indikatiivne hinna küsimine. Soovin leida partnerit, kellega tulevikus võimalikku koostööd arendada.
Saadan esialgu väljavõtte eelprojektist, puuduolevat infot jagan juba konkreetsetele asjast huvitatud pakkujatele.

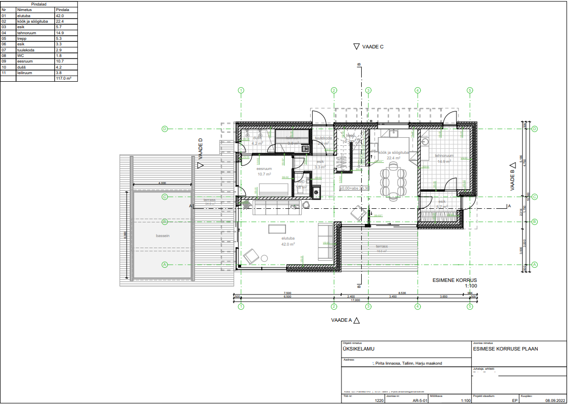
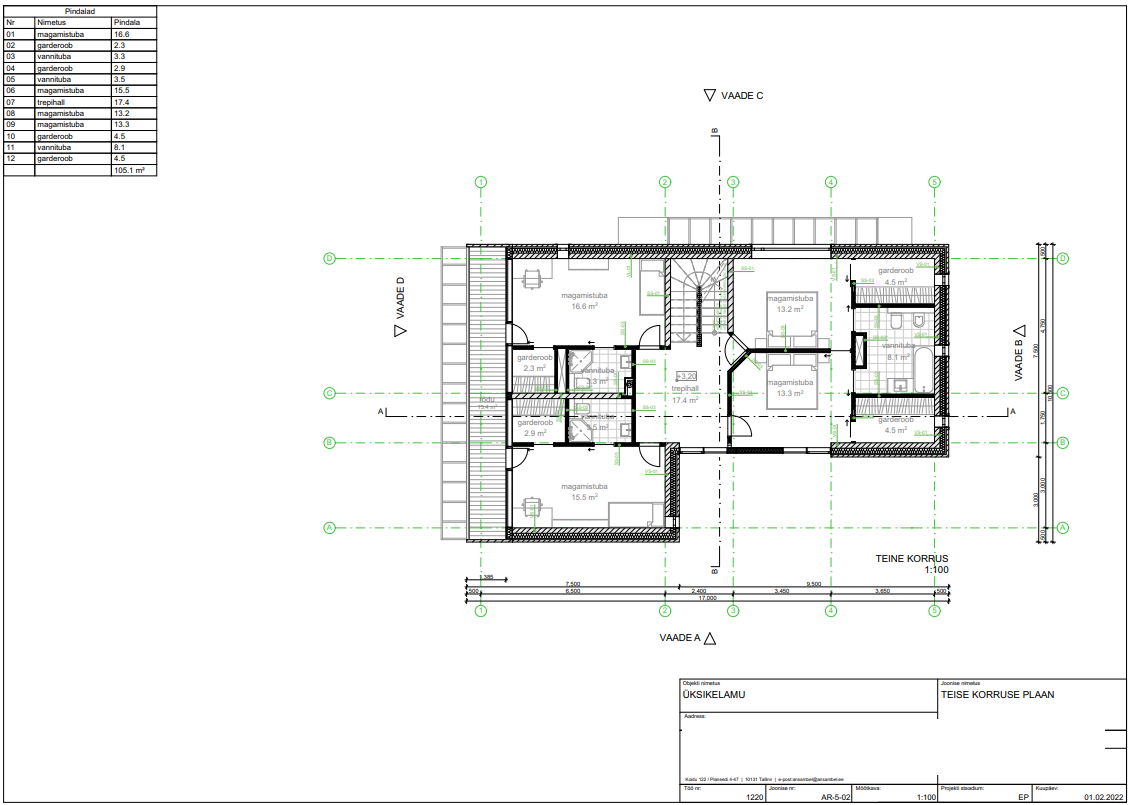
Majale on koostatud eelprojekt. Projekti kirjeldus:
- Kinnistu tehnilised andmed:
* Pindala: 1205 m²
* Sihtotstarve: Elamumaa
* Ehitisealune pind: 150,0 m²
* Hoone kasutamise otstarve: 11101 üksielamu
* Suletud netopind: 229,2 m2
* Köetav pind: 229,2 m2
* Korruste arv: 2
* Absoluutne kõrgus: 33,9 m
* Kõrgus : 9,0 m
* Pikkus: 17,0 m
* Laius: 10,5 m
* Maht: 950 m3
* Ehitusluba väljastatud
- Hoone arhitektuurne üldkontseptsioon ja ruumid:
Detailplaneeringuga määrtud ehitusõigust järgiv kahekordne lamekatusega maja avaneb suurte
aknapindadega lõuna- ja õhtukülge. Hoone esimesel korrusel paiknevad eluruumid koos sauna
ja tehnopinnaga ning teisel korrusel magamistoad koos vannitubadega. Avar esimese korruse
eluruum on tsoneeritud elutoa ning köögi ja söögitoa alaks. Eluruume ja aeda ühendab suur terrassipind. Teisel korrusel on rõdu, mis paikneb elutoa ja saunakompleksi kohal. Viimistlusmaterjalidena on kasutatud heledat tellist ja termotöödeldud puitlaudist.
- Ehitus on planeeritud üheetapiline.
- Olemas topo geodeetiline alusplaan tehnovõrkudega ja dendroloogiline hinnang.
- Olemasolevaid hooneid ja rajatisi krundil ei ole.
- Maapinna kõrgusarvud jäävad vahemikku 24.75
- Kinnistu kõrghaljastus koosneb peamiselt kodumaistest liikidest. Okaspuudest on esindatud
harilikud kuused, mis paiknevad ridadena olemasoleva sissesõidutee ääres. Lehtpuudest leidub
kaski, halle leppasid, harilikke vahtraid ja harilikke saari.
- Juurdepääs kinnistule on tagatud põhjapoolsest küljest.
- hoone paikneb detailplaneeringuga määratud hoonestusalas. Täpset paigutust vt asendiplaani
jooniselt.
- Projekteeritava hoone nulltasapinnaks (±0,00) on arvestatud absoluutkõrgus 25,30 m.
- Sademevesi lahendatakse kinnistu siseselt, naaberkinnistutele on sademevee juhtimine
keelatud. Hoone katuselt tuleva sademevee käitlemiseks on kinnistule ette nähtud
sademeveemahuti koos imbväljakuga.
- Autode parkimine (kaks kohta) on projekteeritud hoone kõrval paiknevale sillutatud alale.
- Juurdepääs kinnistule on ette nähtud kinnistu idapoolsest küljest .
- Parkimisala, sorteeritud jäätme kogumisala ja kõnniteed hoone ümber on planeeritud sillutada
betoon- või klinkerkividega. Katendite paiknemist vt asendiplaanilt. Parkimisala konstruktsioon :
* betoon- või klinkerkivi
* paigaldusliiv h=30 mm
* killustikalus h=200mm
* liivalus h=200 mm,
* olemasolev ja/või mineraalne pinnas
Kõnniteede konstruktsioon :
* betoon- või klinkerkivi
* paigaldusliiv h=30 mm
* killustikalus h=60 mm
* olemasolev ja/või mineraalne pinnas
- Olemasoleva haljastuse kirjeldust vt p 2.2.4.
* Likvideeritakse ehitustegevusele ette jääv kõrghaljastus.
* Välistrasside, vundamentide ja katendite rajamiseks teostatavate kaeve- ja pinnasetööde ajaks
tuleb väärtuslike puid kaitsta vigastuste eest.
* Kaevetööde tegemisel säilitatavate puude läheduses, kus võib olla tegemist kergesti variseva
pinnasega, rajada tugiseinad, mis väldivad juurestiku kahjustamist nihkumise tagajärjel.
* Kaevetööga seotud alal piirata üksikpuud või puude ja põõsaste grupid piki juurestiku kaitseala
piiri ajutise piirdeaiaga.
* Kaevetöö tegemisel juurestiku kaitsealal tuleb puudele paigaldada tüvekaitsed ning kaevetöö
teha kas käsitsi või kinnisel viisil sügavamal kui 1 m.
* Lisaks tuleb kasutusele võtta muid projektis kirjeldatud kõrghaljastuse kaitsmiseks vajalikke meetmeid.
* Projekteeritud haljastus - Hoone ümber kujundatakse niidetav muruala. Muruala ulatust vt asendiplaanilt.
- Piirded ja väravad - Projektlahendus näeb ette kinnistu piiritlemist 1,5 m kõrguse metallvarbaiaga ja 25 m pikkusel lõigul paekiviaeda.
- Ehtusjäätmed - ehitusjäätmete nõuetele vastava käitlemise eest vastutab ehitusjäätmete valdaja, ehitaja. Kõik tekkivad ehitusjäätmed taaskasutakse või antakse üle käitlemiseks jäätmeluba omavale või jäätmekäitlejana registreeritud isikule. Ohtlike ehitusjäätmete käitlemist tuleb korraldada vastavalt kehitvatele nõuetele.
- Välisvalgustuse lahendus antakse ehitusprojekti järgmises staadiumis, kuid võimalusel ehitaja võiks oma kogemusele tuginedes välja pakkuda välivalgustuse maksumuse ja juurde kirjeldada, mida hind sisaldab. Tagada tuleb hoone sissepääsude ülesvalgustamine fassaadidel ja varikatustel paiknevate valgustitega. Täiendava fassaadivalgustuse vajadus määratakse ehitusprojekti järgmises staadiumis.
- Arhitektuurinõuded:
Variant 1: Lamekatus, Variant 2: Katusekall 30 kraadi.
Katuseharja suund paralleelne
või risti planeeritud teega.
Soovituslikud välisviimistlusmaterjalid: krohv, puit, klaas, betoon, tellis. Katusekattematerjal: rullmaterjal (kui on lamekatus), katusekivi.
- Energiatõhusus
Ettevõtlus- ja infotehnoloogiaministri 11.12.2018 määruse nr 63 „Hoone energiatõhususe miinimumnõuded“ paragrahv 8 lõike 2 alusel on päikeseenergiasüsteemi kasutava liginullenergiahoone püstitamisel lubatud energiatõhususe erisused juhul, kui päikeseenergiasüsteemi paigladamine ei ole majanduslikult põhjendatav või tehniliselt teostatav. Sellisel juhul peab hoone energiatõhususarv ilma lokaalselt toodetud taastuvelektrienergiat arvestamata vastama madalenergiahoone energiatõhususarvu piirväärtusele. Määruse nr 63 paragrahv 8 lõike 4 punkti 3 kohaselt loetakse tehniliselt teostamatuks olukorda, kus hoonel ei ole liginullenergiahoone taseme saavutamiseks vajaliku võimsusega päikeseenergiasüsteemi paigaldamise jaoks piisavalt päikesepoolse suunaga ja teiste objektide poolt varjutamata katusepinda. Antud juhul varjutab projekteeritud eramu katusepinda ja hooviala kinnistul kasvav väärtuslik kõrghaljastus, millest lähtub ka
detailplaneeringuga määratud hoonestusala, mistõttu ei ole vajaliku võimsusega päikeseenergiasüsteemi paigaldamine hoone katusele ega ka kinnistule võimalik. Kompaktse mahujaotusega hoone on energiasäästlik ning vastab madalenergiahoonele kehtestatud nõuetele. Energiatõhusus on tagatud hästi isoleeritud välispiirete, külmasillavabade sõlmlahendustega ja kõrge efektiivsusega soojustagastusega sundventilatsiooni ja küttesüsteemiga.
- Nõuded hoone piirdetarinditele
Hoone piirdetarindid rajada vastavalt käesoleva projekti koosseisu kuuluvatele joonistele. Projektis sisalduva ehitusviisi, materjalide ja tehnoloogiate muutmine ja asendamine ei ole lubatud ilma projekteerija nõusolekuta.
Vundament ja sokkel
Hoone kandvate seinte alla rajada lintvundament. Vundamenditaldmikule laduda õõnesbetoonplokkidest täisbetoneeritud müüritis. Pinnasesse jääv müüritis ja vundamendi taldmik katta võõphüdroisolatsiooniga. Vundamendi välisküljele paigaldada ekstrudeeritud polüstüreenvahust (nt Isover XPS foam) soojustusplaatid. Hoone sokkel laduda 90 mm paksustest õõnesbetoonplokkidest.
Põrand pinnasel
Betoonpõrand ehitada mittekülmakerkelisele pinnasele (killustik). Pinnase kõrge radooni sisalduse tõttu tuleb arvestada radoonitõkkesüsteemi rajamisega. Radoonitõkkesüsteemi täpne lahendus määratakse põhiprojekti faasis. Põranda aluskiht peab olema ventileeritav ja radooni läbilaskmatu. Killustiku peale paigaldada kahes kihist ekstrudeeritud polüstüreenvahust soojustusplaadid (nt Isover XPS foam) ja soojustuskihtide vahele radoonitõkkekile. Soojustusplaadid katta hüdroisolatsiooniga (kahes kihis PE-kile) ning selle peale valada
kiudbetooni kiht. Betoonplaat viimistleda vastavalt sisekujundusprojektile. Kõik läbiviigud põrandast ja liitekohad tuleb tihendada vastavalt radoonitõkke valmistaja juhistele.
Välisseinad
Hoone kandvad välisseinad rajada õõnesbetoonplokkidest. Seinte välisviimistluseks kasutada
fassaaditelliseid ja puitlaudist. Seinad soojustada mineraalvillast soojustusplaatidega.
Siseseinad
Hoone kandvad siseseinad laduda õõnesbetoonplokkidest. Mittekandvad vaheseinad rajada
kergkruusplokkidest ja metallkarkassil kipsplaatseintest. Ehitusplokkidest seinapinnad krohvida
ja viimistleda vastavalt sisekujundusprojektile. Metallkarkass-seinad katta kahes kihis kipsplaatidega. Seintel, millele on vaja kinnitada kappe, riidenagisid jms, kasutatada tugevdatud kipsplaate. Helipidavuse suurendamiseks paigaldada karkassi vahele 50 mm paksune mineraalvillakiht.
Vahelaed
Vahelaed ehitada monteeritavatest õõnespaneelidest. Paneelide peale paigaldada 30 mm
paksused jäigad sammumüraplaadid, PE-kile, r/b plaat ja põrandaviimistlus.
Katused ja rõdud
Hoone katus ehitada monteeritavatest õõnespaneelidest. Paneelid katta SBS-aurutõkke,
vahtpolüstüroolist soojustusplaatidega, tuulutussoontega jäiga mineraalvillaplaadiga ja
kahekihilise SBS-katusekattega. Soojustamata katusepinnal (rõdu kohal olev katus) paigaldada katusekandurite peale veekindlel vineer, vahtpolüstüroolist soojustusplaadid kallete andmiseks ja kahekihiline SBS-katusekate. Õõnespaneelide peal paiknev rõdu soojustada polüuretaanvahust soojustusplaatidega.
Soojustuse alla paigalda aurutõke. Soojustusplaadid katta koormust taluva ehitusplaadi ja
rullmaterjalist katusekattega. Tekitada konstruktsioonile sadevete ärajuhtimiseks vajalikud
kalded. Katusekatte peale rajada puitterrass.
Katuse lisatarvikud
Katusele on ette nähtud puitterrass. Puitterrass rajada reguleeritavatele terrassikanduritele.
Korstna puhastamiseks peab olema korstna juurde viiv luuk või redel, vajadusel ka käiguteed. Kõik katuse lisatarvikud (julgestussüsteem, ventilatsionnikorstnad jms) antakse põhiprojekti staadiumis.
Siseuksed
Siseuste kirjeldus antakse põhiprojekti staadiumis. Kuid pakkujal palun enda poolt indikatiivne maksumus ja välja tuua, milliste siseustega on arvestatud.
Aknad
Aknad on Saksa tüüpi puitaalumiiniumaknad. Avatavate osade avanemine sissepoole. Raamis
on 3-kordne klaaspakett, mille üks klaas on selektiivklaas. Aknalaudade lahendus antakse
sisekujundusprojektiga. Veeplekid teha värvitud ja tsingitud terasplekist.
Materjalid
Välisfassad - valge või helehall fassaaditellis: nt Aseri Terca helehall(titan) keraamiline tellis
Välisfassaad - horisontaalne laudis: pruun termotöödeldud puit
Sokkel Tumehalliks värvitud ehitusplokk
Katus - SBS rullmaterjal: tumehall
Parapetiplekid: must (RAL 9004)
Katuseelemendid - ventilatsioonitorud, katusepollarid: tumehall
Avatäited
* Välisuste väliskülg: must (RAL 9004)
* Aknaraami väliskülg: must (RAL 9004)
* Akende ja uste veeplekid: must (RAL 9004)
Terrass - Terrassilauad: pruun pind
Ruumide heliisolatsioon ja välisõhus leviv müra
Hoone tarindite projekteerimisel juhindutakse standardist EVS 842:2003 ”Ehitise heli-
isolatsiooninõuded. Kaitse müra eest“ nõuetest. Eluruumides (elutuba, magamistuba jne)
tagada helipidavus vähemalt 30 dB(A).
Hoone tehnosüsteemide (ventilatsioonisüsteemi) tekitatav müra ei tohi ületada kinnistu piiril normtasemeid. Keskkonnaministri 16.12.2016 määruse nr 71 "Välisõhus leviva müra normtasemed ja mürataseme mõõtmise, määramise ja hindamise meetodid" lisas 1 sätestatu kohaselt rakendatakse tehnoseadmete tekitatava müra piirväärtusena tööstusmüra sihtväärtust.
Radooniohu vähendamise meetmed
Kinnistu asub kõrge radoonisisaldusega pinnase alal. Pinnasel põrandakonstruktsioonis
kasutada radoonitõkkekilet ja aluskonstruktsiooni ventileerimiseks radoonikaevusid ja -
torustikku. Tagatud peavad olema tihendatud liitekohad ja läbiviigud tarinditest. Vältima peab
väikese difusioonitakistusega materjale. Sokli osas ei tohi kasutada tühjade õõntega
plokkmüüritist. Peale hoone valmimist teostada siseruumides Rn sisalduse kontrollmõõtmine.
Tuleohutusklass - TP3.
Kasutusviis I
* Eripõlemiskoormus hoones on alla 600 MJ/m2.
* Hoone sees tuletõkkesektsioone ei moodustata.
Tuletundlikkus - eluruumide sisepinnad
* Seinad, lagi: D-s2,d2
* Põrandad: nõudeid ei ole
Tehnilised ruumid
* Seinad, lagi: B-s1,d0
* Põrandad: DFL-s1
Hoone välispinnad
*Soojustussüsteem: D,d0
* Välisseina välispind: D,d2
* Õhutuspilu välispind D,d2
* Õhutuspilu sisepind: nõudeid ei ole
Katus
*Katusekatte väline tuletundlikkus: Broof(t2-t4)
Terrass
* Terrassipõranda konstruktsioon: D-s2
* Terrassipõranda pinnakiht: Dfl-s2
Evakuatsioonilaehendus
* Evakuatsioon toimub vahetult maapinnale.
Pääs katusele
* Katusele pääseb sisetrepi abil.
Tuleohutuspaigaldised
* Vähemalt ühes eluruumis peab olema paigaldatud autonoomne tulekahjusignalisatsiooniandur
ja vingugaasiandur.
Suitsueemaldamine
* Suitsuärastus hoonest toimub loomulikul tõmbel avatavate akende ja uste kaudu.
Tehnosüsteemide tuleohutus
* Projekteeritava hoone küte on lahendatud maasoojuspumbaga. Lisaks on majas puuküttega
kamin ja keris.
Hoone tugevvoolupaigaldise andmed
Pingesüsteem: TN-S, ~50Hz, 400/230V
Installeeritud võimsus: 70,0 kW
Arvutuslik võimsus: 33,0 kW
Arvutuslik võimsustegur cos φ: 0,95
Peakaitse liitumiskilbis: 3x50A
Madalpinge ( 1000 V) peajaotussüsteemid
Eramu tehnilises ruumis paigaldatakse peakilp PJK. Kilp on pinnapealne, kaitseastmega IP44. Kilbis
paiknevad eramu sisendpealüliti ning toiteliinide kaitsmed. Elektrikilbid peavad vastama kehtivatele nõuetele.

Puuduoleva info vastan juba konkreetselt pakkuja pärimise peale.

Pildid, video ja failid

Hanke korraldaja: eraisik ID89295

Pakkumised

Pakkumisi kokku: 5

Ettevõte Summa Käibemaks Lisatud Vestlus
Kasutaja ikoon ID86464
Pakkuja profiil Väike nool paremale
9 000€ KM lisandub KM lisandub 07.07.2025 Vestlus (0)

Pakkumise kirjeldus:

Vent.systemid ja proekt

Kasutaja ikoon ID73187
Pakkuja profiil Väike nool paremale
220 000€ KM lisandub KM lisandub 09.07.2025 Vestlus (0)

Pakkumise kirjeldus:

I. Üldandmed

Ehitisealune pind: 150,0 m²

Suletud netopind: 229,2 m²

Korruste arv: 2

Katuse kõrgus: 9,0 m

Hoone konstruktsioon: õõnesbetoonplokk, monteeritavad vahelaed, lamekatus

Kattematerjal: fassaaditellis + termopuit

Terrass ja rõdu



---

II. Töölõigud ja indikatiivsed ühikuhinnad (ilma KM-ta)

1. Vundamenditöö ... Rohkem

Kasutaja ikoon ID1058
Pakkuja profiil Väike nool paremale
440 000€ KM lisandub KM lisandub 09.07.2025 Vestlus (0)

Pakkumise kirjeldus:

Tere , hind suurusjärk .

Kasutaja ikoon ID87470
Pakkuja profiil Väike nool paremale
460 000€ KM lisandub KM lisandub 09.07.2025 Vestlus (0)

Pakkumise kirjeldus:

Tere.

Täpsema hinnakalkulatsiooni saame koostada kui oleme lähemalt tutvunud objektiga!
Meie profiili alt ID87470 näete meie poolt tehtud töid!

Meeskonnal tööde kogemus 30 aastat!

Pädevus volitatud insener tase 8

Eesti Võlausaldajate Liidu ametlik liige. Ausa ja läbipaistva ettevõtluse eest!

Dok koostamine.
Kaetud tööde akt, teos ... Rohkem

Kasutaja ikoon ID8633
Pakkuja profiil Väike nool paremale
460 000€ KM lisandub KM lisandub 09.07.2025 Vestlus (0)

Küsimused hanke korraldajale

Küsimus: private ID72372   16.06.2025 03:51
Tere. Kui on huvi, teostame ventilatsioonitöid, seadme ühendamisest kuni isolatsiooni paigaldamiseni.
Edu

Teavita reeglite rikkumisest

Korraldaja vastus: 17.06.2025 12:56

Tere! Aitäh, arvestan sellega. Ma saan õigesti aru, et teie käest hinnapakkumise saamiseks peab olemas olema eritööde joonised või on võimalik m2 põhjal välja arvutada üldisemad maksumused ja sinna juurde kirjeldada, mis materjale ja seadmeid on arvestatud?

Teavita reeglite rikkumisest

Küsimus: private ID72372   17.06.2025 13:31
Hei.
Ei pea olema jooniseid. Tubade/ruumide õhukogused ja siirdeõhu liikumine planeeritakse vastavalt hoonele.
Hoone m² korrutatakse kõrgusega, et saada teada kuubikmaht ja ruumi vajadused ning seadme valik.
Kokkuvõttes jah, saab hinnapakkumisi koostada selliselt.
Anna märku, kui tarvis.

Teavita reeglite rikkumisest

Korraldaja vastus:
Hanke korraldaja ei ole küsimusele veel vastanud

Lisa küsimus

Lisa küsimus

Minu pakkumine

Reeglid

Pakkumise kirjelduse väli on mõeldud pakkumise detailsemaks lahti kirjutamiseks. Pikema teksti mugavaks sisestamiseks klikkige kasti paremal ülaservas oleval ikoonil.
Pakkumist tehes on keelatud postitada enda kontaktandmeid (nimi, telefon, aadress jne). Me jälgime ja analüüsime pakkumisi, et vältida pettuseid ja reeglite rikkumisi.
Rikkumise puhul kasutajakonto blokeeritakse.

 

Teisi töid samas valdkonnas

Valdkonnas "Üldehitus" on 27 aktiivset tööd

Maja värvimine

Asukoht: Harjumaa, Saue
Aega jäänud: 2p 10h
Tehtud pakkumisi: 5

Terassi õlitamine, 13,7 ruutu

Asukoht: Harjumaa, Saue
Aega jäänud: 5p 10h
Tehtud pakkumisi: 5

Vanemad teated:

Vaata kõiki

Sellel veebilehel kasutatakse küpsiseid. Kasutamist jätkates nõustute küpsiste kasutamisega.

Sulge
 
Minu pakkumine

Reeglid

Pakkumise kirjelduse väli on mõeldud pakkumise detailsemaks lahti kirjutamiseks. Pikema teksti mugavaks sisestamiseks klikkige kasti paremal ülaservas oleval ikoonil.
Pakkumist tehes on keelatud postitada enda kontaktandmeid (nimi, telefon, aadress jne). Me jälgime ja analüüsime pakkumisi, et vältida pettuseid ja reeglite rikkumisi.
Rikkumise puhul kasutajakonto blokeeritakse.