+ Lisa oma töö      

Otsid ehitajat "Siseviimistlustööd" valdkonnast?

Parima pakkumise ja teostaja leidmiseks lisa oma töö.

Hange on lõppenud!

Võitjaks osutus kasutaja ID 73146

Korteri remont

ID 116400

1113 vaatamist

Prindi

  • check Pakkumiste tegemine
    kuni 10.06.2025
  • check Võitja valik kuni
    17.06.2025
  • 3 Töö teostamine
    ja hinnang
Hanke lõpp: T, 10. juuni, 2025
Maakond: Harjumaa
Linn: Tallinn
Tööde lõpp: Kokkuleppel
Ehitusmaterjalid: Töö tellija poolt
Soovin pakkumisi: Summa kogu projektile

Töö sisu

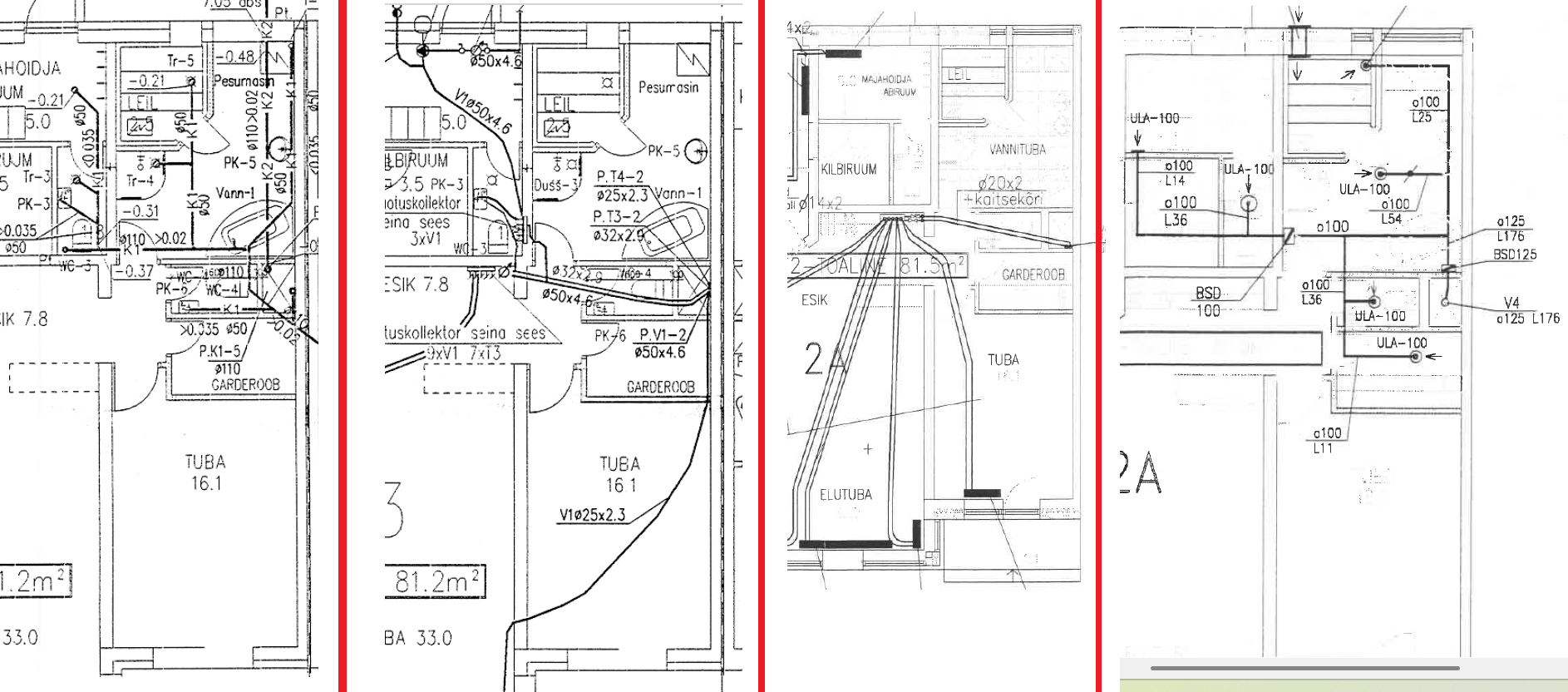
Korteri tubade ümberehitus. Vannitoast ja seal asuvast saunast on vaja ehitada magamistuba ja garderoobist vannituba. Lisaks WC ruumi laiendamine praeguse vannitoa arvelt. Tegemist on kipsseintega.
Maja korterite originaalplaanil on valesti märgitud garderoobi pindala, õige pindala on meie poolt koostatud plaanidel. Lisatud skemaatilised pildid, kus on näha oodatav tulemus.
Võimalikke tööde loetelu: seinade lammutamine, seinade ehitamine, uste paigaldamine, veetorustiku ülesehitus, radiaatori ja torustiku ehitus, seinte pahteldamine, keraamiliste pliitide paigaldamine.

Pildid, video ja failid

Hanke korraldaja: eraisik ID75629

Pakkumised

Pakkumisi kokku: 4

Ettevõte Summa Käibemaks Lisatud Vestlus
Kasutaja ikoon ID3527
Pakkuja profiil Väike nool paremale
15 000€ KM lisandub KM lisandub 30.05.2025 Vestlus (0)
Kasutaja ikoon ID73146
Pakkuja profiil Väike nool paremale
5 800€ Sisaldab KM Sisaldab KM 04.06.2025 Vestlus (0)

Pakkumise kirjeldus:

Tere!

Pakkumine tööle

Kasutaja ikoon ID70952
Pakkuja profiil Väike nool paremale
9 000€ KM lisandub KM lisandub 10.06.2025 Vestlus (0)

Pakkumise kirjeldus:

Tere,
Saame selle töö kiirelt ja kvaliteetselt ära teha.
Hetkel hind on indikatiivne kuna oleks vaja natuke täpsemat infot ning objektiga ülevaatust.Väike muutus võib olla + - kui kõik ülevaadatud ja Teie soovid ära kuulatud.
Kõigile töödele anname garantii 2 aastat ja materjalid saame ka ise tuua väga hea hinnaga.

Lugupidamisega

Kasutaja ikoon ID70688
Pakkuja profiil Väike nool paremale
15 000€ KM lisandub KM lisandub 10.06.2025 Vestlus (0)

Pakkumise kirjeldus:

Tere!

Saan aru, et kogu korter 81,2 m2 tuleb ümber teha.

Mõned küsimused:

-kas uksed jäävad samaks, mis praegu, või tulevad uued??
- kas elektrisüsteem tuleb ka vahetada?

Olemas meil kõik vajalik alates tellingustest ratastel kuni kaanega auto ärelkäruni välja materjali ja jäätmete jaoks.

Olemas meil eraldi maalerid(naised), san ... Rohkem

Küsimused hanke korraldajale

Hanke korraldajale ei ole veel küsimusi esitatud.

Lisa küsimus

Lisa küsimus

Minu pakkumine

Reeglid

Pakkumise kirjelduse väli on mõeldud pakkumise detailsemaks lahti kirjutamiseks. Pikema teksti mugavaks sisestamiseks klikkige kasti paremal ülaservas oleval ikoonil.
Pakkumist tehes on keelatud postitada enda kontaktandmeid (nimi, telefon, aadress jne). Me jälgime ja analüüsime pakkumisi, et vältida pettuseid ja reeglite rikkumisi.
Rikkumise puhul kasutajakonto blokeeritakse.

 

Teisi töid samas valdkonnas

Valdkonnas "Siseviimistlustööd" on 24 aktiivset tööd

Korteri remont

Asukoht: Harjumaa, Muraste
Aega jäänud: 2p 4h
Tehtud pakkumisi: 16

Seinte värvimine

Asukoht: Harjumaa, Tallinn
Aega jäänud: 4h 41 min
Tehtud pakkumisi: 7

Vanemad teated:

Vaata kõiki

Sellel veebilehel kasutatakse küpsiseid. Kasutamist jätkates nõustute küpsiste kasutamisega.

Sulge
 
Minu pakkumine

Reeglid

Pakkumise kirjelduse väli on mõeldud pakkumise detailsemaks lahti kirjutamiseks. Pikema teksti mugavaks sisestamiseks klikkige kasti paremal ülaservas oleval ikoonil.
Pakkumist tehes on keelatud postitada enda kontaktandmeid (nimi, telefon, aadress jne). Me jälgime ja analüüsime pakkumisi, et vältida pettuseid ja reeglite rikkumisi.
Rikkumise puhul kasutajakonto blokeeritakse.