+ Lisa oma töö      

Otsid ehitajat "Betoonitööd" valdkonnast?

Parima pakkumise ja teostaja leidmiseks lisa oma töö.

Betoonpõranda valu Võsu

ID 115956

784 vaatamist

Prindi

  • check Pakkumiste tegemine
    kuni 23.05.2025
  • check Võitja valik kuni
    30.05.2025
  • 3 Töö teostamine
    ja hinnang
Hanke lõpp: R, 23. mai, 2025
Maakond: Lääne-Virumaa
Muu asula: Võsu
Tööde lõpp: T, 10. juuni, 2025
Ehitusmaterjalid: Töö tellija poolt
Soovin pakkumisi: Summa kogu projektile

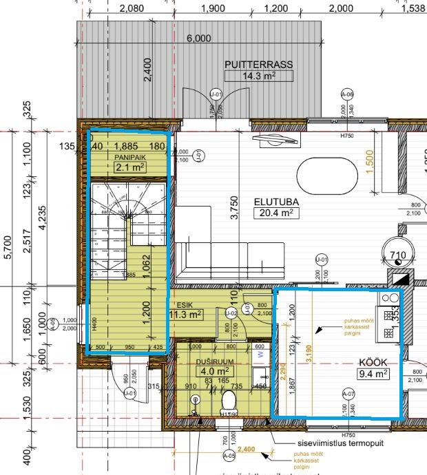
Töö sisu

Väike betoonpõranda valu keraamilise plaadi alla.
Põranda paksus arvestuslikult 55 mm, võrk 5x150x150.
Küttetorusid ei ole.
Joonisel sinisega märgitud ruumid.
Taldriku pind.

21 m2.

Pildid, video ja failid

Hanke korraldaja: ettevõte ID72365

Pakkumised

Pakkumisi kokku: 1

Ettevõte Summa Käibemaks Lisatud Vestlus
Kasutaja ikoon ID87642
Pakkuja profiil Väike nool paremale
575€ Ei ole KMKR Ei ole KMKR 21.05.2025 Vestlus (4)

Pakkumise kirjeldus:

Tere! Pakkumine sisaldab valamist ja lihvimist.

Parimat

Küsimused hanke korraldajale

Hanke korraldajale ei ole veel küsimusi esitatud.

Lisa küsimus

Lisa küsimus

Minu pakkumine

Reeglid

Pakkumise kirjelduse väli on mõeldud pakkumise detailsemaks lahti kirjutamiseks. Pikema teksti mugavaks sisestamiseks klikkige kasti paremal ülaservas oleval ikoonil.
Pakkumist tehes on keelatud postitada enda kontaktandmeid (nimi, telefon, aadress jne). Me jälgime ja analüüsime pakkumisi, et vältida pettuseid ja reeglite rikkumisi.
Rikkumise puhul kasutajakonto blokeeritakse.

 

Teisi töid samas valdkonnas

Valdkonnas "Betoonitööd" on 6 aktiivset tööd

Betoonist platsi valamine väljas.

Asukoht: Harjumaa, Luige
Aega jäänud: 12h 10 min
Tehtud pakkumisi: 4

Betoonpõranda valu

Asukoht: Harjumaa, Jõelähtme
Aega jäänud: 2p 12h
Tehtud pakkumisi: 3

Vanemad teated:

Vaata kõiki

Sellel veebilehel kasutatakse küpsiseid. Kasutamist jätkates nõustute küpsiste kasutamisega.

Sulge
 
Minu pakkumine

Reeglid

Pakkumise kirjelduse väli on mõeldud pakkumise detailsemaks lahti kirjutamiseks. Pikema teksti mugavaks sisestamiseks klikkige kasti paremal ülaservas oleval ikoonil.
Pakkumist tehes on keelatud postitada enda kontaktandmeid (nimi, telefon, aadress jne). Me jälgime ja analüüsime pakkumisi, et vältida pettuseid ja reeglite rikkumisi.
Rikkumise puhul kasutajakonto blokeeritakse.