+ Lisa oma töö      

Otsid ehitajat "Siseviimistlustööd" valdkonnast?

Parima pakkumise ja teostaja leidmiseks lisa oma töö.

Korteri remont

ID 115687

1108 vaatamist

Prindi

  • check Pakkumiste tegemine
    kuni 24.05.2025
  • check Võitja valik kuni
    31.05.2025
  • 3 Töö teostamine
    ja hinnang
Hanke lõpp: L, 24. mai, 2025
Maakond: Harjumaa
Linn: Keila
Tööde lõpp: Kokkuleppel
Ehitusmaterjalid: Töö tegija poolt
Soovin pakkumisi: Tüki- või ühikuhinda

Töö sisu

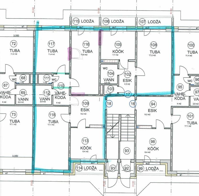
Pakkumist ruumide 109, 110, 112, 116, 117, 118 remondiks. Seintesse on vaja raiuda kaablirennid, paigaldada kaablid vastavalt projektile ja teha uus viimistlus, kaasa arvatud tapetseerimine. Toas 118 tuleb asendada kilpparkett. Teistes tubades on laminaat, asendada juhul, kui remodi käigus kannatada saab. Elektritöödele projekt ja kogu remondile teostusdokumenatsioon. Pakkumist soovin tubade ja tööde kaupa.
Korter asub kolmandal korrusel liftita majas.

Pildid, video ja failid

Hanke korraldaja: eraisik ID90280

Pakkumised

Pakkumisi kokku: 1

Ettevõte Summa Käibemaks Lisatud Vestlus
Kasutaja ikoon ID70952
Pakkuja profiil Väike nool paremale
1 000€ KM lisandub KM lisandub 24.05.2025 Vestlus (2)

Pakkumise kirjeldus:

Tere,
Kahjuks on infot liiga vähe ,et teha opakkumine mis oleks adekvaatne.Hetkel on hind indikatiivne ning info saamisel saab teha juba täpse pakkumise.

Kõigile töödele anname garantii 2 aastat ja materjalid saame ka ise tuua väga hea hinnaga.

Lugupidamisega

Küsimused hanke korraldajale

Hanke korraldajale ei ole veel küsimusi esitatud.

Lisa küsimus

Lisa küsimus

Minu pakkumine

Reeglid

Pakkumise kirjelduse väli on mõeldud pakkumise detailsemaks lahti kirjutamiseks. Pikema teksti mugavaks sisestamiseks klikkige kasti paremal ülaservas oleval ikoonil.
Pakkumist tehes on keelatud postitada enda kontaktandmeid (nimi, telefon, aadress jne). Me jälgime ja analüüsime pakkumisi, et vältida pettuseid ja reeglite rikkumisi.
Rikkumise puhul kasutajakonto blokeeritakse.

 

Teisi töid samas valdkonnas

Valdkonnas "Siseviimistlustööd" on 24 aktiivset tööd

Korteri remont

Asukoht: Harjumaa, Muraste
Aega jäänud: 2p 17h
Tehtud pakkumisi: 15

no-img Pilt puudub

Laminaatparketi paigaldus

Asukoht: Harjumaa, Tallinn
Aega jäänud: 4p 17h
Tehtud pakkumisi: 7

Vanemad teated:

Vaata kõiki

Sellel veebilehel kasutatakse küpsiseid. Kasutamist jätkates nõustute küpsiste kasutamisega.

Sulge
 
Minu pakkumine

Reeglid

Pakkumise kirjelduse väli on mõeldud pakkumise detailsemaks lahti kirjutamiseks. Pikema teksti mugavaks sisestamiseks klikkige kasti paremal ülaservas oleval ikoonil.
Pakkumist tehes on keelatud postitada enda kontaktandmeid (nimi, telefon, aadress jne). Me jälgime ja analüüsime pakkumisi, et vältida pettuseid ja reeglite rikkumisi.
Rikkumise puhul kasutajakonto blokeeritakse.