+ Lisa oma töö      

Otsid ehitajat "Betoonitööd" valdkonnast?

Parima pakkumise ja teostaja leidmiseks lisa oma töö.

Betoonpõrandate valamine

ID 115056

837 vaatamist

Prindi

  • check Pakkumiste tegemine
    kuni 10.05.2025
  • check Võitja valik kuni
    17.05.2025
  • 3 Töö teostamine
    ja hinnang
Hanke lõpp: L, 10. mai, 2025
Maakond: Harjumaa
Linn: Tallinn
Tööde lõpp: Kokkuleppel
Ehitusmaterjalid: Töö tegija poolt
Soovin pakkumisi: Summa kogu projektile

Töö sisu

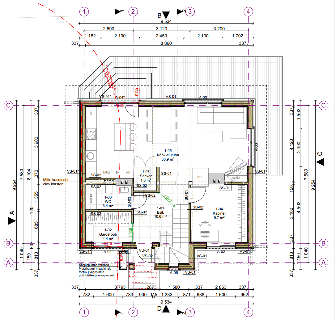
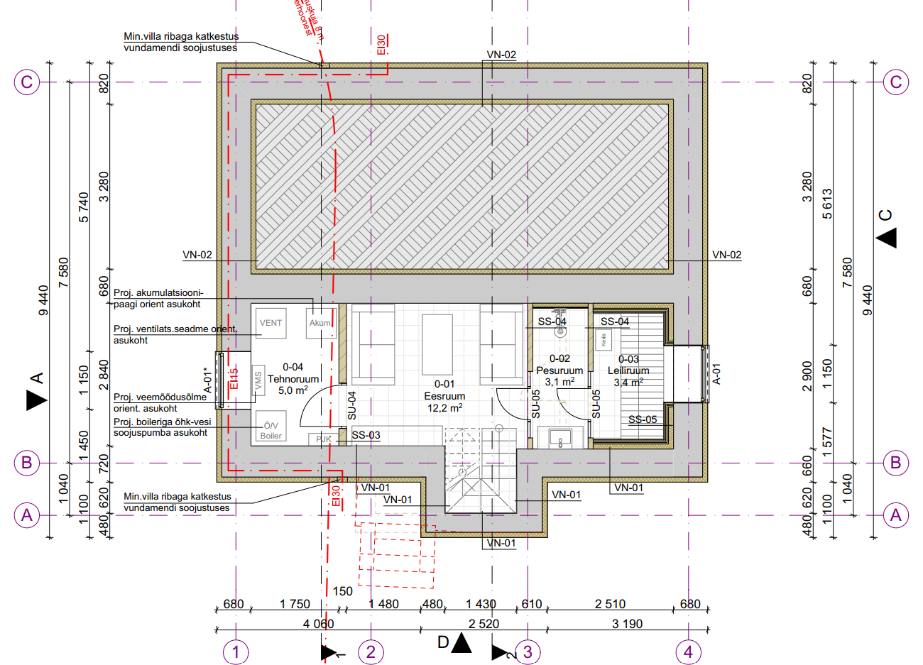
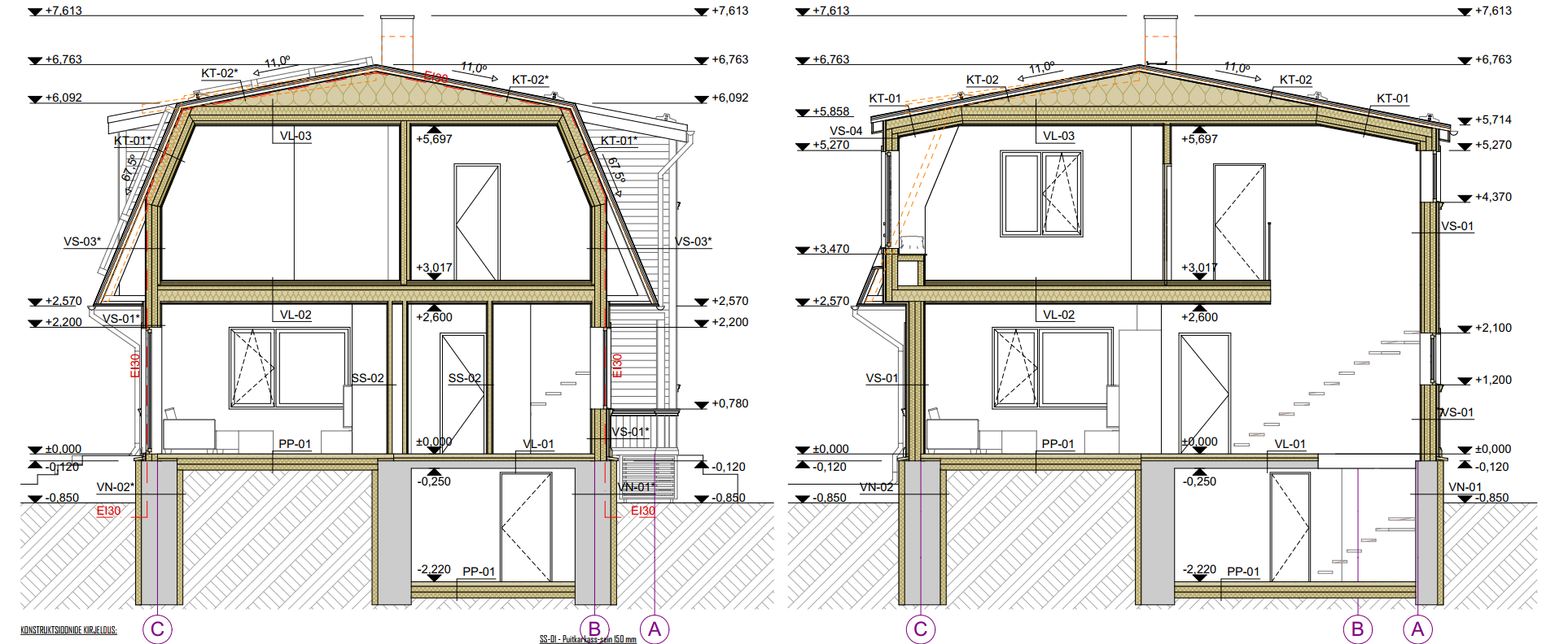
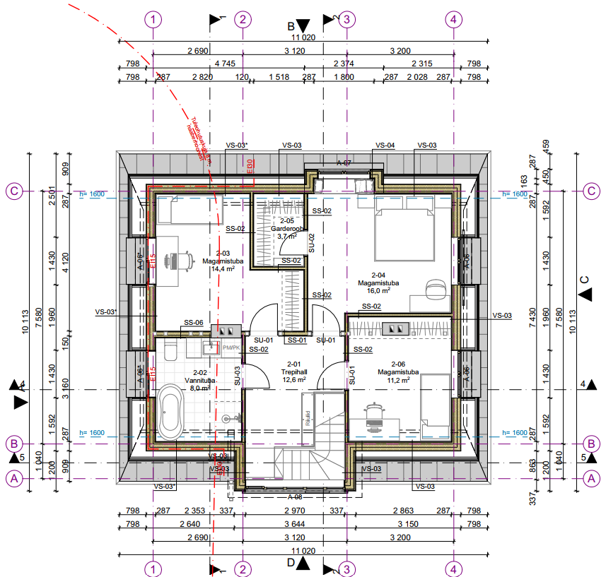
Soovin hinnapakkumist eramaja põrandate valamisele ja soojustamisele (sh ettevalmistustööd)
Keldrikorrus – põrand pinnasel PP-01 – 23,7m2
1. Korrus – põrand pinnasel PP-01 – 35,0m2
1. Korrus – põrand vahelael VL-01 – 28,6m2
2. Korrus – põrand vahelael (asendame kipsvalu-ga) VL-02 – 65,9m2

Tööd on planeeritud juuni kuusse.

Pildid, video ja failid

Hanke korraldaja: eraisik ID77216

Pakkumised

Pakkumisi kokku: 1

Ettevõte Summa Käibemaks Lisatud Vestlus
Kasutaja ikoon ID87642
Pakkuja profiil Väike nool paremale
700€ Ei ole KMKR Ei ole KMKR 08.05.2025 Vestlus (0)

Pakkumise kirjeldus:

Tere! Teen pakkumise ainult keldri-ja esimese korruse betoonivalule ja lihvimisele. Ei sisalda betooni. Kuna hankes ei ole piisavalt informatsiooni siis ülejäänud töödele teeks pakkumise peale objektiga tutvumist.

Parimat

Küsimused hanke korraldajale

Hanke korraldajale ei ole veel küsimusi esitatud.

Lisa küsimus

Lisa küsimus

Minu pakkumine

Reeglid

Pakkumise kirjelduse väli on mõeldud pakkumise detailsemaks lahti kirjutamiseks. Pikema teksti mugavaks sisestamiseks klikkige kasti paremal ülaservas oleval ikoonil.
Pakkumist tehes on keelatud postitada enda kontaktandmeid (nimi, telefon, aadress jne). Me jälgime ja analüüsime pakkumisi, et vältida pettuseid ja reeglite rikkumisi.
Rikkumise puhul kasutajakonto blokeeritakse.

 

Teisi töid samas valdkonnas

Valdkonnas "Betoonitööd" on 6 aktiivset tööd

Betoonist platsi valamine väljas.

Asukoht: Harjumaa, Luige
Aega jäänud: 10h 13 min
Tehtud pakkumisi: 4

Betoonpõranda valu

Asukoht: Harjumaa, Jõelähtme
Aega jäänud: 2p 10h
Tehtud pakkumisi: 3

Vanemad teated:

Vaata kõiki

Sellel veebilehel kasutatakse küpsiseid. Kasutamist jätkates nõustute küpsiste kasutamisega.

Sulge
 
Minu pakkumine

Reeglid

Pakkumise kirjelduse väli on mõeldud pakkumise detailsemaks lahti kirjutamiseks. Pikema teksti mugavaks sisestamiseks klikkige kasti paremal ülaservas oleval ikoonil.
Pakkumist tehes on keelatud postitada enda kontaktandmeid (nimi, telefon, aadress jne). Me jälgime ja analüüsime pakkumisi, et vältida pettuseid ja reeglite rikkumisi.
Rikkumise puhul kasutajakonto blokeeritakse.