+ Lisa oma töö      

Otsid ehitajat "Geodeesia, kartograafia" valdkonnast?

Parima pakkumise ja teostaja leidmiseks lisa oma töö.

Hange on lõppenud!

Võitjaks osutus kasutaja ID 75544

Geodeetilise alusplaani koostamine

ID 114887

767 vaatamist

Prindi

  • check Pakkumiste tegemine
    kuni 08.05.2025
  • check Võitja valik kuni
    15.05.2025
  • 3 Töö teostamine
    ja hinnang
Hanke lõpp: N, 8. mai, 2025
Maakond: Harjumaa
Linn: Kehra
Tööde lõpp: R, 16. mai, 2025
Ehitusmaterjalid: Töö tegija poolt
Soovin pakkumisi: Summa kogu projektile

Töö sisu

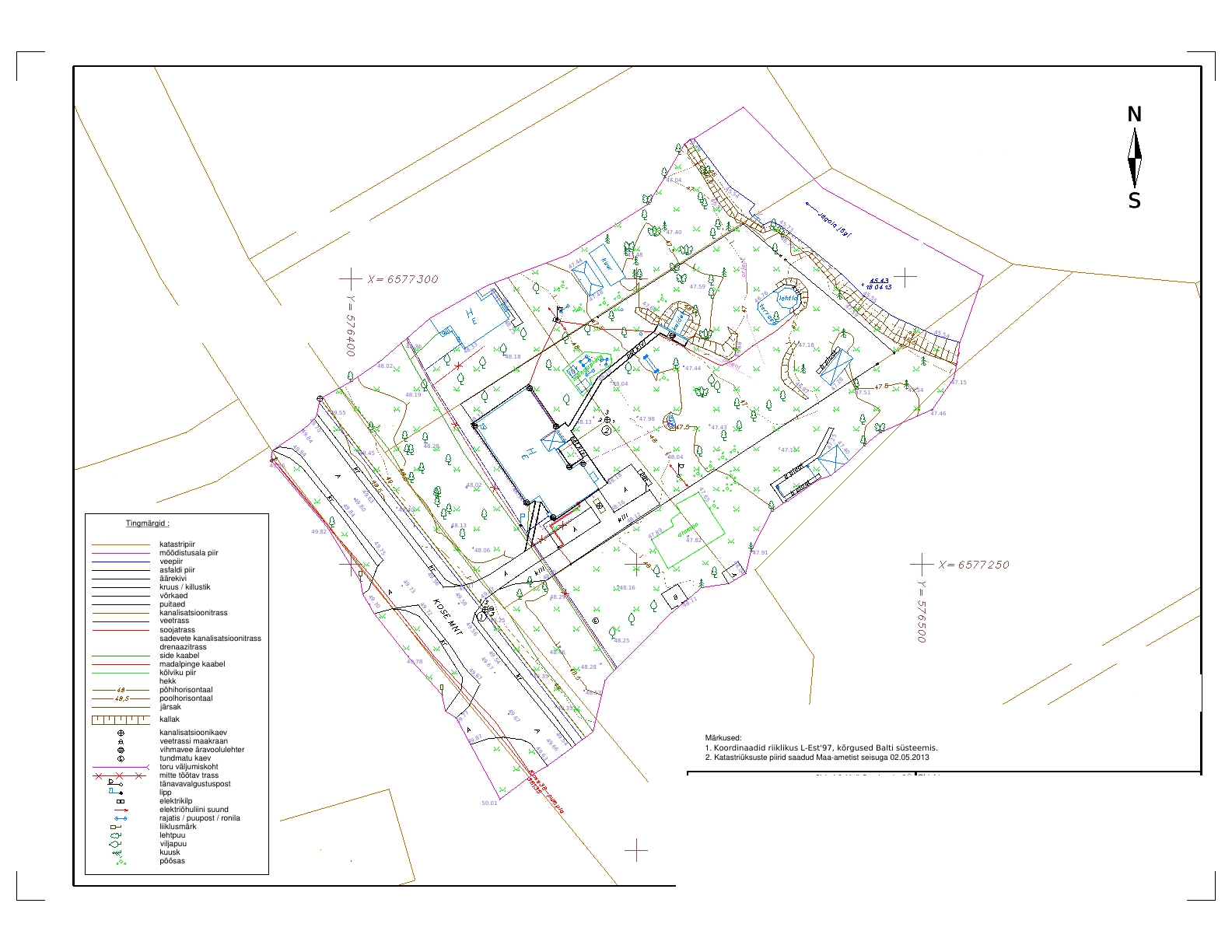
Geodeetilise alusplaani koostamine eramu rekonstrueerimisprojektile.

Pildid, video ja failid

Hanke korraldaja: eraisik ID86425

Pakkumised

Pakkumisi kokku: 2

Ettevõte Summa Käibemaks Lisatud Vestlus
Kasutaja ikoon ID75544
Pakkuja profiil Väike nool paremale
390€ Ei ole KMKR Ei ole KMKR 06.05.2025 Vestlus (4)
Kasutaja ikoon ID17674
Pakkuja profiil Väike nool paremale
475€ KM lisandub KM lisandub 06.05.2025 Vestlus (2)

Pakkumise kirjeldus:

Täiskomplektne geodeetiline uuring, mõõdistamine ja geoaluse koostamine vastavalt määrusele 34, koos võrguvaldajate kooskõlastustega ja omavalitsusele esitamisega, koos ümbritsevate aladega, sh külgnev tänav nagu nõutakse, kokku ca 7500 m2 ulatuses
Töö teostamine ca 2...2,5 nädala jooksul tellimusest.
Vajadusel erialane konsultatsioon.
Hi ... Rohkem

Küsimused hanke korraldajale

Hanke korraldajale ei ole veel küsimusi esitatud.

Lisa küsimus

Lisa küsimus

Minu pakkumine

Reeglid

Pakkumise kirjelduse väli on mõeldud pakkumise detailsemaks lahti kirjutamiseks. Pikema teksti mugavaks sisestamiseks klikkige kasti paremal ülaservas oleval ikoonil.
Pakkumist tehes on keelatud postitada enda kontaktandmeid (nimi, telefon, aadress jne). Me jälgime ja analüüsime pakkumisi, et vältida pettuseid ja reeglite rikkumisi.
Rikkumise puhul kasutajakonto blokeeritakse.

 

Teisi töid samas valdkonnas

Valdkonnas "Geodeesia, kartograafia" on 2 aktiivset tööd

Soovin tellida geodeetilist alusplaani (geoalust)

Asukoht: Hiiumaa, Paluküla
Aega jäänud: 3p 11h
Tehtud pakkumisi: 4

no-img Pilt puudub

Geodeetilise alusplaani koostamine

Asukoht: Pärnumaa, Raespa
Aega jäänud: 1p 11h
Tehtud pakkumisi: 1

Vanemad teated:

Vaata kõiki

Sellel veebilehel kasutatakse küpsiseid. Kasutamist jätkates nõustute küpsiste kasutamisega.

Sulge
 
Minu pakkumine

Reeglid

Pakkumise kirjelduse väli on mõeldud pakkumise detailsemaks lahti kirjutamiseks. Pikema teksti mugavaks sisestamiseks klikkige kasti paremal ülaservas oleval ikoonil.
Pakkumist tehes on keelatud postitada enda kontaktandmeid (nimi, telefon, aadress jne). Me jälgime ja analüüsime pakkumisi, et vältida pettuseid ja reeglite rikkumisi.
Rikkumise puhul kasutajakonto blokeeritakse.