+ Lisa oma töö      

Otsid ehitajat "Vundamenditööd" valdkonnast?

Parima pakkumise ja teostaja leidmiseks lisa oma töö.

Kuurile vundament

ID 114781

1371 vaatamist

Prindi

  • check Pakkumiste tegemine
    kuni 18.05.2025
  • check Võitja valik kuni
    25.05.2025
  • 3 Töö teostamine
    ja hinnang
Hanke lõpp: P, 18. mai, 2025
Maakond: Tartumaa
Muu asula: Lombi
Tööde lõpp: E, 02. juuni, 2025
Ehitusmaterjalid: Töö tegija poolt
Soovin pakkumisi: Summa kogu projektile

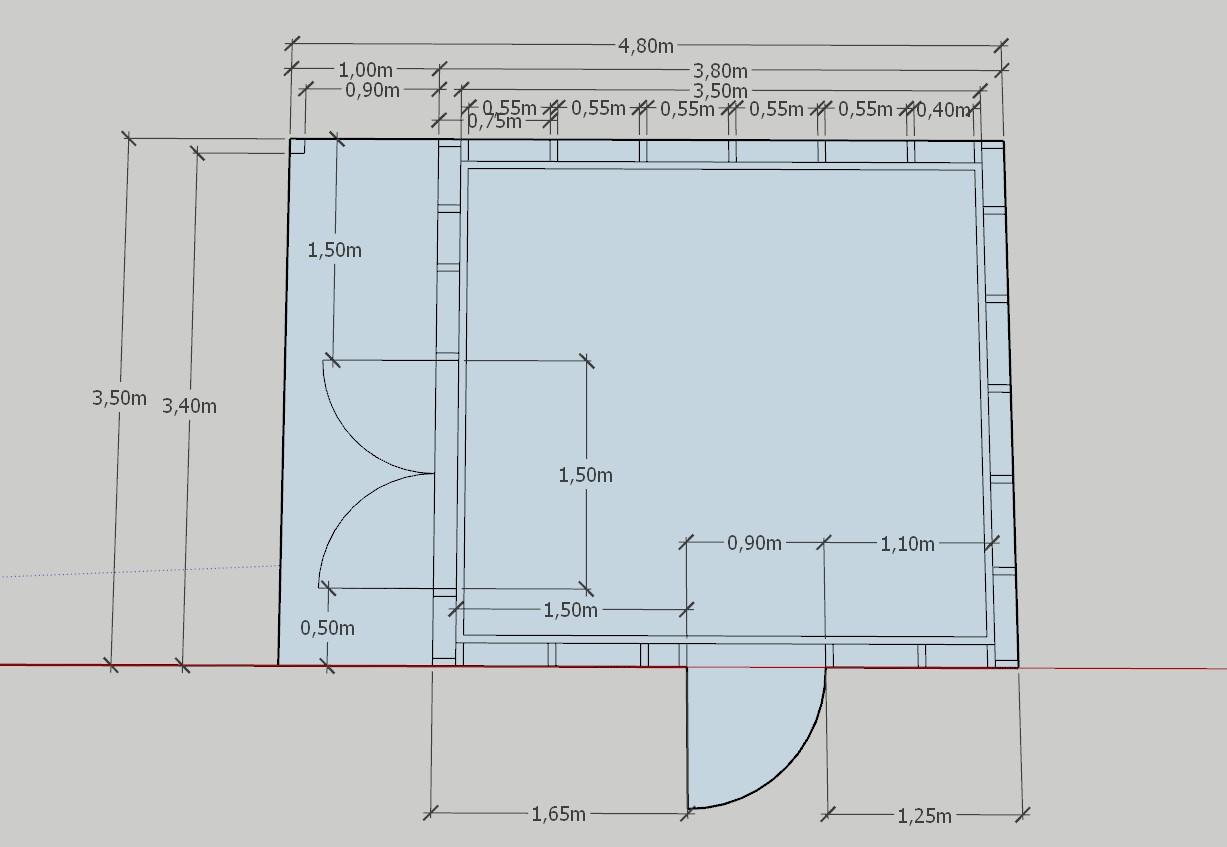
Töö sisu

Sooviks leida töötegijat kuuri vundamendi rajamisel.

Soovitused vundamendile, aga töötegija võib pakkuda enda poolset lahendust.
* pinnase ettevalmistamine/väljakaeve ( pinnas õrnalt kaldus naaberkrundi poole, väljakaeve ca 300-400mm )
* Väljakaeve pinnase saab jätta objektile ca 70 m kaugusele oleva tehismäe tasandamiseks
* killustikalus 150mm tihendada ( ntx fr4-16, aga töövõtja võib enda poolse lahenduse pakkuda)
* L-plokk V 300
* perimeetrisse 1m laiuselt horisontaal soojustus EPS 120
* valamine
* betoon 100mm ( C20/25) kiudbetoon

Pildid, video ja failid

Hanke korraldaja: ettevõte ID79671

Pakkumised

Pakkumisi kokku: 5

Ettevõte Summa Käibemaks Lisatud Vestlus
Kasutaja ikoon ID65773
Pakkuja profiil Väike nool paremale
2 850€ Sisaldab KM Sisaldab KM 04.05.2025 Vestlus (0)

Pakkumise kirjeldus:

Tere !
Meie pakkumine sisaldab :
L plokki,Eps 120 perimeeter,killustiku frakts 4-16
kile ,armeerimis võrk, 6mm #150 fiksaatrorid. Betooni koos transpordiga .C20/25
Mahamärkimise , väljakaeve ja pinnase ümber veoga.Betooni valu.

Kasutaja ikoon ID73089
Pakkuja profiil Väike nool paremale
3 600€ Ei ole KMKR Ei ole KMKR 04.05.2025 Vestlus (0)

Pakkumise kirjeldus:

Tere. Hinnapakkumine sisaldab: pinnase väljakaevamist, geotekstiili,killustiku fr 16/32, tihendamist, L-plokk peno ja eps120, betooni valamist

Kasutaja ikoon ID67766
Pakkuja profiil Väike nool paremale
4 500€ Ei ole KMKR Ei ole KMKR 17.05.2025 Vestlus (0)

Pakkumise kirjeldus:

Hind sisaldab plaatvundamendi ehitus töid koos kopa tööga ja hinna sees on kõike ehitusmaterjalide maksumus. Hind sisaldab ka hange.ee teenustasu. Parimat soovides

Kasutaja ikoon ID80709
Pakkuja profiil Väike nool paremale
4 200€ Ei ole KMKR Ei ole KMKR 18.05.2025 Vestlus (0)
Kasutaja ikoon ID22780
Pakkuja profiil Väike nool paremale
3 900€ Sisaldab KM Sisaldab KM 18.05.2025 Vestlus (0)

Pakkumise kirjeldus:

Pakkumine soovitud tööle ja materialile

Küsimused hanke korraldajale

Küsimus: private ID65773   04.05.2025 10:55
Tere !
Kas ligipääseb betooni auto pirniga või peab eemalt pumiga valama ? Mõjutab hinda.
Kas soovite kindlalt L plokki?Saab ja 100 mm paksuse saalungi teha soojustuse peale ,tuleb soodsam.
Kas teie hoone saan olema soojustatud ja küttega ?

Lugupidamisega!

Teavita reeglite rikkumisest

Korraldaja vastus: 04.05.2025 11:02

Tere,
Kuuri asukoht on parkla kõrval, ehk pirniga pääseb täpselt otse valama.
Ei pea olema L plokk, mõtet selles et vundamendi vertikaal oleks soojustatud.
Hoone tuleb puitkarkass, 150mm vill soojustusega,
Talvel hoiab min +5 kraadi elektriradikas.
Lisan veel, et hoone vundamendile tuleb ainult 1 läbiviik 50mm kõri, elektri jaoks.

Teavita reeglite rikkumisest

Küsimus: private ID36077   05.05.2025 07:10
Tere. Meie oleme kuuri vundamente ehitanud 2x6 tee paatidega ja plaatide alla paigaldanud XPS paadid.
Kuuri vundamendiks piisab kolmest betoon plaadist ja 36m2 XPS plaatist. Selline vundament ei vaja maapinna väljakeavamist ega mullatõid. See on kiire ja kohe kasutatav , kuuri karkassi saab kinnitada ja püstitada betoonplaatidele. Selliseid plaate saab osta Kuldsest börsist .

Teavita reeglite rikkumisest

Korraldaja vastus: 07.05.2025 08:09

Tere,
Soov oleks Lplokist vundament ikkagi.

Aitähh pakkumast. Jätan meelde kui kuskile objektile selline lahendus sobiks.

Teavita reeglite rikkumisest

Lisa küsimus

Lisa küsimus

Minu pakkumine

Reeglid

Pakkumise kirjelduse väli on mõeldud pakkumise detailsemaks lahti kirjutamiseks. Pikema teksti mugavaks sisestamiseks klikkige kasti paremal ülaservas oleval ikoonil.
Pakkumist tehes on keelatud postitada enda kontaktandmeid (nimi, telefon, aadress jne). Me jälgime ja analüüsime pakkumisi, et vältida pettuseid ja reeglite rikkumisi.
Rikkumise puhul kasutajakonto blokeeritakse.

 

Vanemad teated:

Vaata kõiki

Sellel veebilehel kasutatakse küpsiseid. Kasutamist jätkates nõustute küpsiste kasutamisega.

Sulge
 
Minu pakkumine

Reeglid

Pakkumise kirjelduse väli on mõeldud pakkumise detailsemaks lahti kirjutamiseks. Pikema teksti mugavaks sisestamiseks klikkige kasti paremal ülaservas oleval ikoonil.
Pakkumist tehes on keelatud postitada enda kontaktandmeid (nimi, telefon, aadress jne). Me jälgime ja analüüsime pakkumisi, et vältida pettuseid ja reeglite rikkumisi.
Rikkumise puhul kasutajakonto blokeeritakse.