+ Lisa oma töö      

Otsid ehitajat "Kanalisatsioonitööd" valdkonnast?

Parima pakkumise ja teostaja leidmiseks lisa oma töö.

Kanalisatsiooni, kütte, veevarustuse paigaldus.

ID 114591

810 vaatamist

Prindi

  • check Pakkumiste tegemine
    kuni 03.05.2025
  • check Võitja valik kuni
    10.05.2025
  • 3 Töö teostamine
    ja hinnang
Hanke lõpp: L, 3. mai, 2025
Maakond: Tartumaa
Muu asula: Kambja
Tööde lõpp: Kokkuleppel
Ehitusmaterjalid: Töö tegija poolt
Soovin pakkumisi: Summa kogu projektile

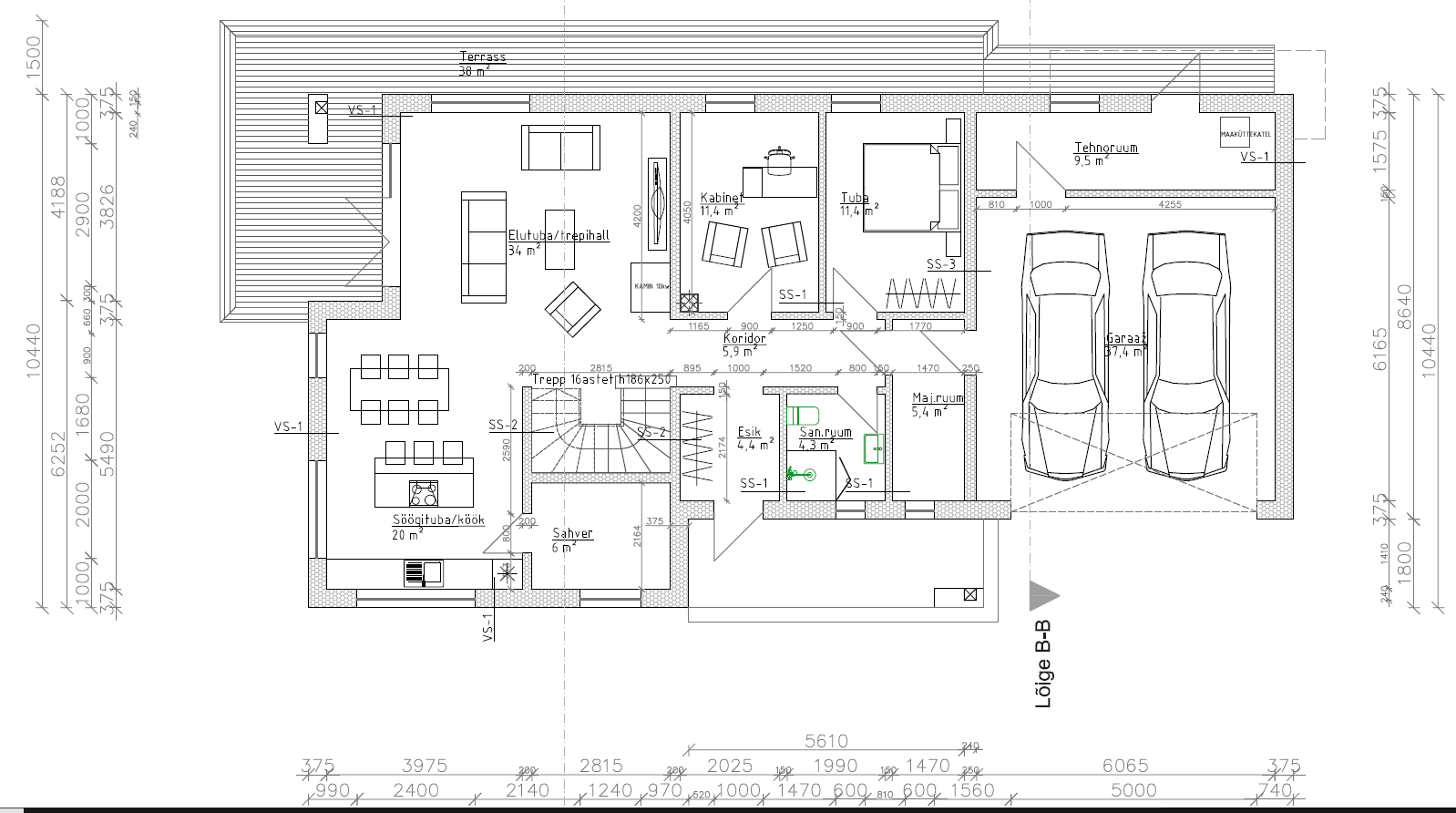
Töö sisu

1. etapp. Kanalisatsioonitoru paigaldamine septikust majja (20jm + auk läbiv betoonvundamendi paksus 375mm) ja majas ka. (alusele liiv)
2. etapp. Maja veevarustus.
3. etapp. Põrandaküttekontuuride ja kollektorite paigaldamine. (1. korrus 160m2 2.korrus 110m2 )

Pildid, video ja failid

Hanke korraldaja: ettevõte ID73796

Pakkumised

Pakkumisi kokku: 0

Küsimused hanke korraldajale

Küsimus: private ID72426   01.05.2025 07:15
Tere!
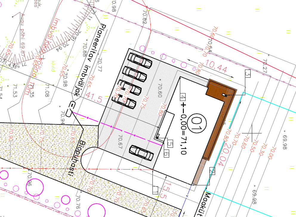
1. Kas biopuhasti on paigas ja selle ette paigaldatud kontrollkaev ? Kuna trass keerab 90 kraadi puhasti suhtes.
2. Kaugel on veevarustuse liitumispunkt/kaev? Kas vaja ka veesõlm ehitada või ainult toru vedamine ?
3. Kas mõlema korruse kontuurid betooni või teine korrus pk plaadile/kipsivalu ?

Tervitades

Teavita reeglite rikkumisest

Korraldaja vastus: 01.05.2025 14:59

Tere!
1. Kas biopuhasti on paigas?
Paigaldatud tavaline septik
ja selle ette paigaldatud kontrollkaev ?
on olemas, aga ei ole paigaldatud

2. Kaugel on veevarustuse liitumispunkt/kaev?
Juba majas, kus peaks olema maaküttekatel
Kas vaja ka veesõlm ehitada või ainult toru vedamine ?
Ainult toru vedamine

3. Kas mõlema korruse kontuurid betooni või teine korrus pk plaadile/kipsivalu ?
Praegu on r/b vahelaed, edasi teeme isolatsioon 30mm ja 80mm betoonist tasanduskiht
Esimesest teise korruseni on šahtid.

Teavita reeglite rikkumisest

Lisa küsimus

Lisa küsimus

Minu pakkumine

Reeglid

Pakkumise kirjelduse väli on mõeldud pakkumise detailsemaks lahti kirjutamiseks. Pikema teksti mugavaks sisestamiseks klikkige kasti paremal ülaservas oleval ikoonil.
Pakkumist tehes on keelatud postitada enda kontaktandmeid (nimi, telefon, aadress jne). Me jälgime ja analüüsime pakkumisi, et vältida pettuseid ja reeglite rikkumisi.
Rikkumise puhul kasutajakonto blokeeritakse.

 

Teisi töid samas valdkonnas

Valdkonnas "Kanalisatsioonitööd" on 2 aktiivset tööd

Kaevetööd, 8 m³ kogumismahuti paigaldus ja trassid - Juminda küla

Asukoht: Harjumaa, Juminda
Aega jäänud: 6p 18h
Tehtud pakkumisi: 0

no-img Pilt puudub

Veevarustuse- ja kanalisatsiooniinsener, tase 6 MTR registreering

Asukoht: Pärnumaa, Pärnu
Aega jäänud: 12p 18h
Tehtud pakkumisi: 0

Vanemad teated:

Vaata kõiki

Sellel veebilehel kasutatakse küpsiseid. Kasutamist jätkates nõustute küpsiste kasutamisega.

Sulge
 
Minu pakkumine

Reeglid

Pakkumise kirjelduse väli on mõeldud pakkumise detailsemaks lahti kirjutamiseks. Pikema teksti mugavaks sisestamiseks klikkige kasti paremal ülaservas oleval ikoonil.
Pakkumist tehes on keelatud postitada enda kontaktandmeid (nimi, telefon, aadress jne). Me jälgime ja analüüsime pakkumisi, et vältida pettuseid ja reeglite rikkumisi.
Rikkumise puhul kasutajakonto blokeeritakse.