+ Lisa oma töö      

Otsid ehitajat "Siseviimistlustööd" valdkonnast?

Parima pakkumise ja teostaja leidmiseks lisa oma töö.

Eramu sisetööd

ID 114563

1004 vaatamist

Prindi

  • check Pakkumiste tegemine
    kuni 14.05.2025
  • check Võitja valik kuni
    21.05.2025
  • 3 Töö teostamine
    ja hinnang
Hanke lõpp: K, 14. mai, 2025
Maakond: Jõgevamaa
Linn: Jõgeva
Tööde lõpp: Kokkuleppel
Ehitusmaterjalid: Töö tellija poolt
Soovin pakkumisi: Summa kogu projektile

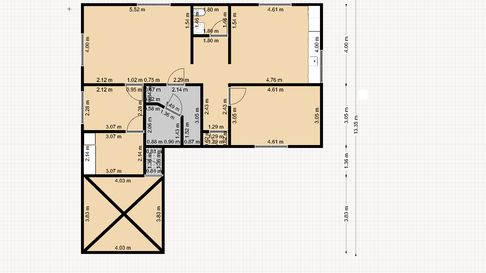
Töö sisu

Sooviks hinda sisetöödele ja kipslagedel.

Pildid, video ja failid

Hanke korraldaja: eraisik ID82958

Pakkumised

Pakkumisi kokku: 2

Ettevõte Summa Käibemaks Lisatud Vestlus
Kasutaja ikoon ID87136
Pakkuja profiil Väike nool paremale
10 200€ Ei ole KMKR Ei ole KMKR 07.05.2025 Vestlus (0)

Pakkumise kirjeldus:

Summa võib olla odavam või kallim, kuna täpseid ruutmeetreid ei tea, aga tegelikult saame mõõtu võtta ja summa välja arvutada. Arvutused tehakse põrandapinna arvutamise kogemuse põhjal.

Kasutaja ikoon ID50772
Pakkuja profiil Väike nool paremale
4 500€ KM lisandub KM lisandub 08.05.2025 Vestlus (0)

Pakkumise kirjeldus:

See on hind ilma kohal käimata ja põranda pinnast tuöetatud umbkaudsete mõõtudega

Küsimused hanke korraldajale

Küsimus: private ID81744   30.04.2025 18:59
Mída täpsemalt soovite teha?

Teavita reeglite rikkumisest

Korraldaja vastus: 30.04.2025 20:42

Tere, Vaja paigalda vee kollektorid, segisti kannad, krohvida torustikud kinni. Viimistleda seinad krohvi , pahtli, värvi ja osaliselt tapeetida, laed kipsi alla ja viimistleda. Põranda pind on 80m2 . Seina m2 ei oska öelda.

Teavita reeglite rikkumisest

Küsimus: private ID89866   30.04.2025 19:29
Palju ruute kõik kokku. Seinad laed. Seinad võrgu alla

Teavita reeglite rikkumisest

Korraldaja vastus: 30.04.2025 20:43

Põranda pind 80m2, Seina m2 ei tea.

Teavita reeglite rikkumisest

Küsimus: private ID72794   30.04.2025 19:36
Tere,

Mida peate silmas sisetööde all. Palun kirjutage tööde nimekiri, on lihtsam pakkumist koostada.


Parimat!

Teavita reeglite rikkumisest

Korraldaja vastus: 30.04.2025 20:47

Tere,
Vaja paigalda vee kollektorid, segisti kannad, krohvida torustikud kinni. Viimistleda seinad krohvi , pahtli, värvi ja osaliselt tapeetida.
Laed kipsi alla ja viimistleda.
Põranda pind on 80m2 . Seina m2 ei oska öelda.
Valmis ehitada wc ja vannituba.

Teavita reeglite rikkumisest

Küsimus: private ID87136   02.05.2025 10:59
Tere.
Kas soovite kindlasti alustada? Sest siin on palju inimesi, kes on lihtsalt hinnast huvitatud. Võin kohe teie heaks tööle asuda. Mul on juunini aega. Hindade osas saame läbi rääkida.

Teavita reeglite rikkumisest

Korraldaja vastus: 02.05.2025 12:07

Palun teha pakkumine, et saaksin teiega kontakti.

Teavita reeglite rikkumisest

Küsimus: private ID50772   08.05.2025 17:23
Kuna oleks võimalik tulla kohale sisepindasid üle mõõtma ,et pakkumist teha??

Teavita reeglite rikkumisest

Korraldaja vastus: 08.05.2025 17:33

Tere,
Palun tehke mingi pakkumine siis saan teiega täpsemalt kokku leppida aja.

Teavita reeglite rikkumisest

Lisa küsimus

Lisa küsimus

Minu pakkumine

Reeglid

Pakkumise kirjelduse väli on mõeldud pakkumise detailsemaks lahti kirjutamiseks. Pikema teksti mugavaks sisestamiseks klikkige kasti paremal ülaservas oleval ikoonil.
Pakkumist tehes on keelatud postitada enda kontaktandmeid (nimi, telefon, aadress jne). Me jälgime ja analüüsime pakkumisi, et vältida pettuseid ja reeglite rikkumisi.
Rikkumise puhul kasutajakonto blokeeritakse.

 

Teisi töid samas valdkonnas

Valdkonnas "Siseviimistlustööd" on 26 aktiivset tööd

Korteri remont

Asukoht: Harjumaa, Muraste
Aega jäänud: 2p 9h
Tehtud pakkumisi: 15

no-img Pilt puudub

Laminaatparketi paigaldus

Asukoht: Harjumaa, Tallinn
Aega jäänud: 4p 9h
Tehtud pakkumisi: 8

Vanemad teated:

Vaata kõiki

Sellel veebilehel kasutatakse küpsiseid. Kasutamist jätkates nõustute küpsiste kasutamisega.

Sulge
 
Minu pakkumine

Reeglid

Pakkumise kirjelduse väli on mõeldud pakkumise detailsemaks lahti kirjutamiseks. Pikema teksti mugavaks sisestamiseks klikkige kasti paremal ülaservas oleval ikoonil.
Pakkumist tehes on keelatud postitada enda kontaktandmeid (nimi, telefon, aadress jne). Me jälgime ja analüüsime pakkumisi, et vältida pettuseid ja reeglite rikkumisi.
Rikkumise puhul kasutajakonto blokeeritakse.