+ Lisa oma töö      

Otsid ehitajat "Omanikujärelevalve" valdkonnast?

Parima pakkumise ja teostaja leidmiseks lisa oma töö.

Omanikujärelevalve

ID 114546

1025 vaatamist

Prindi

  • check Pakkumiste tegemine
    kuni 14.05.2025
  • check Võitja valik kuni
    21.05.2025
  • 3 Töö teostamine
    ja hinnang
Hanke lõpp: K, 14. mai, 2025
Maakond: Harjumaa
Linn: Saue
Tööde lõpp: Kokkuleppel
Ehitusmaterjalid: Töö tellija poolt
Soovin pakkumisi: Summa kogu projektile

Töö sisu

Tere

Otsime omanikujärelevalve (OJV) spetsialisti kõrvalhoone ümberehitusele.
Spetsialistil peab olema ehitusinseneri kutse tase 6 või 7, registreering MTR-is (ehituse omanikujärelevalve pädevus) ning vastav töökogemus.

SISEND ehitajale, OJV-le tutvumiseks:
-----------------
Kõrvalhoone ehitusalune pindala ületab VV poolt aktsepteeritud piirmäära, mis on 60m2.
Seoses sellega tuleb vahetada 30 mm tuuletõkkeplaadid tuuletõkkekanga vastu ning ühel küljel saagida prussid kitsamaks.

Eemaldada tuleb:
1. Välisvooder ja kõik voodrile kinnitatud osad.
2. Roovitus.
3. Tuuletõkkeplaadid.

4. Sellel maja küljel, kus puuduvad avad, tuleb kandeprussid (10 tk) teha 2 cm kitsamaks, näiteks ketassaega lõigates. Praegused prussid on mõõtmetega 5 × 15 cm; pärast lõikamist jäävad need mõõtmetega 5 × 13 cm. Nurkades on prussid pööratud, seega on saagimispind mitte 5cm, vaid 15cm (vt pilti).

5. Tuuletõkkeplaatide asemele tuleb paigaldada tuuletõkkekangas (nt Tyvek).
6. Paigaldada kõik tagasi, ning vajadusel üle värvida.

Säilitada tuleks kõik, mis võimalik, kuid on arusaadav, et osa voodrilaudadest ei õnnestu päästa.

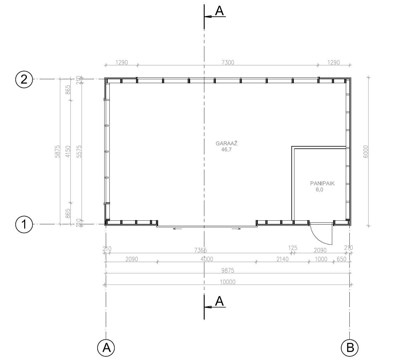
Hoone mõõtmed: 10 × 6 m
Kõrgus põrandast laeni: 2,7 m
Kõrgus põrandast katuseharjani: 4,7 m
Kokku tuleb demonteerida umbes 70 m² ulatuses voodrilaudu.
-----------------------

Kui kõrvalhoone on valmis, jätkame järgmiste ehitiste ja elamu ehitusega – seega on eesmärgiks pikaajaline koostöö.
Täname

Pildid, video ja failid

Hanke korraldaja: eraisik ID88952

Pakkumised

Pakkumisi kokku: 6

Ettevõte Summa Käibemaks Lisatud Vestlus
Kasutaja ikoon ID59154
Pakkuja profiil Väike nool paremale
450€ KM lisandub KM lisandub 01.05.2025 Vestlus (0)

Pakkumise kirjeldus:

Kuupõhiline

Kasutaja ikoon ID86907
Pakkuja profiil Väike nool paremale
450€ KM lisandub KM lisandub 01.05.2025 Vestlus (0)

Pakkumise kirjeldus:

Diplomeeritud ehitusinsener tase 7 ( omaniku järelevalve, projekti ekspertiis, ehitise audit. MTRi registreering olemas, töökogemus omanikujärelevalvena 9 aastat.

Kasutaja ikoon ID76091
Pakkuja profiil Väike nool paremale
450€ Ei ole KMKR Ei ole KMKR 03.05.2025 Vestlus (0)

Pakkumise kirjeldus:

Pakutud on ühe kuu teenuse hind. Omame nii üldehituse kui ka eritööde (vesi, kanal, küte, ventilatsioon, jahutus ja elektritööde) kutseid ja pädevusi.

Kasutaja ikoon ID58624
Pakkuja profiil Väike nool paremale
878€ Ei ole KMKR Ei ole KMKR 04.05.2025 Vestlus (0)
Kasutaja ikoon ID36326
Pakkuja profiil Väike nool paremale
1 000€ KM lisandub KM lisandub 06.05.2025 Vestlus (0)

Pakkumise kirjeldus:

Oman kogemust ja kõiki vajaminevaid kutseid. Elan samas vallas.

Kasutaja ikoon ID68637
Pakkuja profiil Väike nool paremale
600€ KM lisandub KM lisandub 14.05.2025 Vestlus (0)

Pakkumise kirjeldus:

Pakutud on ühe kuu OJV teenuse maksumus.

Küsimused hanke korraldajale

Hanke korraldajale ei ole veel küsimusi esitatud.

Lisa küsimus

Lisa küsimus

Minu pakkumine

Reeglid

Pakkumise kirjelduse väli on mõeldud pakkumise detailsemaks lahti kirjutamiseks. Pikema teksti mugavaks sisestamiseks klikkige kasti paremal ülaservas oleval ikoonil.
Pakkumist tehes on keelatud postitada enda kontaktandmeid (nimi, telefon, aadress jne). Me jälgime ja analüüsime pakkumisi, et vältida pettuseid ja reeglite rikkumisi.
Rikkumise puhul kasutajakonto blokeeritakse.

 

Teisi töid samas valdkonnas

Valdkonnas "Omanikujärelevalve" on 2 aktiivset tööd

no-img Pilt puudub

Korterelamu lamekatuse rekonstrueerimise omanikujärelevalve

Asukoht: Järvamaa, Järva-Jaani
Aega jäänud: 2p
Tehtud pakkumisi: 2

Hoone osa rekonstrueerimine

Asukoht: Harjumaa, Tallinn
Aega jäänud: 37 min
Tehtud pakkumisi: 1

Vanemad teated:

Vaata kõiki

Sellel veebilehel kasutatakse küpsiseid. Kasutamist jätkates nõustute küpsiste kasutamisega.

Sulge
 
Minu pakkumine

Reeglid

Pakkumise kirjelduse väli on mõeldud pakkumise detailsemaks lahti kirjutamiseks. Pikema teksti mugavaks sisestamiseks klikkige kasti paremal ülaservas oleval ikoonil.
Pakkumist tehes on keelatud postitada enda kontaktandmeid (nimi, telefon, aadress jne). Me jälgime ja analüüsime pakkumisi, et vältida pettuseid ja reeglite rikkumisi.
Rikkumise puhul kasutajakonto blokeeritakse.