+ Lisa oma töö      

Otsid ehitajat "Ventilatsioonitööd" valdkonnast?

Parima pakkumise ja teostaja leidmiseks lisa oma töö.

Hange on lõppenud!

Võitjaks osutus kasutaja ID 87046

Ventilatsiooni projekti koostamine

ID 114539

914 vaatamist

Prindi

  • check Pakkumiste tegemine
    kuni 03.05.2025
  • check Võitja valik kuni
    10.05.2025
  • 3 Töö teostamine
    ja hinnang
Hanke lõpp: L, 3. mai, 2025
Maakond: Järvamaa
Linn: Paide
Tööde lõpp: Kokkuleppel
Ehitusmaterjalid: Töö tellija poolt
Soovin pakkumisi: Summa kogu projektile

Töö sisu

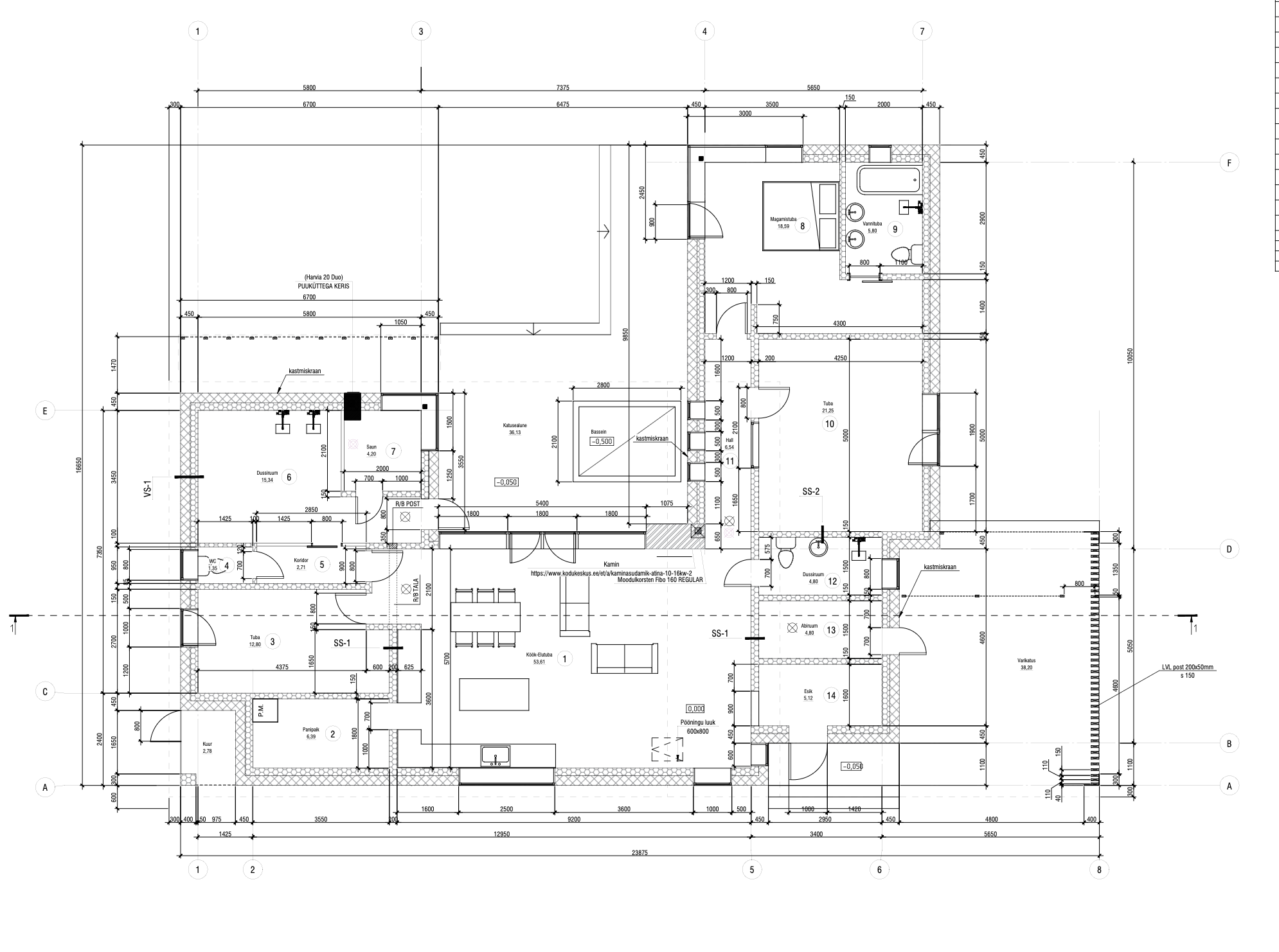
Otsin projekteerijat koostada Ventilatsiooni projekt eramajale.
Eramu on ühekorruseline 163m2. A classi maja.

Planeeritud on tehnoruumi maakütte pump ja soojustagastusega ventilatsioon.

Hoonel tuleb põrandaküte, Elutoas kaminahi. Eraldi ka saunaruum välisküttega.

Pildid, video ja failid

Hanke korraldaja: ettevõte ID89847

Pakkumised

Pakkumisi kokku: 3

Ettevõte Summa Käibemaks Lisatud Vestlus
Kasutaja ikoon ID86685
Pakkuja profiil Väike nool paremale
700€ Ei ole KMKR Ei ole KMKR 30.04.2025 Vestlus (0)

Pakkumise kirjeldus:

Ventilatsiooniprojekt vastavalt tellija soovile ja normidele. Projekteerib pädevusega insener ja kogemus paljude erinevate objektidega. Tööga saab alustada koheselt.

Kasutaja ikoon ID63115
Pakkuja profiil Väike nool paremale
700€ KM lisandub KM lisandub 01.05.2025 Vestlus (0)

Pakkumise kirjeldus:

Tere

Hinnapakkumine sisaldab ventilatsioonisüsteemi põhiprojekti.
Ettemaksu ei soovi. Vastutava isiku allkiri on hinna sees.
Ventilatsiooni pakkumine sisaldab õhuhulkade arvutamist, ventilatsiooni süsteemi projekteerimist, ventilatsiooni seadme valimist, magistraalide jooniseid, põhiseadmete mahuloetelu ja seletuskirja. (vastavalt EVS:906 2018).

Kasutaja ikoon ID87046
Pakkuja profiil Väike nool paremale
400€ Sisaldab KM Sisaldab KM 03.05.2025 Vestlus (8)

Pakkumise kirjeldus:

Tere,
Projekt põhiprojekti mahus.
*joonised
*spetsifikatsioon
*seletuskiri
*nõustamine
*Süsteemi maksumuse pakkumus
*Kinnitatud tase 7 poolt

Küsimused hanke korraldajale

Hanke korraldajale ei ole veel küsimusi esitatud.

Lisa küsimus

Lisa küsimus

Minu pakkumine

Reeglid

Pakkumise kirjelduse väli on mõeldud pakkumise detailsemaks lahti kirjutamiseks. Pikema teksti mugavaks sisestamiseks klikkige kasti paremal ülaservas oleval ikoonil.
Pakkumist tehes on keelatud postitada enda kontaktandmeid (nimi, telefon, aadress jne). Me jälgime ja analüüsime pakkumisi, et vältida pettuseid ja reeglite rikkumisi.
Rikkumise puhul kasutajakonto blokeeritakse.

 

Teisi töid samas valdkonnas

Valdkonnas "Ventilatsioonitööd" on 3 aktiivset tööd

Eramaja ventilatsioonitööd

Asukoht: Tartumaa, Soinaste
Aega jäänud: 6p 1h
Tehtud pakkumisi: 1

no-img Pilt puudub

Ventilatsiooni paigaldamine

Asukoht: Tartumaa, Tartu
Aega jäänud: 3p 1h
Tehtud pakkumisi: 0

Vanemad teated:

Vaata kõiki

Sellel veebilehel kasutatakse küpsiseid. Kasutamist jätkates nõustute küpsiste kasutamisega.

Sulge
 
Minu pakkumine

Reeglid

Pakkumise kirjelduse väli on mõeldud pakkumise detailsemaks lahti kirjutamiseks. Pikema teksti mugavaks sisestamiseks klikkige kasti paremal ülaservas oleval ikoonil.
Pakkumist tehes on keelatud postitada enda kontaktandmeid (nimi, telefon, aadress jne). Me jälgime ja analüüsime pakkumisi, et vältida pettuseid ja reeglite rikkumisi.
Rikkumise puhul kasutajakonto blokeeritakse.