+ Lisa oma töö      

Otsid ehitajat "Üldehitus" valdkonnast?

Parima pakkumise ja teostaja leidmiseks lisa oma töö.

Kõrvalhoone tuuletõkke asendamine ja muud tööd

ID 114177

1457 vaatamist

Prindi

  • check Pakkumiste tegemine
    kuni 24.05.2025
  • check Võitja valik kuni
    31.05.2025
  • 3 Töö teostamine
    ja hinnang
Hanke lõpp: L, 24. mai, 2025
Maakond: Harjumaa
Linn: Saue
Tööde lõpp: Kokkuleppel
Ehitusmaterjalid: Töö tegija poolt
Soovin pakkumisi: Summa kogu projektile

Töö sisu

Tere,

Kõrvalhoone ehitusalune pindala ületab VV poolt aktsepteeritud piirmäära, mis on 60m2.
Seoses sellega tuleb vahetada 30 mm tuuletõkkeplaadid tuuletõkkekanga vastu ning ühel küljel saagida prussid kitsamaks.

Eemaldada tuleb:
1. Välisvooder ja kõik voodrile kinnitatud osad.
2. Roovitus.
3. Tuuletõkkeplaadid.

4. Sellel maja küljel, kus puuduvad avad, tuleb kandeprussid (10 tk) teha 2 cm kitsamaks, näiteks ketassaega lõigates. Praegused prussid on mõõtmetega 5 × 15 cm; pärast lõikamist jäävad need mõõtmetega 5 × 13 cm. Nurkades on prussid pööratud, seega on saagimispind mitte 5cm, vaid 15cm (vt pilti).

5. Tuuletõkkeplaatide asemele tuleb paigaldada tuuletõkkekangas (nt Tyvek).
6. Paigaldada kõik tagasi, ning vajadusel üle värvida.

Säilitada tuleks kõik, mis võimalik, kuid on arusaadav, et osa voodrilaudadest ei õnnestu päästa.

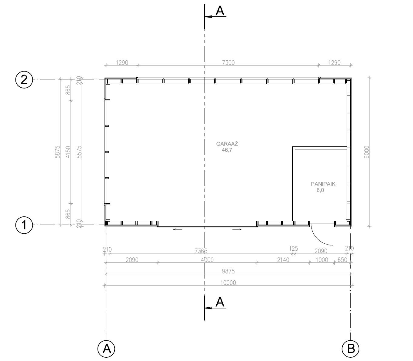
Hoone mõõtmed: 10 × 6 m
Kõrgus põrandast laeni: 2,7 m
Kõrgus põrandast katuseharjani: 4,7 m
Kokku tuleb demonteerida umbes 70 m² ulatuses voodrilaudu.

Objektil on palju tööd, seega pärast edukat ja mõistliku hinnaga garaaži korrastamist saame töödega edasi liikuda.

Tänan!

Pildid, video ja failid

Hanke korraldaja: eraisik ID88952

Pakkumised

Pakkumisi kokku: 2

Ettevõte Summa Käibemaks Lisatud Vestlus
Kasutaja ikoon ID65365
Pakkuja profiil Väike nool paremale
4 700€ Ei ole KMKR Ei ole KMKR 24.04.2025 Vestlus (0)
Kasutaja ikoon ID89838
Pakkuja profiil Väike nool paremale
5 320€ KM lisandub KM lisandub 24.05.2025 Vestlus (0)

Pakkumise kirjeldus:

Tere
Meie poolne esialgne Pakkumine vastavalt hanke sisus välja toodud informatsioonile.
Materjal tegija poolt. Va voodrilaud hetkel teadmata palju vaja läheb, juhul kui on kammnaeltega kinni pandud nagu peab siis tervelt neid laudu sealt kahjuks kätte väga ei saa.
Ennem võitja välja kuulutamist pannakse paika tööde teostamise aeg ning lepitakse ... Rohkem

Küsimused hanke korraldajale

Küsimus: private ID65365   24.05.2025 12:43
Tere
Loobun pakkumisest,kuna pean pakkumise üle vaatama.

Teavita reeglite rikkumisest

Korraldaja vastus:
Hanke korraldaja ei ole küsimusele veel vastanud

Lisa küsimus

Lisa küsimus

Minu pakkumine

Reeglid

Pakkumise kirjelduse väli on mõeldud pakkumise detailsemaks lahti kirjutamiseks. Pikema teksti mugavaks sisestamiseks klikkige kasti paremal ülaservas oleval ikoonil.
Pakkumist tehes on keelatud postitada enda kontaktandmeid (nimi, telefon, aadress jne). Me jälgime ja analüüsime pakkumisi, et vältida pettuseid ja reeglite rikkumisi.
Rikkumise puhul kasutajakonto blokeeritakse.

 

Teisi töid samas valdkonnas

Valdkonnas "Üldehitus" on 27 aktiivset tööd

Terassi õlitamine, 13,7 ruutu

Asukoht: Harjumaa, Saue
Aega jäänud: 5p 12h
Tehtud pakkumisi: 5

Vanemad teated:

Vaata kõiki

Sellel veebilehel kasutatakse küpsiseid. Kasutamist jätkates nõustute küpsiste kasutamisega.

Sulge
 
Minu pakkumine

Reeglid

Pakkumise kirjelduse väli on mõeldud pakkumise detailsemaks lahti kirjutamiseks. Pikema teksti mugavaks sisestamiseks klikkige kasti paremal ülaservas oleval ikoonil.
Pakkumist tehes on keelatud postitada enda kontaktandmeid (nimi, telefon, aadress jne). Me jälgime ja analüüsime pakkumisi, et vältida pettuseid ja reeglite rikkumisi.
Rikkumise puhul kasutajakonto blokeeritakse.