+ Lisa oma töö      

Otsid ehitajat "Ventilatsioonitööd" valdkonnast?

Parima pakkumise ja teostaja leidmiseks lisa oma töö.

Eramaja ventilatsioonitööd

ID 113538

1071 vaatamist

Prindi

  • check Pakkumiste tegemine
    kuni 28.04.2025
  • check Võitja valik kuni
    05.05.2025
  • 3 Töö teostamine
    ja hinnang
Hanke lõpp: E, 28. aprill, 2025
Maakond: Tartumaa
Tööde lõpp: Kokkuleppel
Ehitusmaterjalid: Töö tegija poolt
Soovin pakkumisi: Summa kogu projektile

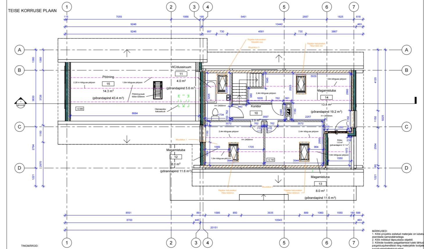
Töö sisu

Palun hinnapakkumist eramajale soojus- ja niiskustagastusega sundventilatsiooni rajamiseks (ventilatsiooniprojekt + materjalid + paigaldamine). Eramu on ehitusjärgus (vahelaed on lahtised, teine korrus väljaehitamata). Maja suletud netopind 147.6m2, korruste arv 2. Olemas on mõõdistusprojekti järgi teostatud muudatusprojekt (eelprojekti staadiumis).
- Tsentraalse ventilatsiooni seadeldise asukohaks saaks esimese korruse tehnoruum (projektil ruum nr 9)
- Saun on elektrikerisega
- Kööki korstna kõrvale tuleb puuküttega pliit

Vastan meeleldi lisaküsimustele!

Pildid, video ja failid

Hanke korraldaja: eraisik ID65534

Pakkumised

Pakkumisi kokku: 1

Ettevõte Summa Käibemaks Lisatud Vestlus
Kasutaja ikoon ID72372
Pakkuja profiil Väike nool paremale
7 300€ KM lisandub KM lisandub 22.04.2025 Vestlus (0)

Pakkumise kirjeldus:

Hinnapakkumine
Agregaat Flexit Nordic S4 2106.-
Seadme pult 200.-
Torud,põlved,mürasummutid,plafoonid,kandurid,liitmikud,isolatsiooni materjal,saunakanal,välirestid,reguleerklapid. 2600.-
Torustiku ehitus,isoleerimine,seadme paigaldus ja ühendus. Lhtsamate Avade freesimine(kips,osb,vineer). 2400.- (võimalik ilma km )
Pakkumine ei sisalda projekti. ... Rohkem

Küsimused hanke korraldajale

Hanke korraldajale ei ole veel küsimusi esitatud.

Lisa küsimus

Lisa küsimus

Minu pakkumine

Reeglid

Pakkumise kirjelduse väli on mõeldud pakkumise detailsemaks lahti kirjutamiseks. Pikema teksti mugavaks sisestamiseks klikkige kasti paremal ülaservas oleval ikoonil.
Pakkumist tehes on keelatud postitada enda kontaktandmeid (nimi, telefon, aadress jne). Me jälgime ja analüüsime pakkumisi, et vältida pettuseid ja reeglite rikkumisi.
Rikkumise puhul kasutajakonto blokeeritakse.

 

Vanemad teated:

Vaata kõiki

Sellel veebilehel kasutatakse küpsiseid. Kasutamist jätkates nõustute küpsiste kasutamisega.

Sulge
 
Minu pakkumine

Reeglid

Pakkumise kirjelduse väli on mõeldud pakkumise detailsemaks lahti kirjutamiseks. Pikema teksti mugavaks sisestamiseks klikkige kasti paremal ülaservas oleval ikoonil.
Pakkumist tehes on keelatud postitada enda kontaktandmeid (nimi, telefon, aadress jne). Me jälgime ja analüüsime pakkumisi, et vältida pettuseid ja reeglite rikkumisi.
Rikkumise puhul kasutajakonto blokeeritakse.