+ Lisa oma töö      

Otsid ehitajat "Rõdutööd" valdkonnast?

Parima pakkumise ja teostaja leidmiseks lisa oma töö.

Väliköögi ehitus

ID 113255

1128 vaatamist

Prindi

  • check Pakkumiste tegemine
    kuni 23.04.2025
  • check Võitja valik kuni
    30.04.2025
  • 3 Töö teostamine
    ja hinnang
Hanke lõpp: K, 23. aprill, 2025
Maakond: Tartumaa
Muu asula: Kabina
Tööde lõpp: Kokkuleppel
Ehitusmaterjalid: Töö tegija poolt
Soovin pakkumisi: Summa kogu projektile

Töö sisu

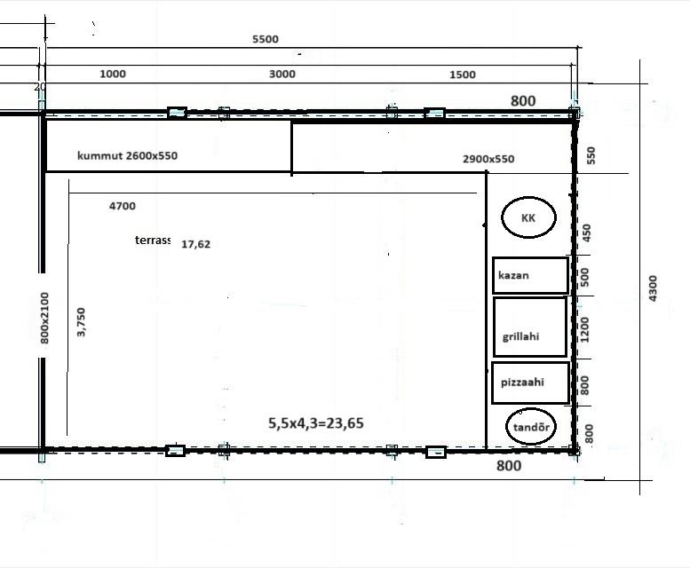
pilt on illustreeriv aga umbes sarnane ,peab kohapeal hiljem paika panema mõõdud L4,6xK3,0

Pildid, video ja failid

Hanke korraldaja: eraisik ID73566

Pakkumised

Pakkumisi kokku: 2

Ettevõte Summa Käibemaks Lisatud Vestlus
Kasutaja ikoon ID44896
Pakkuja profiil Väike nool paremale
17 000€ KM lisandub KM lisandub 11.04.2025 Vestlus (1)

Pakkumise kirjeldus:

Kiviosa nagu pildil.

Kasutaja ikoon ID38400
Pakkuja profiil Väike nool paremale
200€ Sisaldab KM Sisaldab KM 23.04.2025 Vestlus (3)

Pakkumise kirjeldus:

20 tund, riistad ja oskusef

Küsimused hanke korraldajale

Hanke korraldajale ei ole veel küsimusi esitatud.

Lisa küsimus

Lisa küsimus

Minu pakkumine

Reeglid

Pakkumise kirjelduse väli on mõeldud pakkumise detailsemaks lahti kirjutamiseks. Pikema teksti mugavaks sisestamiseks klikkige kasti paremal ülaservas oleval ikoonil.
Pakkumist tehes on keelatud postitada enda kontaktandmeid (nimi, telefon, aadress jne). Me jälgime ja analüüsime pakkumisi, et vältida pettuseid ja reeglite rikkumisi.
Rikkumise puhul kasutajakonto blokeeritakse.

 

Teisi töid samas valdkonnas

Valdkonnas "Rõdutööd" on 2 aktiivset tööd

Rõdu renoveerimine

Asukoht: Harjumaa, Tallinn
Aega jäänud: 1p 7h
Tehtud pakkumisi: 1

no-img Pilt puudub

Lodžade ja varikatuste rekonstrueerimine

Asukoht: Läänemaa, Kirbla
Aega jäänud: 28p 7h
Tehtud pakkumisi: 1

Vanemad teated:

Vaata kõiki

Sellel veebilehel kasutatakse küpsiseid. Kasutamist jätkates nõustute küpsiste kasutamisega.

Sulge
 
Minu pakkumine

Reeglid

Pakkumise kirjelduse väli on mõeldud pakkumise detailsemaks lahti kirjutamiseks. Pikema teksti mugavaks sisestamiseks klikkige kasti paremal ülaservas oleval ikoonil.
Pakkumist tehes on keelatud postitada enda kontaktandmeid (nimi, telefon, aadress jne). Me jälgime ja analüüsime pakkumisi, et vältida pettuseid ja reeglite rikkumisi.
Rikkumise puhul kasutajakonto blokeeritakse.