+ Lisa oma töö      

Otsid ehitajat "Arhitektibürood" valdkonnast?

Parima pakkumise ja teostaja leidmiseks lisa oma töö.

Hange on lõppenud!

Võitjaks osutus kasutaja ID 86806

Ridaelamuboksi ruumiplaneeringu muutmine

ID 113117

898 vaatamist

Prindi

  • check Pakkumiste tegemine
    kuni 14.04.2025
  • check Võitja valik kuni
    21.04.2025
  • 3 Töö teostamine
    ja hinnang
Hanke lõpp: E, 14. aprill, 2025
Maakond: Harjumaa
Linn: Tallinn
Tööde lõpp: Kokkuleppel
Ehitusmaterjalid: Töö tegija poolt
Soovin pakkumisi: Summa kogu projektile

Töö sisu

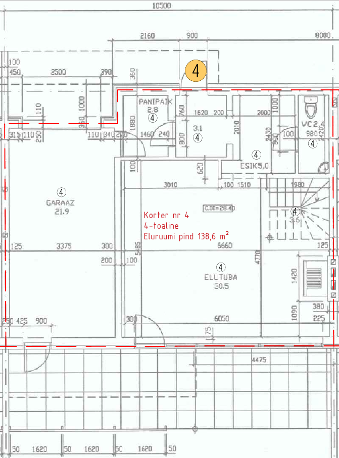
Soovime 2002 aastal ehitatud ridaelamule ruumiplaneeringu muutmist ja uue põhiplaani joonist. Plaan peaks sisaldama vaheseinte demonteerimise plaani. Ridaelamu asub Nõmmel Tallinnas. Eluruumi pindala on 138.6 m2. Plaan peab olema koostatud nii, et oleks võimalik ka uuendused seadustada vastava projektsioonidokumentatsioonide alusel.

Töö läbiviijal peab olema vastav kutsetunnistus vajalikul tasemel.

Pildid, video ja failid

Hanke korraldaja: eraisik ID83478

Pakkumised

Pakkumisi kokku: 1

Ettevõte Summa Käibemaks Lisatud Vestlus
Kasutaja ikoon ID86806
Pakkuja profiil Väike nool paremale
690€ Ei ole KMKR Ei ole KMKR 13.04.2025 Vestlus (2)

Pakkumise kirjeldus:

Tere! pakkumine sisaldab:
- uue plaanilahenduse koostamine
- ümberehituse eelprojekti koostamine
- vajadusel ehitusteatise menetlemine ehitusregistris.

KÜ kooskõlastuse saamine on tellijal valminud projekti alusel.

Tellija poolt vajalik käsitsi eskiis muudatustega.

Koostatakse diplomeeritud ehitusinsener tase 7 pootl.

Küsimused hanke korraldajale

Küsimus: private ID87262   14.04.2025 16:32
Tere!

Sooviksin teada, mitu eraldi boksi või korterit on ridaelamus. See on oluline, et määrata, kas piisab diplomeeritud arhitekti allkirjast või on kohaliku omavalitsuse (KOV) nõudeks siiski volitatud arhitekti allkiri.

Parimat!

Teavita reeglite rikkumisest

Korraldaja vastus: 14.04.2025 16:43

Tegu on 5 korteriga ridaelamuga.

Teavita reeglite rikkumisest

Lisa küsimus

Lisa küsimus

Minu pakkumine

Reeglid

Pakkumise kirjelduse väli on mõeldud pakkumise detailsemaks lahti kirjutamiseks. Pikema teksti mugavaks sisestamiseks klikkige kasti paremal ülaservas oleval ikoonil.
Pakkumist tehes on keelatud postitada enda kontaktandmeid (nimi, telefon, aadress jne). Me jälgime ja analüüsime pakkumisi, et vältida pettuseid ja reeglite rikkumisi.
Rikkumise puhul kasutajakonto blokeeritakse.

 

Vanemad teated:

Vaata kõiki

Sellel veebilehel kasutatakse küpsiseid. Kasutamist jätkates nõustute küpsiste kasutamisega.

Sulge
 
Minu pakkumine

Reeglid

Pakkumise kirjelduse väli on mõeldud pakkumise detailsemaks lahti kirjutamiseks. Pikema teksti mugavaks sisestamiseks klikkige kasti paremal ülaservas oleval ikoonil.
Pakkumist tehes on keelatud postitada enda kontaktandmeid (nimi, telefon, aadress jne). Me jälgime ja analüüsime pakkumisi, et vältida pettuseid ja reeglite rikkumisi.
Rikkumise puhul kasutajakonto blokeeritakse.