+ Lisa oma töö      

Otsid ehitajat "Siseviimistlustööd" valdkonnast?

Parima pakkumise ja teostaja leidmiseks lisa oma töö.

Korteri remont

ID 112841

983 vaatamist

Prindi

  • check Pakkumiste tegemine
    kuni 05.04.2025
  • check Võitja valik kuni
    12.04.2025
  • 3 Töö teostamine
    ja hinnang
Hanke lõpp: L, 5. aprill, 2025
Maakond: Harjumaa
Linn: Tallinn
Tööde lõpp: T, 15. aprill, 2025
Ehitusmaterjalid: Töö tegija poolt
Soovin pakkumisi: Tüki- või ühikuhinda

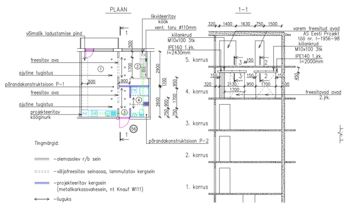
Töö sisu

Objekt: 1.toaline korter (29m2), Mustmäel 5.kordse maja 4-ndal korrusel. Ümber ehitatud 2.toaliseks.
Hetkeseis: korteris on remont alustatud - paigaldatud uus torustik, uus elektrivõrk, uus ventilatsioon ja kipsseinad ehitatud (kasutatud 1300x900 kipsplaate).

Tööd:
1. Põrandate ehitus kuni kattematerjalini (sealhulgas kipsist trepiaste välisukse ees). Vannitoas elektikuüte umbes 1m2 alal. Uus põrand P1 - 27m2 P2 - 3.6m2
2. Kipslae (kahekihiline) ehitus magamistoas (7.5m2) ja esikus (2.3m2). Termopuit lae paigaldus vannitoas (3.6m2).
3. Lükanduste (2tk) paigaldus (Haapsalu uksetehas Pocket seinasisene süsteem). Vannitoaukse paigaldus.
4. Kõigi korteri kipspindade (seinad, akna ja uksepaled, laekarbid, kipsriiulid otsaseintes jms) ning lagede pahteldamine ja värvimine. Elutoas on vana värvitud betoonlagi ning projektis toodud elutuba teiste tubadega eraldav vahesein on samuti betoonist. Vannitoas on 1 dušinurga sein ja peeglitagune sein betoonist. Ülejäänud seinad kips. (vaata pilte).
5. Dušinurga plaatimine (5m2). Põrandate plaatimine vannitoas (3.6m2), esikus (2.3m2 mille sees on ka aste) ja kööginurgas (4.9m2).
6. Parketi paigaldus (19.6m2). Aknalaudade ja rõduukse astmekatte paigaldus.
7. Santehniliste elementide paigaldamine. WC pott, vaanitoa ja köögi kraanid, dušš, köögikraan, bideedušš, nõudepesumasina ja pesumasina kraanid.

Hinnad eraldi tööde kaupa välja tuua.
Tööga tuleks alustada kohe ja võimalikult kiirelt ka teostada.
Santehnika, parkett, plaadid, uksed raamidega ja aknalauad on olemas. Kõik muu tellija poolt vastavalt kokkuleppele.
Müra tekitavaid töid saab teostada ainult tööpäevadel vahemikus 9:00-18:00. Kogu
trepikoda tuleb samal õhtul korrastada kui tekib tolmu või prahti. Objektil suitsetamine on keelatud.

Pildid, video ja failid

Hanke korraldaja: eraisik ID26129

Pakkumised

Pakkumisi kokku: 6

Ettevõte Summa Käibemaks Lisatud Vestlus
Kasutaja ikoon ID52293
Pakkuja profiil Väike nool paremale
10 000€ Sisaldab KM Sisaldab KM 03.04.2025 Vestlus (2)

Pakkumise kirjeldus:

Tere
Juhul kui soovite meid valida hanke võitjaks peaks eelnevalt kokku leppima makse tingimustes
Tänud

Kasutaja ikoon ID86997
Pakkuja profiil Väike nool paremale
8 500€ Sisaldab KM Sisaldab KM 03.04.2025 Vestlus (2)
Kasutaja ikoon ID77006
Pakkuja profiil Väike nool paremale
8 600€ Sisaldab KM Sisaldab KM 03.04.2025 Vestlus (2)

Pakkumise kirjeldus:

Tere, Hind on märgitud kõikidele vajalikele töödele, mis tuleb teha kohapeal.

Kasutaja ikoon ID85299
Pakkuja profiil Väike nool paremale
9 900€ Ei ole KMKR Ei ole KMKR 03.04.2025 Vestlus (1)
Kasutaja ikoon ID52783
Pakkuja profiil Väike nool paremale
1 800€ Sisaldab KM Sisaldab KM 04.04.2025 Vestlus (0)

Pakkumise kirjeldus:

Tere, tegin pakkumise maalritöödele.
Ehk ca.100 m2 .18 EUR. m2. Maalritöid.
Ehk vuugilindid, täitmine, lauspahteldus, kruntimine akrüül ja lõpu värvid, mille toonid, siis täpsustame.
Kõik materjal on meie poolt ja hinnas.

Kohapeal saame otsustada, et milliseid töid võime veel lisaks maalritöödele teostada .

Lp.Joel

Kasutaja ikoon ID51140
Pakkuja profiil Väike nool paremale
12 000€ Sisaldab KM Sisaldab KM 05.04.2025 Vestlus (0)

Küsimused hanke korraldajale

Küsimus: private ID52783   03.04.2025 09:53
Tere.
Saaksin pakkuda maalritöid kui huvi.

Teavita reeglite rikkumisest

Korraldaja vastus: 03.04.2025 19:36

Hea teada. Saan aru teil just maalritöö kogemused. Mis hinnaga oma tööd müüte? Ja saan aru et ainult maalrtiööd ilma pindade ettevalmistuseta (pahteldamin, krohvimine).

Teavita reeglite rikkumisest

Küsimus: private ID52783   04.04.2025 07:03
Tegin pakkumise.

Teavita reeglite rikkumisest

Korraldaja vastus:
Hanke korraldaja ei ole küsimusele veel vastanud

Lisa küsimus

Lisa küsimus

Minu pakkumine

Reeglid

Pakkumise kirjelduse väli on mõeldud pakkumise detailsemaks lahti kirjutamiseks. Pikema teksti mugavaks sisestamiseks klikkige kasti paremal ülaservas oleval ikoonil.
Pakkumist tehes on keelatud postitada enda kontaktandmeid (nimi, telefon, aadress jne). Me jälgime ja analüüsime pakkumisi, et vältida pettuseid ja reeglite rikkumisi.
Rikkumise puhul kasutajakonto blokeeritakse.

 

Teisi töid samas valdkonnas

Valdkonnas "Siseviimistlustööd" on 25 aktiivset tööd

Korteri remont

Asukoht: Harjumaa, Muraste
Aega jäänud: 2p 8h
Tehtud pakkumisi: 15

no-img Pilt puudub

Laminaatparketi paigaldus

Asukoht: Harjumaa, Tallinn
Aega jäänud: 4p 8h
Tehtud pakkumisi: 8

Vanemad teated:

Vaata kõiki

Sellel veebilehel kasutatakse küpsiseid. Kasutamist jätkates nõustute küpsiste kasutamisega.

Sulge
 
Minu pakkumine

Reeglid

Pakkumise kirjelduse väli on mõeldud pakkumise detailsemaks lahti kirjutamiseks. Pikema teksti mugavaks sisestamiseks klikkige kasti paremal ülaservas oleval ikoonil.
Pakkumist tehes on keelatud postitada enda kontaktandmeid (nimi, telefon, aadress jne). Me jälgime ja analüüsime pakkumisi, et vältida pettuseid ja reeglite rikkumisi.
Rikkumise puhul kasutajakonto blokeeritakse.