+ Lisa oma töö      

Otsid ehitajat "Üldehitus" valdkonnast?

Parima pakkumise ja teostaja leidmiseks lisa oma töö.

Maja ehitamine

ID 112755

1828 vaatamist

Prindi

  • check Pakkumiste tegemine
    kuni 01.05.2025
  • check Võitja valik kuni
    08.05.2025
  • 3 Töö teostamine
    ja hinnang
Hanke lõpp: N, 1. mai, 2025
Maakond: Tartumaa
Tööde lõpp: Kokkuleppel
Ehitusmaterjalid: Töö tegija poolt
Soovin pakkumisi: Summa kogu projektile

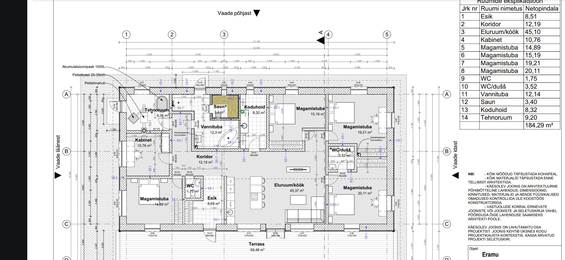
Töö sisu

Pooliku eramu ehitusega jätkamine. Hetkel välisseinad valmis,katus peal, vee, elektri ja kanalisatsiooni otsad majas sees.
Vaja teha:
1. Siseseinad bauroc universal 200. Krohv, kruntimine.
2. Küte vesi ja kanalistasioon.
3. Betoonitööd.
4. Vahelagi + 500mm puistevill.
5. Elekter.
6. Uksed, aknad.
7. Välisvooder 200mm puitvoodrilaud vertikaalselt.
8. Sauna ehitamine koos elektrikerisega.
9. Seinte ja põrandate plaatimine.

Pildid, video ja failid

Hanke korraldaja: eraisik ID89104

Pakkumised

Pakkumisi kokku: 3

Ettevõte Summa Käibemaks Lisatud Vestlus
Kasutaja ikoon ID52629
Pakkuja profiil Väike nool paremale
140 000€ KM lisandub KM lisandub 18.04.2025 Vestlus (1)

Pakkumise kirjeldus:

Tere!
Pakkumine töö+materjal
1. Bauroc siseseinte ladumine 12 000+km
2. Põrandakütte torustik, kanalisatsioon, vesi 8000+ km
3.Betoonitööd-põranda täite pinnas soojustamine eps 100 300 mm, betoon 14 500+km
4. Vahelagi(roov,osb,kips) + 500mm puistevill, käigutee 12 500+km
5. Elekter. 15 000+km
6. Uksed, aknad. 18 000+km
7. Välisvooder 200m ... Rohkem

Kasutaja ikoon ID33769
Pakkuja profiil Väike nool paremale
190 000€ KM lisandub KM lisandub 29.04.2025 Vestlus (0)

Pakkumise kirjeldus:

Tere

Pakkumine Maja lõpuni ehituseks. Seinad laed värvi all, niisked ruumid plaaditud plaadi hind ca 30eur/m2, parkett hind ca 30eur/m2, siseuksed ca 400eur/tk, PVC aknad 3kordne parkett Uw 0.8,

Lisandub hange.ee keskonna tasu.

Parimaga
Allar

Kasutaja ikoon ID40566
Pakkuja profiil Väike nool paremale
12 000€ KM lisandub KM lisandub 29.04.2025 Vestlus (0)

Pakkumise kirjeldus:

Tere,
#Siseseinte viimistlus kuni värvini koos materjaliga 35€/m2
# Vesi, kanal ja põrandaküte paigaldus koos materjalidega maja sees 12000€
# Betooni töödeks oleks aja täpsemat asukohta, näiteks küla. Ligipääsu võimalust.
Hea kui on olemas geoalus või krundi plaan.
#Puistevill 35€/m3
#Elektrile saab pakkumise teha vastavalt projekti ... Rohkem

Küsimused hanke korraldajale

Küsimus: private ID43565   01.04.2025 20:49
Tere
Sooviks rohkem infot.

Teavita reeglite rikkumisest

Korraldaja vastus: 02.04.2025 09:12

Tere. Küsige küsimusi juurde, siis oskan projekti ülesannet täpsemaks kirjutada.

Teavita reeglite rikkumisest

Küsimus: private ID88003   01.04.2025 21:24
Tere!Sooviks rohkem infot.

Lugupidamisega.

Teavita reeglite rikkumisest

Korraldaja vastus: 03.04.2025 08:11

Tere! Lisasin failid.

Teavita reeglite rikkumisest

Küsimus: private ID65236   04.04.2025 20:13
Tervist! Kas võin teha pakkumise osadele töödele? Pakkuda saaks fassaaditöid, sauna ehitust, vahelae ehitust, uste-akende paigaldust.

Parimat!

Teavita reeglite rikkumisest

Korraldaja vastus: 06.04.2025 10:08

Tere! Võib pakkuda osadele töödele.

Teavita reeglite rikkumisest

Küsimus: private ID72026   06.04.2025 17:39
Tere!

Millal on plaanis antud töödega alustada?


Parimat!

Teavita reeglite rikkumisest

Korraldaja vastus: 06.04.2025 17:45

Tere!
Juuni 2025.

Teavita reeglite rikkumisest

Küsimus: private ID61081   17.04.2025 09:36
Tere.

Kas saan õieti aru et betoon põrandad hetkel tegematta?
Kass vaheseinad on juba olemas?

Teavita reeglite rikkumisest

Korraldaja vastus:
Hanke korraldaja ei ole küsimusele veel vastanud

Küsimus: private ID72026   21.04.2025 12:07
Tere!

Kas Teil on olemas sellele projektile ka seletuskiri ja konstruktiivne projekt?


Parimat!

Teavita reeglite rikkumisest

Korraldaja vastus:
Hanke korraldaja ei ole küsimusele veel vastanud

Küsimus: private ID40566   26.04.2025 22:55
Tere,
1.Kas kütte-, elektri- ja ventilatsiooni projekt ka olemas? Kui on siis paluks neid ka.
2. Kas kütte, võib ka lahendada näiteks maa- või õhk-vesi soojuspumbaga.
3. Kui on olemas siis sooviks saada ka akende/uste spetsifikatsioon.
Kui on veel dokumentatsiooni maja kohta siis võiks need ka üles laadida ning mõned pildid hetke olukorrast ei tee ka paha. Oleks lihtsam pakkumist koostada.

Lugupidamisega
Are

Teavita reeglite rikkumisest

Korraldaja vastus:
Hanke korraldaja ei ole küsimusele veel vastanud

Lisa küsimus

Lisa küsimus

Minu pakkumine

Reeglid

Pakkumise kirjelduse väli on mõeldud pakkumise detailsemaks lahti kirjutamiseks. Pikema teksti mugavaks sisestamiseks klikkige kasti paremal ülaservas oleval ikoonil.
Pakkumist tehes on keelatud postitada enda kontaktandmeid (nimi, telefon, aadress jne). Me jälgime ja analüüsime pakkumisi, et vältida pettuseid ja reeglite rikkumisi.
Rikkumise puhul kasutajakonto blokeeritakse.

 

Teisi töid samas valdkonnas

Valdkonnas "Üldehitus" on 33 aktiivset tööd

Korteri kapitaalremont

Asukoht: Harjumaa, Laagri
Aega jäänud: 22h 27 min
Tehtud pakkumisi: 4

5 tonni liiva esimese korruse aknast sisse tõsta (põranda aluse täiteks)

Asukoht: Jõgevamaa, Jõgeva
Aega jäänud: 1p 22h
Tehtud pakkumisi: 3

Vanemad teated:

Vaata kõiki

Sellel veebilehel kasutatakse küpsiseid. Kasutamist jätkates nõustute küpsiste kasutamisega.

Sulge
 
Minu pakkumine

Reeglid

Pakkumise kirjelduse väli on mõeldud pakkumise detailsemaks lahti kirjutamiseks. Pikema teksti mugavaks sisestamiseks klikkige kasti paremal ülaservas oleval ikoonil.
Pakkumist tehes on keelatud postitada enda kontaktandmeid (nimi, telefon, aadress jne). Me jälgime ja analüüsime pakkumisi, et vältida pettuseid ja reeglite rikkumisi.
Rikkumise puhul kasutajakonto blokeeritakse.