+ Lisa oma töö      

Otsid ehitajat "Üldehitus" valdkonnast?

Parima pakkumise ja teostaja leidmiseks lisa oma töö.

Välistrepp

ID 112578

1345 vaatamist

Prindi

  • check Pakkumiste tegemine
    kuni 13.04.2025
  • check Võitja valik kuni
    20.04.2025
  • 3 Töö teostamine
    ja hinnang
Hanke lõpp: P, 13. aprill, 2025
Maakond: Tartumaa
Muu asula: Nõo
Tööde lõpp: Kokkuleppel
Ehitusmaterjalid: Töö tegija poolt
Soovin pakkumisi: Summa kogu projektile

Töö sisu

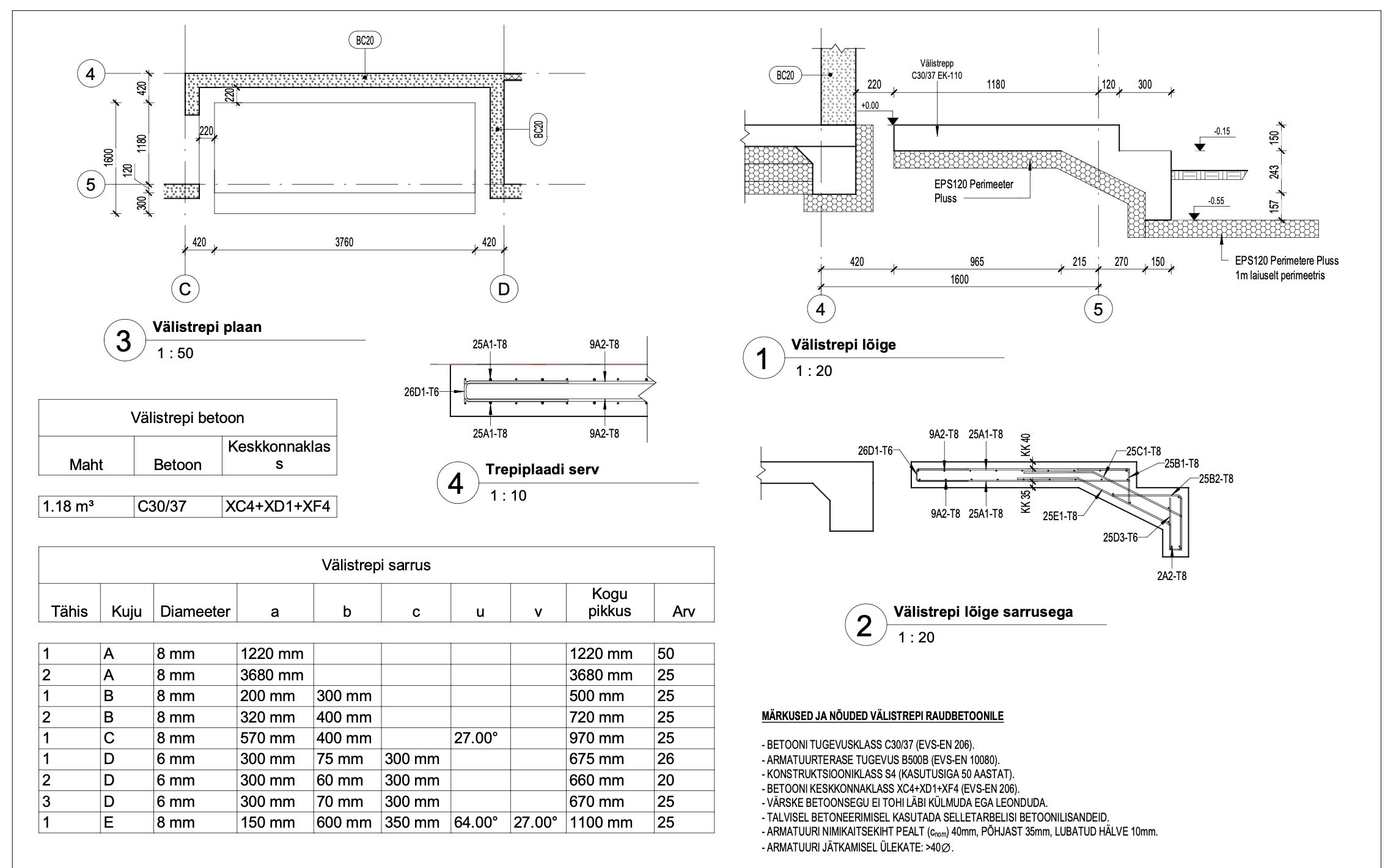
Rajada betoonist välistrepp vastavalt ehituskonstruktsioonidele (vt joonist). Välistrepi alune pinnas (killustik) korrigeerida vastavalt vajadusele. Tööd tuleb teostada puhtalt ilma fassaadi ja välisust kahjustamata.

Tööde algus esimesel võimalusel.

Pildid, video ja failid

Hanke korraldaja: eraisik ID61025

Pakkumised

Pakkumisi kokku: 3

Ettevõte Summa Käibemaks Lisatud Vestlus
Kasutaja ikoon ID73796
Pakkuja profiil Väike nool paremale
2 700€ KM lisandub KM lisandub 31.03.2025 Vestlus (0)
Kasutaja ikoon ID65773
Pakkuja profiil Väike nool paremale
2 700€ KM lisandub KM lisandub 01.04.2025 Vestlus (2)

Pakkumise kirjeldus:

Tere !
Meie hind sisaldab:
Liiva täitepinnaks. Eps perimeeter 120, armeerimis võrk. rangid armatuur 8 mm. Faasiliist
Trepi astme nurkadesse tekitaks faasid 15mm . Joonisel need puuduvad.
Betooni ja tööd.

Betooni tööde kogemust 20 aastat.

Meie tehtuid töid ja tagasisidet saate vaadata meie profiili alt.

Vastame meeleldi teie lisak ... Rohkem

Kasutaja ikoon ID38464
Pakkuja profiil Väike nool paremale
2 500€ KM lisandub KM lisandub 13.04.2025 Vestlus (2)

Pakkumise kirjeldus:

Töödejärg 2-3 nädalat

Küsimused hanke korraldajale

Hanke korraldajale ei ole veel küsimusi esitatud.

Lisa küsimus

Lisa küsimus

Minu pakkumine

Reeglid

Pakkumise kirjelduse väli on mõeldud pakkumise detailsemaks lahti kirjutamiseks. Pikema teksti mugavaks sisestamiseks klikkige kasti paremal ülaservas oleval ikoonil.
Pakkumist tehes on keelatud postitada enda kontaktandmeid (nimi, telefon, aadress jne). Me jälgime ja analüüsime pakkumisi, et vältida pettuseid ja reeglite rikkumisi.
Rikkumise puhul kasutajakonto blokeeritakse.

 

Teisi töid samas valdkonnas

Valdkonnas "Üldehitus" on 33 aktiivset tööd

Korteri kapitaalremont

Asukoht: Harjumaa, Laagri
Aega jäänud: 22h 27 min
Tehtud pakkumisi: 4

5 tonni liiva esimese korruse aknast sisse tõsta (põranda aluse täiteks)

Asukoht: Jõgevamaa, Jõgeva
Aega jäänud: 1p 22h
Tehtud pakkumisi: 3

Vanemad teated:

Vaata kõiki

Sellel veebilehel kasutatakse küpsiseid. Kasutamist jätkates nõustute küpsiste kasutamisega.

Sulge
 
Minu pakkumine

Reeglid

Pakkumise kirjelduse väli on mõeldud pakkumise detailsemaks lahti kirjutamiseks. Pikema teksti mugavaks sisestamiseks klikkige kasti paremal ülaservas oleval ikoonil.
Pakkumist tehes on keelatud postitada enda kontaktandmeid (nimi, telefon, aadress jne). Me jälgime ja analüüsime pakkumisi, et vältida pettuseid ja reeglite rikkumisi.
Rikkumise puhul kasutajakonto blokeeritakse.