+ Lisa oma töö      

Otsid ehitajat "Üldehitus" valdkonnast?

Parima pakkumise ja teostaja leidmiseks lisa oma töö.

Eramaja 2 korrus remont

ID 112489

1138 vaatamist

Prindi

  • check Pakkumiste tegemine
    kuni 07.04.2025
  • check Võitja valik kuni
    14.04.2025
  • 3 Töö teostamine
    ja hinnang
Hanke lõpp: E, 7. aprill, 2025
Maakond: Harjumaa
Linn: Tallinn
Tööde lõpp: Kokkuleppel
Ehitusmaterjalid: Töö tegija poolt
Soovin pakkumisi: Summa kogu projektile

Töö sisu

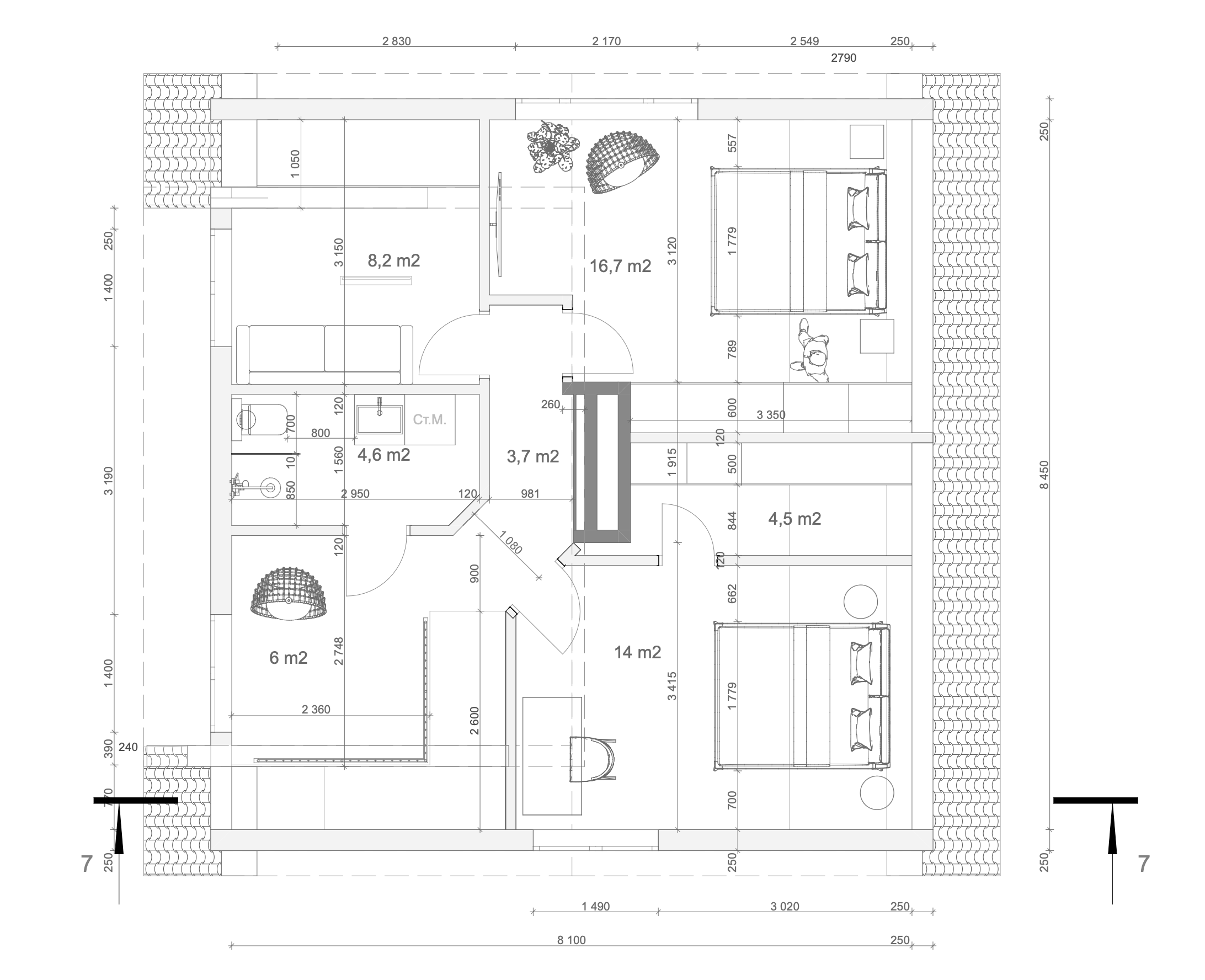
Teise korruse oma majas (~57,7 m²) lõpuni valmis teha ja otsime selleks häid tegijaid kolmele tööetapile.
Siin on, mis vaja teha:
Soojustus
• Tuuakse puuduolev soojustusmaterjal ja tehakse töö lõpuni.
• Paigaldatakse aurutõke.
Küte
• Viia küttetorud teisele korrusele.
• Vannituppa vesipõrandaküte, tubadesse radiaatorid.
• Selleks tuleb lahti võtta aluspõrand, paigaldada torud ja seejärel uuesti kokku panna.
Seinad ja aknad
• Seada seinad paika vastavalt projektile.
• Vahetada 2 aknad

Pildid, video ja failid

Hanke korraldaja: eraisik ID89001

Pakkumised

Pakkumisi kokku: 4

Ettevõte Summa Käibemaks Lisatud Vestlus
Kasutaja ikoon ID52293
Pakkuja profiil Väike nool paremale
27 000€ Sisaldab KM Sisaldab KM 28.03.2025 Vestlus (0)

Pakkumise kirjeldus:

Tere
Juhul kui soovite meid valida hanke võitjaks peaks eelnevalt kokku leppima makse tingimustes
Tänud

Kasutaja ikoon ID72970
Pakkuja profiil Väike nool paremale
10 500€ Sisaldab KM Sisaldab KM 28.03.2025 Vestlus (0)

Pakkumise kirjeldus:

Tere

Kahjuks ei oska öelda täpne hind, oleks vaja vaadata projektid, teada mis materjalid ja kui palju on vaja paigaldada ja muud asju


Tööde kirjeldus ja maksumus
1. Soojustus

Puuduoleva soojustusmaterjali tarnimine ja paigaldamine (mitu m2, palju kihte, paksus?)

Aurutõkke paigaldamine (mitu m2?)

2. Küttesüsteem

Küttetorude viim ... Rohkem

Kasutaja ikoon ID85299
Pakkuja profiil Väike nool paremale
5 928€ Ikoon kell Ei ole KMKR Ei ole KMKR 29.03.2025 Vestlus (0)

Pakkumise kirjeldus:

Tere!
seina paigaldamine kipsplaat, villa

Kasutaja ikoon ID86318
Pakkuja profiil Väike nool paremale
30 000€ KM lisandub KM lisandub 01.04.2025 Vestlus (0)

Küsimused hanke korraldajale

Küsimus: private ID64032   06.04.2025 12:18
Tere,

Miks alustaja ei viinud oma töid lõpuni?

Parimate soovidega,
Kristjan

Teavita reeglite rikkumisest

Korraldaja vastus:
Hanke korraldaja ei ole küsimusele veel vastanud

Lisa küsimus

Lisa küsimus

Minu pakkumine

Reeglid

Pakkumise kirjelduse väli on mõeldud pakkumise detailsemaks lahti kirjutamiseks. Pikema teksti mugavaks sisestamiseks klikkige kasti paremal ülaservas oleval ikoonil.
Pakkumist tehes on keelatud postitada enda kontaktandmeid (nimi, telefon, aadress jne). Me jälgime ja analüüsime pakkumisi, et vältida pettuseid ja reeglite rikkumisi.
Rikkumise puhul kasutajakonto blokeeritakse.

 

Teisi töid samas valdkonnas

Valdkonnas "Üldehitus" on 33 aktiivset tööd

Korteri kapitaalremont

Asukoht: Harjumaa, Laagri
Aega jäänud: 22h 19 min
Tehtud pakkumisi: 4

5 tonni liiva esimese korruse aknast sisse tõsta (põranda aluse täiteks)

Asukoht: Jõgevamaa, Jõgeva
Aega jäänud: 1p 22h
Tehtud pakkumisi: 3

Vanemad teated:

Vaata kõiki

Sellel veebilehel kasutatakse küpsiseid. Kasutamist jätkates nõustute küpsiste kasutamisega.

Sulge
 
Minu pakkumine

Reeglid

Pakkumise kirjelduse väli on mõeldud pakkumise detailsemaks lahti kirjutamiseks. Pikema teksti mugavaks sisestamiseks klikkige kasti paremal ülaservas oleval ikoonil.
Pakkumist tehes on keelatud postitada enda kontaktandmeid (nimi, telefon, aadress jne). Me jälgime ja analüüsime pakkumisi, et vältida pettuseid ja reeglite rikkumisi.
Rikkumise puhul kasutajakonto blokeeritakse.