+ Lisa oma töö      

Otsid ehitajat "Fassaaditööd" valdkonnast?

Parima pakkumise ja teostaja leidmiseks lisa oma töö.

Fassaad

ID 112255

1050 vaatamist

Prindi

  • check Pakkumiste tegemine
    kuni 02.04.2025
  • check Võitja valik kuni
    09.04.2025
  • 3 Töö teostamine
    ja hinnang
Hanke lõpp: K, 2. aprill, 2025
Maakond: Harjumaa
Linn: Tallinn
Tööde lõpp: Kokkuleppel
Ehitusmaterjalid: Töö tegija poolt
Soovin pakkumisi: Tüki- või ühikuhinda

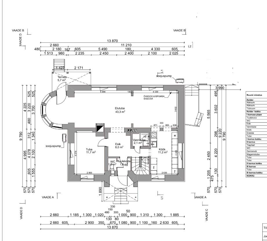
Töö sisu

Eramaja fassaaditööd seoses akende vahetusega (sh osad aknamõõdud muutusid):
Krohvimine.
Aknaplekkide paigaldamine
Osaliselt aknapõskede soojustamine.
Osaline penoplasti paigaldus.

Hetkeolukord:
Elamu fassaad on soojustatud 100 mm vahtpolüstüreen plaatidega, viimistletud hõõrdkrohviga. Sokkel on soojustatud 100 mm vahtpolüstüreen plaatidega, viimistluseks puistega tsementplaadid.

Maja kogu kõrgus maapinnast on 10m
Sokli kõrgus 1,3m
Esimese korruse kõrgus koos sokliga 4,3m

Ruutmeetreid ca 200.

Pildid, video ja failid

Hanke korraldaja: ettevõte ID88894

Pakkumised

Pakkumisi kokku: 1

Ettevõte Summa Käibemaks Lisatud Vestlus
Kasutaja ikoon ID88502
Pakkuja profiil Väike nool paremale
12 000€ KM lisandub KM lisandub 02.04.2025 Vestlus (1)

Pakkumise kirjeldus:

Tere

Pakkumine sisaldab hanke sisus kirjeldatud tööde teostamist koos materjalidega.

Küsimused hanke korraldajale

Küsimus: private ID8633   24.03.2025 18:50
Tere,palju m2?

Teavita reeglite rikkumisest

Korraldaja vastus: 24.03.2025 19:31

Tere,

Kiire ja umbkaudne arvutus annab ca 200m2, saan homme täpsustada.

Teavita reeglite rikkumisest

Lisa küsimus

Lisa küsimus

Minu pakkumine

Reeglid

Pakkumise kirjelduse väli on mõeldud pakkumise detailsemaks lahti kirjutamiseks. Pikema teksti mugavaks sisestamiseks klikkige kasti paremal ülaservas oleval ikoonil.
Pakkumist tehes on keelatud postitada enda kontaktandmeid (nimi, telefon, aadress jne). Me jälgime ja analüüsime pakkumisi, et vältida pettuseid ja reeglite rikkumisi.
Rikkumise puhul kasutajakonto blokeeritakse.

 

Teisi töid samas valdkonnas

Valdkonnas "Fassaaditööd" on 14 aktiivset tööd

Fassaadi renoveerimine

Asukoht: Harjumaa, Viimsi
Aega jäänud: 1h 48 min
Tehtud pakkumisi: 3

Akende ja viilude parandus ja värvimine

Asukoht: Valgamaa, Valga
Aega jäänud: 1p 1h
Tehtud pakkumisi: 3

Vanemad teated:

Vaata kõiki

Sellel veebilehel kasutatakse küpsiseid. Kasutamist jätkates nõustute küpsiste kasutamisega.

Sulge
 
Minu pakkumine

Reeglid

Pakkumise kirjelduse väli on mõeldud pakkumise detailsemaks lahti kirjutamiseks. Pikema teksti mugavaks sisestamiseks klikkige kasti paremal ülaservas oleval ikoonil.
Pakkumist tehes on keelatud postitada enda kontaktandmeid (nimi, telefon, aadress jne). Me jälgime ja analüüsime pakkumisi, et vältida pettuseid ja reeglite rikkumisi.
Rikkumise puhul kasutajakonto blokeeritakse.