+ Lisa oma töö      

Otsid ehitajat "Fassaaditööd" valdkonnast?

Parima pakkumise ja teostaja leidmiseks lisa oma töö.

Maja Vundamendi ja Fassaadi Remont

ID 112039

1606 vaatamist

Prindi

  • check Pakkumiste tegemine
    kuni 19.04.2025
  • check Võitja valik kuni
    26.04.2025
  • 3 Töö teostamine
    ja hinnang
Hanke lõpp: L, 19. aprill, 2025
Maakond: Tartumaa
Tööde lõpp: Kokkuleppel
Ehitusmaterjalid: Töö tegija poolt
Soovin pakkumisi: Tüki- või ühikuhinda

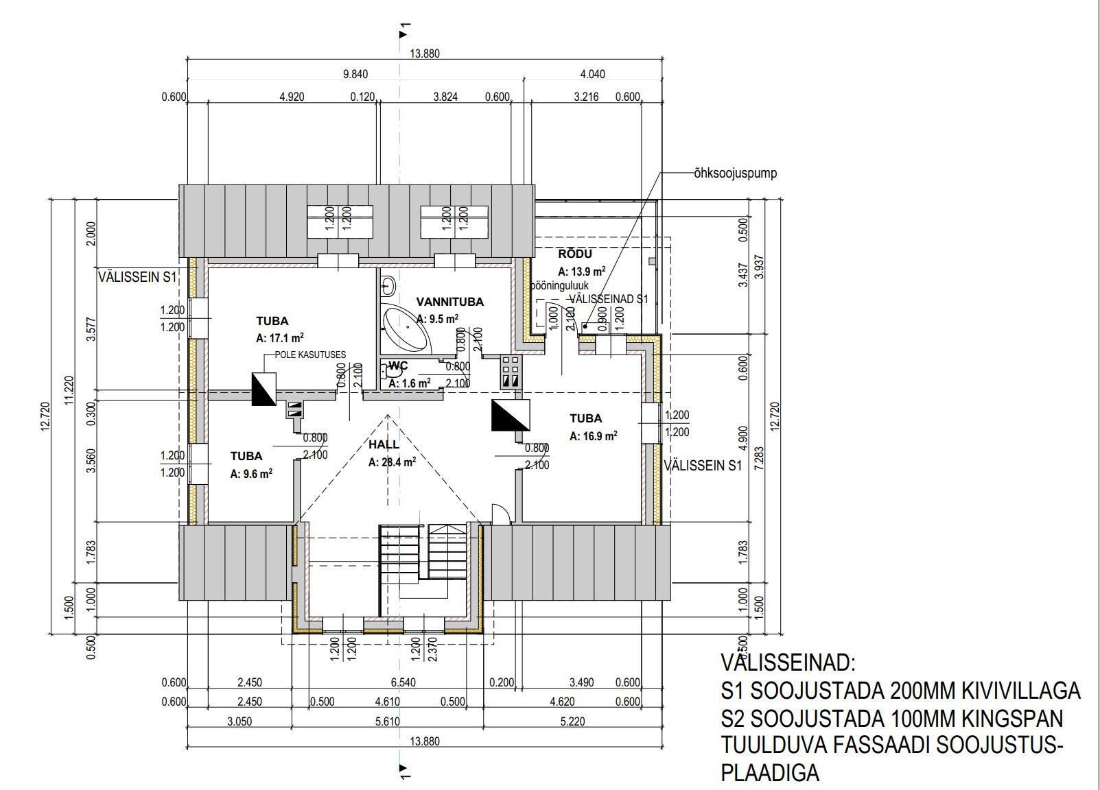
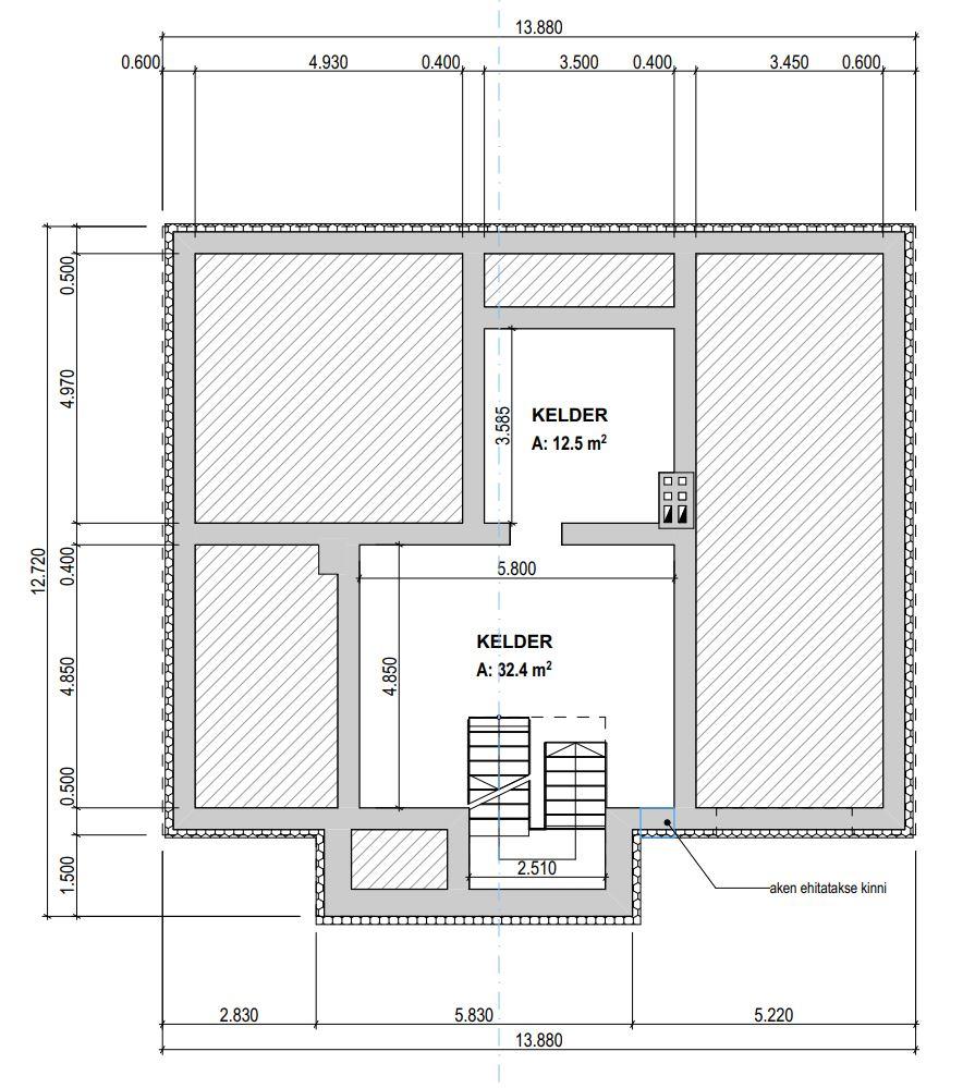
Töö sisu

Projekti maht

Välisseinte soojustus
Sokli ja katuse tugistruktuuride soojustus
Akende vahetus
Keldri lae soojustus
Garaaži ja eluruumide vahelise seina soojustus
Uste vahetus
Maja esi- ja tagatreppide ning trepipiirete korrastamine
Lisainfo projekti kohta saab edastada huvilistele.

Pildid, video ja failid

Hanke korraldaja: eraisik ID72293

Pakkumised

Pakkumisi kokku: 2

Ettevõte Summa Käibemaks Lisatud Vestlus
Kasutaja ikoon ID87733
Pakkuja profiil Väike nool paremale
43 995€ Ikoon kell KM lisandub KM lisandub 24.03.2025 Vestlus (0)

Pakkumise kirjeldus:

Välisseinte soojustus
Sokli ja katuse tugistruktuuride soojustus
Akende vahetus
Keldri lae soojustus
Garaaži ja eluruumide vahelise seina soojustus
Uste vahetus
Maja esi- ja tagatreppide ning trepipiirete korrastamine

Kasutaja ikoon ID65365
Pakkuja profiil Väike nool paremale
18 900€ Ei ole KMKR Ei ole KMKR 19.04.2025 Vestlus (0)

Pakkumise kirjeldus:

Pakkumine tööle
Maksmine 5 osas,pakkumine ei sisalda materjali.

Küsimused hanke korraldajale

Küsimus: private ID85882   20.03.2025 17:55
Lisainfo?

Teavita reeglite rikkumisest

Korraldaja vastus: 21.03.2025 20:52

lisatud

Teavita reeglite rikkumisest

Küsimus: private ID54056   20.03.2025 20:16
Sooviks
rohkem infot

Teavita reeglite rikkumisest

Korraldaja vastus: 21.03.2025 20:52

lisatud

Teavita reeglite rikkumisest

Küsimus: private ID87867   21.03.2025 17:11
Tere õhtust ma sooviksin teada saada rohkem infot selle hange kohta.

Teavita reeglite rikkumisest

Korraldaja vastus: 24.03.2025 21:40

Tere, lisasin PDFina projekti selestuskirja.

Teavita reeglite rikkumisest

Küsimus: private ID43565   22.03.2025 08:20
Tere

Olen huvitatud lisainfost.

Parimat

Teavita reeglite rikkumisest

Korraldaja vastus: 24.03.2025 21:40

Tere, lisasin PDFina projekti selestuskirja.

Teavita reeglite rikkumisest

Küsimus: private ID54056   23.03.2025 19:19
Tere

Kivivillaga seina lähevad siis krohvi alla ?
Kas sokkel vaja lahti kaevata soojustamisse jaoks ?
uksed ja aknad tellide ise või tööde teostaja ?
Mis fassaadi plaat on mõeldud tuulduva fassaadi peale ?
garaasi lae soojustus jääbki lihtsalt eps või tuleb sinna peale ka midagi ?

Parimat
Kauri

Teavita reeglite rikkumisest

Korraldaja vastus: 24.03.2025 21:42

Tere,
Kivivillaga seina lähevad siis krohvi alla ? Ei, puitlaudise alla.
Kas sokkel vaja lahti kaevata soojustamisse jaoks ? jah.
uksed ja aknad tellide ise või tööde teostaja ? Tellime ise.
Mis fassaadi plaat on mõeldud tuulduva fassaadi peale ? puitlaudis
garaasi lae soojustus jääbki lihtsalt eps või tuleb sinna peale ka midagi ? Ei tule midagi peale.

Lisasin PDFina projekti seletuskirja.

Teavita reeglite rikkumisest

Lisa küsimus

Lisa küsimus

Minu pakkumine

Reeglid

Pakkumise kirjelduse väli on mõeldud pakkumise detailsemaks lahti kirjutamiseks. Pikema teksti mugavaks sisestamiseks klikkige kasti paremal ülaservas oleval ikoonil.
Pakkumist tehes on keelatud postitada enda kontaktandmeid (nimi, telefon, aadress jne). Me jälgime ja analüüsime pakkumisi, et vältida pettuseid ja reeglite rikkumisi.
Rikkumise puhul kasutajakonto blokeeritakse.

 

Teisi töid samas valdkonnas

Valdkonnas "Fassaaditööd" on 14 aktiivset tööd

Fassaadi renoveerimine

Asukoht: Harjumaa, Viimsi
Aega jäänud: 1h 41 min
Tehtud pakkumisi: 3

Akende ja viilude parandus ja värvimine

Asukoht: Valgamaa, Valga
Aega jäänud: 1p 1h
Tehtud pakkumisi: 3

Vanemad teated:

Vaata kõiki

Sellel veebilehel kasutatakse küpsiseid. Kasutamist jätkates nõustute küpsiste kasutamisega.

Sulge
 
Minu pakkumine

Reeglid

Pakkumise kirjelduse väli on mõeldud pakkumise detailsemaks lahti kirjutamiseks. Pikema teksti mugavaks sisestamiseks klikkige kasti paremal ülaservas oleval ikoonil.
Pakkumist tehes on keelatud postitada enda kontaktandmeid (nimi, telefon, aadress jne). Me jälgime ja analüüsime pakkumisi, et vältida pettuseid ja reeglite rikkumisi.
Rikkumise puhul kasutajakonto blokeeritakse.