+ Lisa oma töö      

Otsid ehitajat "Üldehitus" valdkonnast?

Parima pakkumise ja teostaja leidmiseks lisa oma töö.

Ukseavade lõikamine

ID 111999

805 vaatamist

Prindi

  • check Pakkumiste tegemine
    kuni 23.03.2025
  • check Võitja valik kuni
    30.03.2025
  • 3 Töö teostamine
    ja hinnang
Hanke lõpp: P, 23. märts, 2025
Maakond: Harjumaa
Linn: Tallinn
Tööde lõpp: Kokkuleppel
Ehitusmaterjalid: Töö tellija poolt
Soovin pakkumisi: Summa kogu projektile

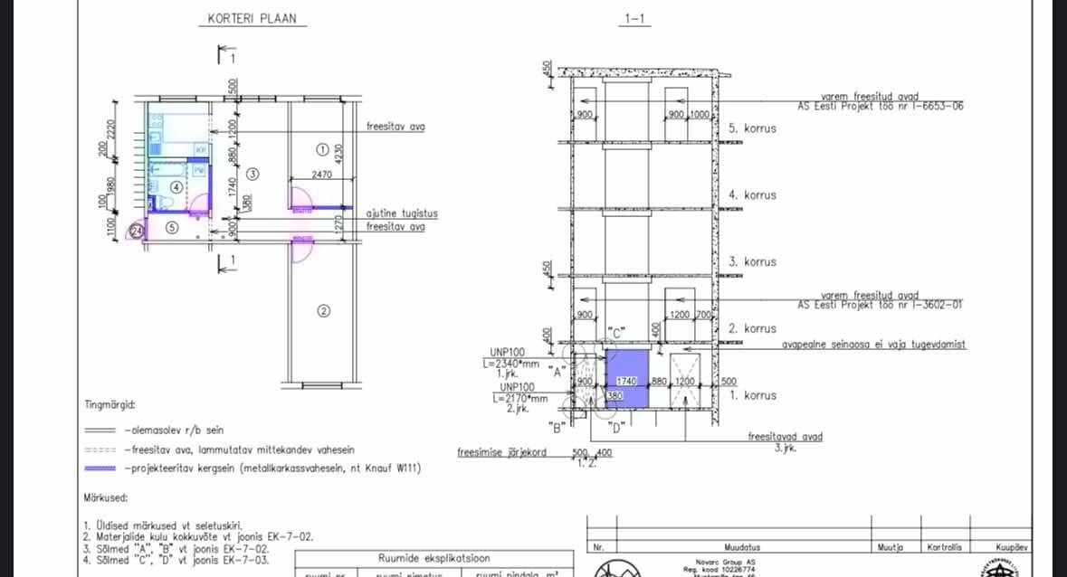
Töö sisu

Tere!

Soovin pakkumist kahe ava lõikamisele koos prügi utiliseerimisega ning avade toestamisega. Toestustalad mul olemas.

ava 1- 1200x2100

ava 2- 900x2100

toestamist vajav osa- 1740x2350

Lisaks vanade avade kinnikatmine. Projektil kõik näha

Pildid, video ja failid

Hanke korraldaja: ettevõte ID82196

Pakkumised

Pakkumisi kokku: 1

Ettevõte Summa Käibemaks Lisatud Vestlus
Kasutaja ikoon ID52293
Pakkuja profiil Väike nool paremale
6 000€ Sisaldab KM Sisaldab KM 23.03.2025 Vestlus (0)

Pakkumise kirjeldus:

Tere
Juhul kui soovite meid valida hanke võitjaks peaks eelnevalt kokku leppima makse tingimustes
Tänud

Küsimused hanke korraldajale

Küsimus: private ID83059   20.03.2025 12:24
Tere,kas sillused tuleb ka paigaldada? Kui jah siis kelle poolt ja millised?

Teavita reeglite rikkumisest

Korraldaja vastus: 20.03.2025 19:18

Silluseid ei tule

Teavita reeglite rikkumisest

Küsimus: private ID86055   20.03.2025 16:53
Millega lähevad vanad avad kinni?
Kui paksud on seinad kuhu tuleb uus ava.

Teavita reeglite rikkumisest

Korraldaja vastus:
Hanke korraldaja ei ole küsimusele veel vastanud

Küsimus: private ID83059   20.03.2025 19:25
Millest sein on( betoon,tellis,tuhaplokk?) Kui paks ja mitmes korrus?

Teavita reeglite rikkumisest

Korraldaja vastus:
Hanke korraldaja ei ole küsimusele veel vastanud

Küsimus: private ID83059   20.03.2025 19:30
Nagu aru saan siis esimene korrus aga paksust ei loe välja ja millest?

Teavita reeglite rikkumisest

Korraldaja vastus:
Hanke korraldaja ei ole küsimusele veel vastanud

Lisa küsimus

Lisa küsimus

Minu pakkumine

Reeglid

Pakkumise kirjelduse väli on mõeldud pakkumise detailsemaks lahti kirjutamiseks. Pikema teksti mugavaks sisestamiseks klikkige kasti paremal ülaservas oleval ikoonil.
Pakkumist tehes on keelatud postitada enda kontaktandmeid (nimi, telefon, aadress jne). Me jälgime ja analüüsime pakkumisi, et vältida pettuseid ja reeglite rikkumisi.
Rikkumise puhul kasutajakonto blokeeritakse.

 

Teisi töid samas valdkonnas

Valdkonnas "Üldehitus" on 33 aktiivset tööd

Korteri kapitaalremont

Asukoht: Harjumaa, Laagri
Aega jäänud: 22h 26 min
Tehtud pakkumisi: 4

5 tonni liiva esimese korruse aknast sisse tõsta (põranda aluse täiteks)

Asukoht: Jõgevamaa, Jõgeva
Aega jäänud: 1p 22h
Tehtud pakkumisi: 3

Vanemad teated:

Vaata kõiki

Sellel veebilehel kasutatakse küpsiseid. Kasutamist jätkates nõustute küpsiste kasutamisega.

Sulge
 
Minu pakkumine

Reeglid

Pakkumise kirjelduse väli on mõeldud pakkumise detailsemaks lahti kirjutamiseks. Pikema teksti mugavaks sisestamiseks klikkige kasti paremal ülaservas oleval ikoonil.
Pakkumist tehes on keelatud postitada enda kontaktandmeid (nimi, telefon, aadress jne). Me jälgime ja analüüsime pakkumisi, et vältida pettuseid ja reeglite rikkumisi.
Rikkumise puhul kasutajakonto blokeeritakse.