+ Lisa oma töö      

Otsid ehitajat "Ehitusekspertiis" valdkonnast?

Parima pakkumise ja teostaja leidmiseks lisa oma töö.

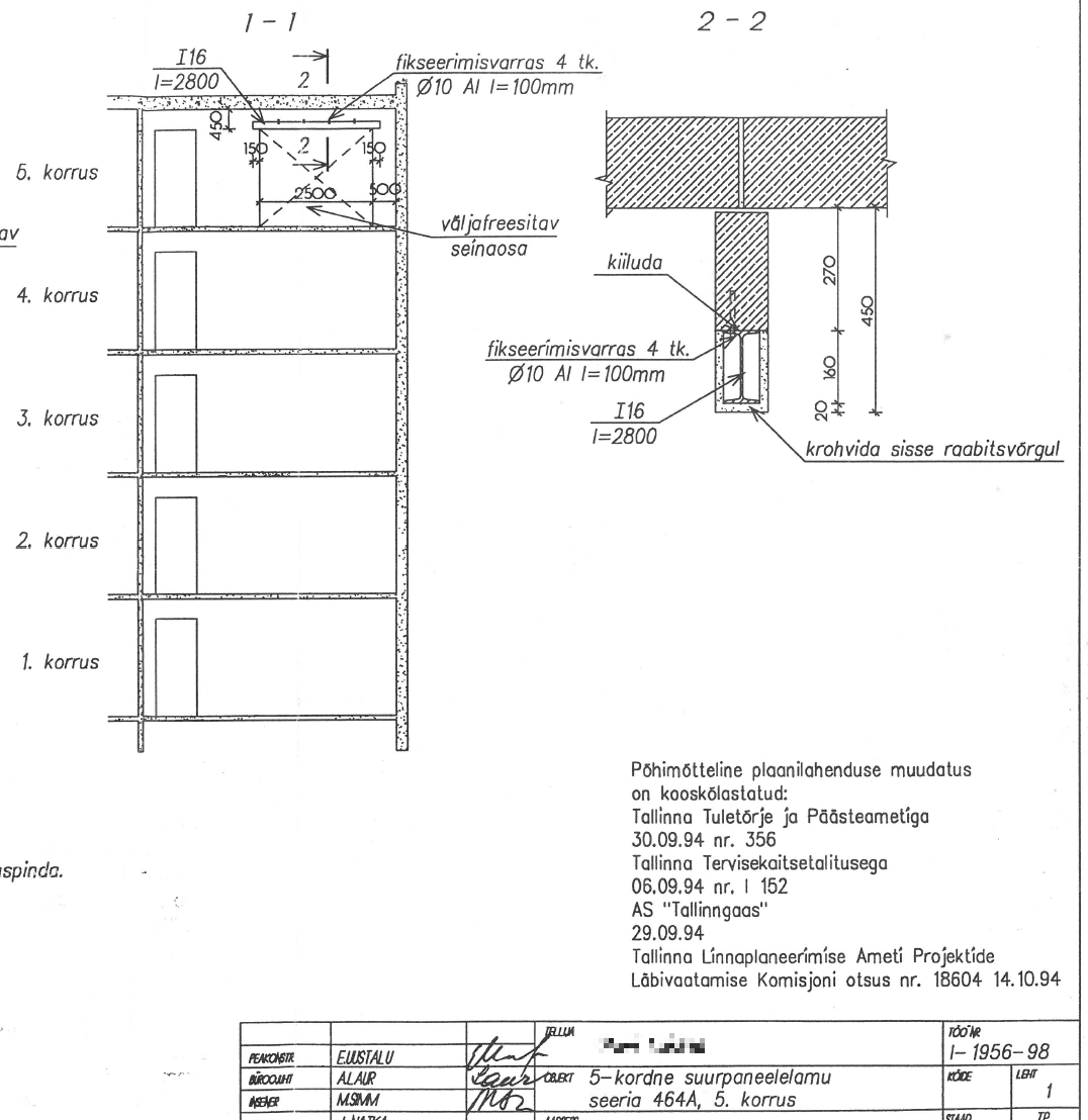
Korteri eemaldatud vaheseina ehitusaudit

ID 111904

1164 vaatamist

Prindi

  • check Pakkumiste tegemine
    kuni 02.04.2025
  • check Võitja valik kuni
    09.04.2025
  • 3 Töö teostamine
    ja hinnang
Hanke lõpp: K, 2. aprill, 2025
Maakond: Harjumaa
Linn: Tallinn
Tööde lõpp: R, 02. mai, 2025
Ehitusmaterjalid: Töö tegija poolt
Soovin pakkumisi: Summa kogu projektile

Töö sisu

EHR'i andmete uuendamiseks ilmnes, et olemasolev projekt ei ole piisav ja vaja teostada audit. Tallinna Linnaplaneerimise Ameti nõue allpool:

"Antud projektil puudub ametipoolne kooskõlastus, st selle kohta ei ole amet ehitusluba koos ehitusprojektiga kooskõlastanud ning antud ehitustööd on ehitamise ajal 22.07.1995-31.12.2002 kehtinud Planeerimis- ja ehitusseaduse (PES) mõttes omavolilised ehitustööd. Seega ümberehitustööde seadustamiseks tuleb ametile esitada läbi riikliku ehitisregistri kasutusteatis, mille koosseisu lisada audit.

Ehitise audit peab vastama EhS-s ning majandus ja taristuministri 12.10.2020 määruses nr 61 „Ehitise auditi tegemise kord“ sätestatud nõuetele. Auditist peab selguma millised ehitustöid on ja millal on teostatud ning sisaldama hinnangut korteri/ehitise nõuetele ja ohutusele vastavuse/mittevastavuse kohta. Ohutuse hindamisel tuleb eelkõige arvestada, et ehitis peab vastama mehaanilise vastupidavuse ja stabiilsuse, tuleohutuse, hügieeni, tervise, keskkonna ning kasutamise ohutuse nõuetele. Audit peab sisaldama korteri arhitektuurseid jooniseid (mõõdistusprojekti) ja seletuskirja. Esitatavatest dokumentidest peab selguma korteri/ehitise ohutus ja nõuetele vastavus või ümberehitamise vajadus (kas ja/või milliseid loa- või teavituskohustuslikke ehitustöid on vajalik teostada ehitise nõuetega vastavusse viimiseks).

Ehitise auditi teostamise pädevus on alates 01.01.2018 määratletud vastavasisulise kutsetunnistuse olemasoluga. Kutsestandard määratleb, et ehitiste ekspertiiside tegemise pädevus on isikul, kellele on omastatud volitatud ehitusinseneri tase 8 ja kellele on väljastatud ehitise auditeerimise pädevust tõendav kutsetunnistus ja/või tase 8 omanikujärelevalve kutsega volitatud ehitusinsener, kes on pädev koostama auditeid ehitistele, mille tehnilised andmed ei ületa tase 6 omanikujärelevalve tegemise vastavaid piirväärtuseid (selgitus on leitav EEL kodulehel http://www.ehitusinsener.ee/kohalikele-omavalitsustele/). Samuti võib ehitise auditit koostada diplomeeritud ehitusinsener tase 7 kutsetunnistuse omanik, kelle kutsetunnistus on väljastatud pärast 29.11.2018 ja kelle kutsetunnistusel on märgitud valitud ametialaks „ehitise auditi tegemine“. Audit peab vastama auditile esitatavad nõuetele lähtuvalt EhS § 18."

Pildid, video ja failid

Hanke korraldaja: eraisik ID88736

Pakkumised

Pakkumisi kokku: 3

Ettevõte Summa Käibemaks Lisatud Vestlus
Kasutaja ikoon ID86907
Pakkuja profiil Väike nool paremale
1 000€ KM lisandub KM lisandub 19.03.2025 Vestlus (0)
Kasutaja ikoon ID84172
Pakkuja profiil Väike nool paremale
750€ KM lisandub KM lisandub 20.03.2025 Vestlus (0)

Pakkumise kirjeldus:

Saan teile pakkuda Ehitise auditit mis hõlmab kogu Planeerimisameti nõuet. Audit koostatakse vastavalt määrusele ´´Ehitise auditi tegemise kord`` .
Lisa küsimustele vastan hea meelega.

Kasutaja ikoon ID44039
Pakkuja profiil Väike nool paremale
1 560€ Ei ole KMKR Ei ole KMKR 20.03.2025 Vestlus (0)

Pakkumise kirjeldus:

Esitan pakkumise ehituskonstruktsioonide osa auditi koostamiseks seonduvalt korterist eemaldatud vaheseinaga

Auditi koostamisel lähtutakse määrusest nr 116 „Ehitise auditi tegemise kord”.
Hinnang antakse nimetatud määruse §2 lõige (6) järgi:
1) visuaalkontroll, mille käigus kontrollitakse, kas ehitis vastab selle ehitise kohta
koostatud d ... Rohkem

Küsimused hanke korraldajale

Hanke korraldajale ei ole veel küsimusi esitatud.

Lisa küsimus

Lisa küsimus

Minu pakkumine

Reeglid

Pakkumise kirjelduse väli on mõeldud pakkumise detailsemaks lahti kirjutamiseks. Pikema teksti mugavaks sisestamiseks klikkige kasti paremal ülaservas oleval ikoonil.
Pakkumist tehes on keelatud postitada enda kontaktandmeid (nimi, telefon, aadress jne). Me jälgime ja analüüsime pakkumisi, et vältida pettuseid ja reeglite rikkumisi.
Rikkumise puhul kasutajakonto blokeeritakse.

 

Vanemad teated:

Vaata kõiki

Sellel veebilehel kasutatakse küpsiseid. Kasutamist jätkates nõustute küpsiste kasutamisega.

Sulge
 
Minu pakkumine

Reeglid

Pakkumise kirjelduse väli on mõeldud pakkumise detailsemaks lahti kirjutamiseks. Pikema teksti mugavaks sisestamiseks klikkige kasti paremal ülaservas oleval ikoonil.
Pakkumist tehes on keelatud postitada enda kontaktandmeid (nimi, telefon, aadress jne). Me jälgime ja analüüsime pakkumisi, et vältida pettuseid ja reeglite rikkumisi.
Rikkumise puhul kasutajakonto blokeeritakse.