+ Lisa oma töö      

Otsid ehitajat "Üldehitus" valdkonnast?

Parima pakkumise ja teostaja leidmiseks lisa oma töö.

Põrandate ehitus

ID 111843

807 vaatamist

Prindi

  • check Pakkumiste tegemine
    kuni 21.03.2025
  • check Võitja valik kuni
    28.03.2025
  • 3 Töö teostamine
    ja hinnang
Hanke lõpp: R, 21. märts, 2025
Maakond: Raplamaa
Muu asula: Märjamaa
Tööde lõpp: P, 31. august, 2025
Ehitusmaterjalid: Töö tellija poolt
Soovin pakkumisi: Summa kogu projektile

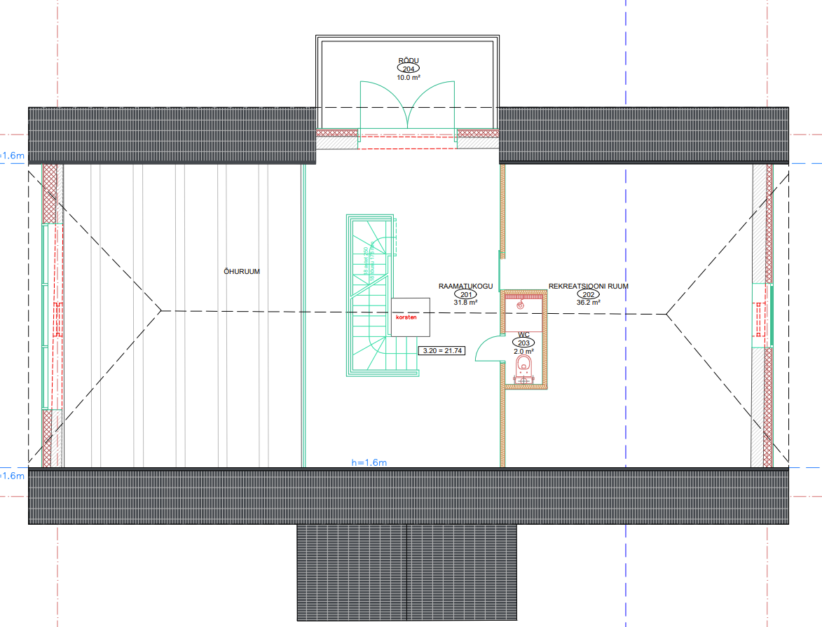
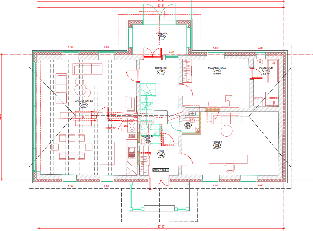
Töö sisu

Palun pakkumist:

Esimese ja teise korruse põrandate välja ehitamine kuni põrandakütte paigalduseni:

I korrus:
-täide
- Soojustus
- Betoon

II korrus:
- Müraisolatsioon ja kandev põrand

Pildid, video ja failid

Hanke korraldaja: eraisik ID87006

Pakkumised

Pakkumisi kokku: 0

Küsimused hanke korraldajale

Küsimus: private ID87958   19.03.2025 07:11
Tere, milline on hetke seisukord objektil? Ehk saaks mõne pildi?
Lugupidamisega

Teavita reeglite rikkumisest

Korraldaja vastus: 20.03.2025 18:12

Tere

Hetkel laudpõrand, põranda aluse seisukord teadmata. Võib arvestada, et nö tühi auk ja terviklikult uus täide.

Teavita reeglite rikkumisest

Lisa küsimus

Lisa küsimus

Minu pakkumine

Reeglid

Pakkumise kirjelduse väli on mõeldud pakkumise detailsemaks lahti kirjutamiseks. Pikema teksti mugavaks sisestamiseks klikkige kasti paremal ülaservas oleval ikoonil.
Pakkumist tehes on keelatud postitada enda kontaktandmeid (nimi, telefon, aadress jne). Me jälgime ja analüüsime pakkumisi, et vältida pettuseid ja reeglite rikkumisi.
Rikkumise puhul kasutajakonto blokeeritakse.

 

Teisi töid samas valdkonnas

Valdkonnas "Üldehitus" on 33 aktiivset tööd

Korteri kapitaalremont

Asukoht: Harjumaa, Laagri
Aega jäänud: 20h 1 min
Tehtud pakkumisi: 4

5 tonni liiva esimese korruse aknast sisse tõsta (põranda aluse täiteks)

Asukoht: Jõgevamaa, Jõgeva
Aega jäänud: 1p 20h
Tehtud pakkumisi: 3

Vanemad teated:

Vaata kõiki

Sellel veebilehel kasutatakse küpsiseid. Kasutamist jätkates nõustute küpsiste kasutamisega.

Sulge
 
Minu pakkumine

Reeglid

Pakkumise kirjelduse väli on mõeldud pakkumise detailsemaks lahti kirjutamiseks. Pikema teksti mugavaks sisestamiseks klikkige kasti paremal ülaservas oleval ikoonil.
Pakkumist tehes on keelatud postitada enda kontaktandmeid (nimi, telefon, aadress jne). Me jälgime ja analüüsime pakkumisi, et vältida pettuseid ja reeglite rikkumisi.
Rikkumise puhul kasutajakonto blokeeritakse.