+ Lisa oma töö      

Otsid ehitajat "Siseviimistlustööd" valdkonnast?

Parima pakkumise ja teostaja leidmiseks lisa oma töö.

Maja maalritööd

ID 111775

1046 vaatamist

Prindi

  • check Pakkumiste tegemine
    kuni 24.03.2025
  • check Võitja valik kuni
    31.03.2025
  • 3 Töö teostamine
    ja hinnang
Hanke lõpp: E, 24. märts, 2025
Maakond: Läänemaa
Muu asula: Turvalepa
Tööde lõpp: Kokkuleppel
Ehitusmaterjalid: Töö tegija poolt
Soovin pakkumisi: Summa kogu projektile

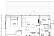
Töö sisu

Maja siseseinte maalritööd. Ainult seinad, lagesid pole vaja teha, need puidust.Sisaldab ka osaliselt Bauroc seinasid. Maja netopind ~57m2 . Täpsemaks pakkumise koostamiseks soovitan kohale tulla.

Pildid, video ja failid

Hanke korraldaja: eraisik ID70781

Pakkumised

Pakkumisi kokku: 6

Ettevõte Summa Käibemaks Lisatud Vestlus
Kasutaja ikoon ID72794
Pakkuja profiil Väike nool paremale
4 200€ KM lisandub KM lisandub 17.03.2025 Vestlus (0)

Pakkumise kirjeldus:

Tere

Pakkumine töödele.
Kõike vajalikku tööde teostamiseks. Ka materjale.
Hinna sees ei ole arvestatud struktuurseid pindasid ja efektvärve. Need kokkuleppel ka vastavalt viimistluse keerukusele.

Töödega saan alustada mai viimane nädal.

Arve korral lisandub hinnale käibemaks.

Parimat!

Kasutaja ikoon ID85299
Pakkuja profiil Väike nool paremale
4 788€ Ei ole KMKR Ei ole KMKR 17.03.2025 Vestlus (0)
Kasutaja ikoon ID52542
Pakkuja profiil Väike nool paremale
3 325€ Ei ole KMKR Ei ole KMKR 18.03.2025 Vestlus (0)

Pakkumise kirjeldus:

Tere, pakkumine tehtud järnevalt:
eeldusel et mahtu 171 ja 30 % krohvi lisaks.

Kasutaja ikoon ID50594
Pakkuja profiil Väike nool paremale
2 280€ KM lisandub KM lisandub 22.03.2025 Vestlus (0)

Pakkumise kirjeldus:

Tere,

Pakkumine vastavalt hanke kirjeldusele.

Lgp. Taivo

Kasutaja ikoon ID72055
Pakkuja profiil Väike nool paremale
4 550€ Sisaldab KM Sisaldab KM 24.03.2025 Vestlus (0)

Pakkumise kirjeldus:

Tere!
Pakkumises arvestatud olemasolevate joonise mõõtudega, hea meelega vaataks muidugi oma silmaga üle kuid kontaktandmeid ei ole lubatud jagada. Hinnas kõik materjalid viimistlustöödeks, kuni lõppviimistluseni.
Lugupidamisega,
A.

Kasutaja ikoon ID8633
Pakkuja profiil Väike nool paremale
4 900€ KM lisandub KM lisandub 24.03.2025 Vestlus (0)

Küsimused hanke korraldajale

Küsimus: private ID54654   18.03.2025 07:10
Tere. Kas Bauroc seinad juba krohvitud või vaja ka krohvida? R.

Teavita reeglite rikkumisest

Korraldaja vastus: 18.03.2025 07:14

Vaja ka krohvida

Teavita reeglite rikkumisest

Küsimus: private ID54654   18.03.2025 07:22
need ju erinevad tööd ja hinnad. kas bauroc vaid välisseinad?

Teavita reeglite rikkumisest

Korraldaja vastus: 18.03.2025 09:13

Jah, ainult välisseinad Baueoc. Siseseinad metallkarkass, vill, osb, kips. Tehnoruum ja duširuumi pole vaja arvestada.

Teavita reeglite rikkumisest

Küsimus: private ID71043   18.03.2025 09:01
Tere
Kui palju m2 on bauroc ja kips seinu ?
Edu soovides

Teavita reeglite rikkumisest

Korraldaja vastus:
Hanke korraldaja ei ole küsimusele veel vastanud

Küsimus: private ID71043   18.03.2025 10:43
Millal saaks kohale tulla ?

Teavita reeglite rikkumisest

Korraldaja vastus:
Hanke korraldaja ei ole küsimusele veel vastanud

Lisa küsimus

Lisa küsimus

Minu pakkumine

Reeglid

Pakkumise kirjelduse väli on mõeldud pakkumise detailsemaks lahti kirjutamiseks. Pikema teksti mugavaks sisestamiseks klikkige kasti paremal ülaservas oleval ikoonil.
Pakkumist tehes on keelatud postitada enda kontaktandmeid (nimi, telefon, aadress jne). Me jälgime ja analüüsime pakkumisi, et vältida pettuseid ja reeglite rikkumisi.
Rikkumise puhul kasutajakonto blokeeritakse.

 

Teisi töid samas valdkonnas

Valdkonnas "Siseviimistlustööd" on 26 aktiivset tööd

Korteri remont

Asukoht: Harjumaa, Muraste
Aega jäänud: 2p 9h
Tehtud pakkumisi: 15

no-img Pilt puudub

Laminaatparketi paigaldus

Asukoht: Harjumaa, Tallinn
Aega jäänud: 4p 9h
Tehtud pakkumisi: 8

Vanemad teated:

Vaata kõiki

Sellel veebilehel kasutatakse küpsiseid. Kasutamist jätkates nõustute küpsiste kasutamisega.

Sulge
 
Minu pakkumine

Reeglid

Pakkumise kirjelduse väli on mõeldud pakkumise detailsemaks lahti kirjutamiseks. Pikema teksti mugavaks sisestamiseks klikkige kasti paremal ülaservas oleval ikoonil.
Pakkumist tehes on keelatud postitada enda kontaktandmeid (nimi, telefon, aadress jne). Me jälgime ja analüüsime pakkumisi, et vältida pettuseid ja reeglite rikkumisi.
Rikkumise puhul kasutajakonto blokeeritakse.