+ Lisa oma töö      

Otsid ehitajat "Üldehitus" valdkonnast?

Parima pakkumise ja teostaja leidmiseks lisa oma töö.

Maasoojuspumba paigaldus

ID 111643

812 vaatamist

Prindi

  • check Pakkumiste tegemine
    kuni 17.03.2025
  • check Võitja valik kuni
    24.03.2025
  • 3 Töö teostamine
    ja hinnang
Hanke lõpp: E, 17. märts, 2025
Maakond: Raplamaa
Tööde lõpp: P, 31. august, 2025
Ehitusmaterjalid: Töö tegija poolt
Soovin pakkumisi: Summa kogu projektile

Töö sisu

Soovin terviklikku pakkumist:
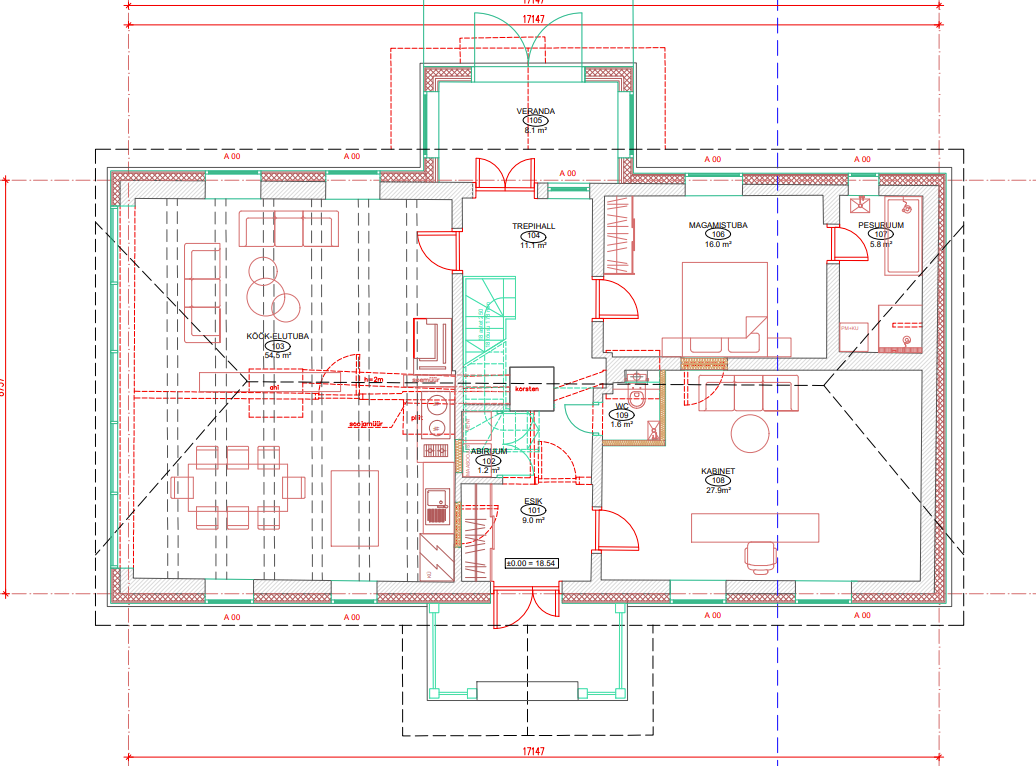
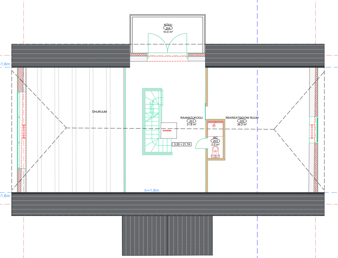
- Maasoojuse terviklik paigaldus (I korrus ja II korruse pool korrust) - hoovis on piisavalt ruumi kontuuri jaoks.
- Terviklikud põranda tööd va. lõppviimistlus - uue põranda tegemine - soojustusest kuni põrandakatteni
- Vundamendi taaste ja soojustamine
- Alumise palgiringi vahetus
- Põranda alt uus veetrassi vedamine - veesõlme ehitamine
- II korruse põranda välja ehitamine
- tööde teostamiseks vajalikud projektid

Pildid, video ja failid

Hanke korraldaja: eraisik ID87006

Pakkumised

Pakkumisi kokku: 1

Ettevõte Summa Käibemaks Lisatud Vestlus
Kasutaja ikoon ID1058
Pakkuja profiil Väike nool paremale
22 000€ KM lisandub KM lisandub 15.03.2025 Vestlus (2)

Pakkumise kirjeldus:

Tere , pakkumine maakütte kontuurid 2x300 m ja pump koos kõige vajalikuga. Täpsemalt vajadusel vestluses .

Küsimused hanke korraldajale

Hanke korraldajale ei ole veel küsimusi esitatud.

Lisa küsimus

Lisa küsimus

Minu pakkumine

Reeglid

Pakkumise kirjelduse väli on mõeldud pakkumise detailsemaks lahti kirjutamiseks. Pikema teksti mugavaks sisestamiseks klikkige kasti paremal ülaservas oleval ikoonil.
Pakkumist tehes on keelatud postitada enda kontaktandmeid (nimi, telefon, aadress jne). Me jälgime ja analüüsime pakkumisi, et vältida pettuseid ja reeglite rikkumisi.
Rikkumise puhul kasutajakonto blokeeritakse.

 

Teisi töid samas valdkonnas

Valdkonnas "Üldehitus" on 46 aktiivset tööd

no-img Pilt puudub

Keldri bokside ehitus

Asukoht: Tartumaa, Tartu
Aega jäänud: 12h 14 min
Tehtud pakkumisi: 6

no-img Pilt puudub

Terassi ehitamine 15m2

Asukoht: Harjumaa
Aega jäänud: 1p 12h
Tehtud pakkumisi: 5

Vanemad teated:

Vaata kõiki

Sellel veebilehel kasutatakse küpsiseid. Kasutamist jätkates nõustute küpsiste kasutamisega.

Sulge
 
Minu pakkumine

Reeglid

Pakkumise kirjelduse väli on mõeldud pakkumise detailsemaks lahti kirjutamiseks. Pikema teksti mugavaks sisestamiseks klikkige kasti paremal ülaservas oleval ikoonil.
Pakkumist tehes on keelatud postitada enda kontaktandmeid (nimi, telefon, aadress jne). Me jälgime ja analüüsime pakkumisi, et vältida pettuseid ja reeglite rikkumisi.
Rikkumise puhul kasutajakonto blokeeritakse.