+ Lisa oma töö      

Otsid ehitajat "Fassaaditööd" valdkonnast?

Parima pakkumise ja teostaja leidmiseks lisa oma töö.

Välisvoodri vahetus ja soojustuse paigaldamine

ID 110365

1801 vaatamist

Prindi

  • check Pakkumiste tegemine
    kuni 03.03.2025
  • check Võitja valik kuni
    10.03.2025
  • 3 Töö teostamine
    ja hinnang
Hanke lõpp: E, 3. märts, 2025
Maakond: Harjumaa
Muu asula: Muuga
Tööde lõpp: L, 31. mai, 2025
Ehitusmaterjalid: Töö tegija poolt
Soovin pakkumisi: Summa kogu projektile

Töö sisu

Muugal asuva elamu välisvoodri eemaldamine, täiendava soojustuse paigaldamine ja uue välisvoodri paigaldamine.

Olemasolev välisvooder eemaldada. Voodrilauad ja eemaldatud puitmaterjal ladustada krundil selleks ettenähtud kohta.

Paigaldada soojustus - vahtpolüstürool paksus 50 mm, distantsliistud, tuuletõke ja muud vajalikud tööd nagu räästaalused, tuulekastid.

Paigaldada välisvoodrilaud UYV 21x120 mm (krunditud, 1x värvitud Teknos 7653 kollane). Paigaldada uued aknapõsed ja aknaplekid arvestades olemasolevate värvidega.

Pakkuja peab tagama et tal on olemas või saab kasutada tellinguid (tõstukid kui vaja) ja muid vajalikke tööriistu. Pakkuja peab tagama tööde ohutuse kogu ehituse ajal. Samuti peab pakkuja tagama materjali kohaletoomise ja ladustamise.

Pakkuja esitab pakkumise kogu tööle seal hulgas eraldi ära näidates voodrilaua, muu puitmaterjali ja soojustusmaterjali maksumuse kokku.

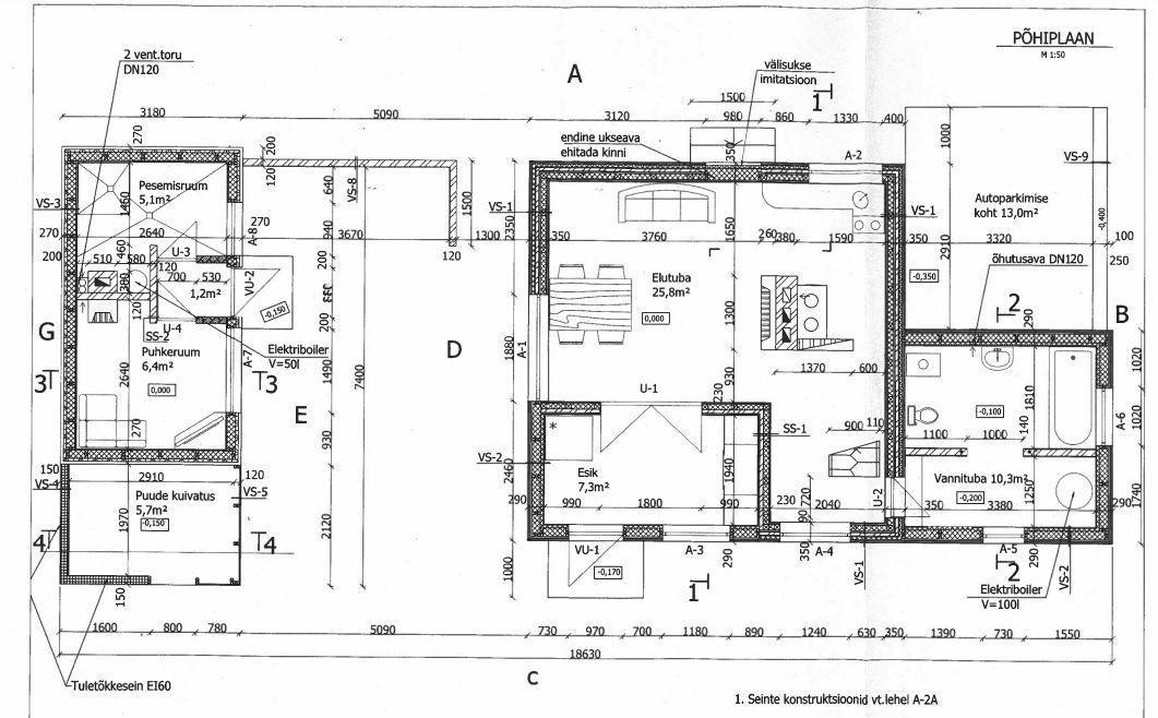
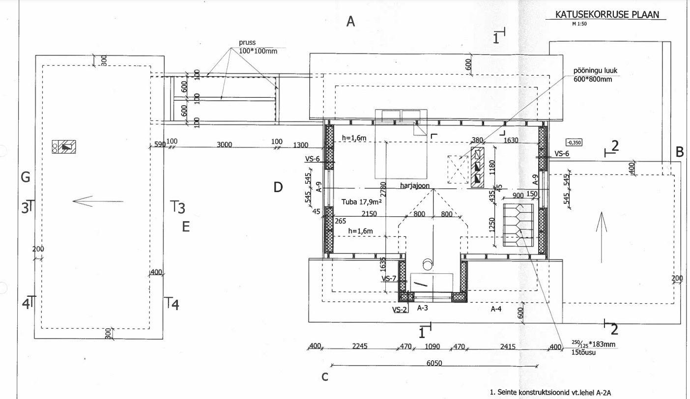
NB! Juuresolevad projekti joonised on ainult mahtude arvutamiseks!

Pildid, video ja failid

Hanke korraldaja: eraisik ID57351

Pakkumised

Pakkumisi kokku: 9

Ettevõte Summa Käibemaks Lisatud Vestlus
Kasutaja ikoon ID47901
Pakkuja profiil Väike nool paremale
35 000€ Ei ole KMKR Ei ole KMKR 18.02.2025 Vestlus (6)

Pakkumise kirjeldus:

Pakkumine soovitud tööle,km ei lisandu.
1.Krunditud peensaetud voodrilauf ca 8000€
2.Roovitus,tuulekasti materjal ca 6000€
3.Soojustus ca 5000€
4.Muud vajalikud vahendid elleks tööks ca7000€
5. Töö ,transport , jm ettenägematu kulud ca 9000€

Kasutaja ikoon ID85299
Pakkuja profiil Väike nool paremale
8 424€ Ikoon kell Ei ole KMKR Ei ole KMKR 18.02.2025 Vestlus (0)

Pakkumise kirjeldus:

töö --- 8424 eurot
materjal -- 8953

Kasutaja ikoon ID72026
Pakkuja profiil Väike nool paremale
18 310€ KM lisandub KM lisandub 18.02.2025 Vestlus (0)

Pakkumise kirjeldus:

Tere!

Pakkumine koostatud vastavalt Teie soovile.
Tuuletõkkeplaadiks on arvestatud Isover VKL.
Materjali maksumus on ca 50% kogumaksumusest.

Lisaküsimused saatke palun meile e-mailile, seal saame kokku leppida ka maksetingimustes.


Tervitades,

Kristo.

Kasutaja ikoon ID83373
Pakkuja profiil Väike nool paremale
12 000€ Sisaldab KM Sisaldab KM 23.02.2025 Vestlus (0)

Pakkumise kirjeldus:

Tere

Oleme spetsialiseerunud meeskond, mis pakub terviklahendusi lammutustöödest, ehituse ja viimistluseni.
Meie prioriteediks on kvaliteet, sujuv protsess ja klientide täielik rahulolu.
Pakume teenuseid, mis tagavad tulemuse, millele saab loota.

Meie pakkumine keskendub töödele, pakkudes selget ja konkurentsivõimelist tööhinda ilma komprom ... Rohkem

Kasutaja ikoon ID52293
Pakkuja profiil Väike nool paremale
30 000€ Sisaldab KM Sisaldab KM 03.03.2025 Vestlus (0)

Pakkumise kirjeldus:

Tere
Juhul kui soovite meid valida hanke võitjaks peaks eelnevalt kokku leppima makse tingimustes
Tänud

Kasutaja ikoon ID59528
Pakkuja profiil Väike nool paremale
15 990€ KM lisandub KM lisandub 03.03.2025 Vestlus (0)

Pakkumise kirjeldus:

Tere,

Pakkumine tehtud vastavalt Hankes kirjeldatud töödele. Täpsema hinnakalkulatsiooni saame saata vestluses.
Meie profiili alt näete meie poolt tehtud töid ja klientide poolt antud hinnanguid
Ettevōttel olemas MTR registreering!

Parimat,

Erik

Kasutaja ikoon ID86909
Pakkuja profiil Väike nool paremale
29 700€ KM lisandub KM lisandub 03.03.2025 Vestlus (0)
Kasutaja ikoon ID84208
Pakkuja profiil Väike nool paremale
19 320€ KM lisandub KM lisandub 03.03.2025 Vestlus (0)

Pakkumise kirjeldus:

Tere
Meiepoolne esialgne pakkumine vastavalt hankes kirjeldatule.
Ennem töödega alustamist sõlmitakse omavaheline leping ning pannakse paika tööde teostamise aeg. Lisaküsimuste korral võite julgelt kirjutada.
Edukat hanget

Kasutaja ikoon ID8633
Pakkuja profiil Väike nool paremale
19 800€ KM lisandub KM lisandub 03.03.2025 Vestlus (0)

Küsimused hanke korraldajale

Küsimus: private ID85299   17.02.2025 12:59
Tere!

Joonistel puuduvad fassaadi mõõtmed.

Teavita reeglite rikkumisest

Korraldaja vastus: 17.02.2025 17:01

Lisatud põhiplaan ja katusekorruse plaan koos mõõtmetega.

Teavita reeglite rikkumisest

Küsimus: private ID79331   17.02.2025 14:25
Kas saaks fassaadi mõõtmed, et pakkumist teha?

Teavita reeglite rikkumisest

Korraldaja vastus: 17.02.2025 17:01

Lisatud põhiplaan ja katusekorruse plaan koos mõõtmetega.

Teavita reeglite rikkumisest

Küsimus: private ID54457   17.02.2025 15:30
Tere, sooviks põrandaplaani ka!

Teavita reeglite rikkumisest

Korraldaja vastus: 17.02.2025 17:01

Lisatud põhiplaan ja katusekorruse plaan koos mõõtmetega.

Teavita reeglite rikkumisest

Küsimus: private ID80792   18.02.2025 12:19
Tere. EPS ja tuuletõke koos? Kivivill ei peaks minema? 50ne peno ja tuuletõke pole üldse hea kooslus, kondents teeb oma töö varsti, alles tegin ümber sellist, teha pakkumine ja töö ära et elab 2 aastat garantii ära kuidagi ei ole minu jaoks. Edu pakkujatele.

Teavita reeglite rikkumisest

Korraldaja vastus: 18.02.2025 16:01

Kui mõned aastakümned tagasi seda maja ehitatud sai siis sai seintes kasutatud nii vahtpolüstürooli kui Rockwooli villa see mis käepärast oli. Polüstüroolplaadid olid tuulekindlamad. Rockwool puhus läbi. Seintes pole külmasildu tekkinud, ju sai piisavalt soojustatud juba siis. Seda enam nüüd kui 50 mm veel peale tuleb.

Teavita reeglite rikkumisest

Küsimus: private ID79331   18.02.2025 14:47
Kas tuulekasti laudis on soov teha punnlauaga või tuulutusega (putukavõrk ja näiteks tolline laud 4-6mm vahedega)??

Teavita reeglite rikkumisest

Korraldaja vastus: 18.02.2025 16:01

Punnlaud peaks olema OK.

Teavita reeglite rikkumisest

Küsimus: private ID30368   19.02.2025 16:10
Tere,

Olen ka seda meelt, et lisada veel sinna penot ei ole hea mõte, kuna tõenäolisus seinas liigniiskusele ja hallitusele on päris kindel, erti veel kui peaks puuduma ka korralik aurutõke seespool.
Palju kindlam lahendus oleks mineraalvill ja korralik tuuletõke.

Lgp.K

Teavita reeglite rikkumisest

Korraldaja vastus: 20.02.2025 09:33

Uurime natuke asja.

Teavita reeglite rikkumisest

Lisa küsimus

Lisa küsimus

Minu pakkumine

Reeglid

Pakkumise kirjelduse väli on mõeldud pakkumise detailsemaks lahti kirjutamiseks. Pikema teksti mugavaks sisestamiseks klikkige kasti paremal ülaservas oleval ikoonil.
Pakkumist tehes on keelatud postitada enda kontaktandmeid (nimi, telefon, aadress jne). Me jälgime ja analüüsime pakkumisi, et vältida pettuseid ja reeglite rikkumisi.
Rikkumise puhul kasutajakonto blokeeritakse.

 

Teisi töid samas valdkonnas

Valdkonnas "Fassaaditööd" on 14 aktiivset tööd

Fassaadi renoveerimine

Asukoht: Harjumaa, Viimsi
Aega jäänud: 1h 41 min
Tehtud pakkumisi: 3

Akende ja viilude parandus ja värvimine

Asukoht: Valgamaa, Valga
Aega jäänud: 1p 1h
Tehtud pakkumisi: 3

Vanemad teated:

Vaata kõiki

Sellel veebilehel kasutatakse küpsiseid. Kasutamist jätkates nõustute küpsiste kasutamisega.

Sulge
 
Minu pakkumine

Reeglid

Pakkumise kirjelduse väli on mõeldud pakkumise detailsemaks lahti kirjutamiseks. Pikema teksti mugavaks sisestamiseks klikkige kasti paremal ülaservas oleval ikoonil.
Pakkumist tehes on keelatud postitada enda kontaktandmeid (nimi, telefon, aadress jne). Me jälgime ja analüüsime pakkumisi, et vältida pettuseid ja reeglite rikkumisi.
Rikkumise puhul kasutajakonto blokeeritakse.