+ Lisa oma töö      

Otsid ehitajat "Ventilatsioonitööd" valdkonnast?

Parima pakkumise ja teostaja leidmiseks lisa oma töö.

Soojustagastusega ventilatsioon valmis eramusse

ID 110361

1413 vaatamist

Prindi

  • check Pakkumiste tegemine
    kuni 03.03.2025
  • check Võitja valik kuni
    10.03.2025
  • 3 Töö teostamine
    ja hinnang
Hanke lõpp: E, 3. märts, 2025
Maakond: Tartumaa
Linn: Tartu
Tööde lõpp: Kokkuleppel
Ehitusmaterjalid: Töö tellija poolt
Soovin pakkumisi: Summa kogu projektile

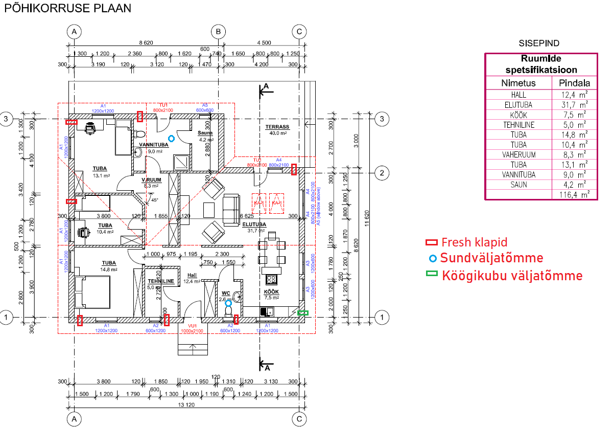
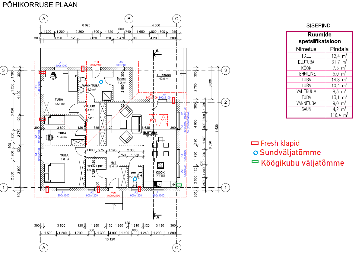
Töö sisu

Soov oleks täislahenduse hinnapakkumine - projekt, tööde teostamine ja garantii.
Hetkel majas ventilatsioon loomulik läbi fresh klappide. Soov asendada see tsentraalse soojustagastusega ventilatsiooniga. Maja on valmis ja vahelae peal on puistevill. Joonisel toodud hetke sundväljatõmbed ja fresh klapid.

Pildid, video ja failid

Hanke korraldaja: eraisik ID87174

Pakkumised

Pakkumisi kokku: 2

Ettevõte Summa Käibemaks Lisatud Vestlus
Kasutaja ikoon ID51879
Pakkuja profiil Väike nool paremale
11 725€ KM lisandub KM lisandub 19.02.2025 Vestlus (0)

Pakkumise kirjeldus:

pakkumine sisaldab:
-ventilatsioonijoonis 1k eramu 450+km.
- Ventilatsiooniseade AIROBOT S2 ERV PRO +juhtpult 3300+km
-ventilatsioonimaterjalid,
isolatsioonimaterjalid, plafoonid, restid, mürasummutid kvdpx, kinnitusvahendid, abimaterjalid: 3600+km
-paigaldustööd, isolatsioonitööd 4000+km
-mõõdistamine seadistamine dokumentatsioon. 375+km

Kasutaja ikoon ID52325
Pakkuja profiil Väike nool paremale
9 093,3€ KM lisandub KM lisandub 19.02.2025 Vestlus (0)

Pakkumise kirjeldus:

Soojustagastusega ventilatsioonisüsteemi paigaldus

Ventilatsioonimaterjalid: 3085.5€ +km

Vent seade Domekt R 300 V C8: 2150€ +km

ETSNORD RVD 160 kombirest: 124.80€ +km

Pigaldustööd, freesimine, isoleerimine: 2560 € +km

Projekt: 400 € +km

Masina paigaldus ja seadistus: 250 € +km

Transpordi ja tarne kulu: 300 € +km

Puut ... Rohkem

Küsimused hanke korraldajale

Hanke korraldajale ei ole veel küsimusi esitatud.

Lisa küsimus

Lisa küsimus

Minu pakkumine

Reeglid

Pakkumise kirjelduse väli on mõeldud pakkumise detailsemaks lahti kirjutamiseks. Pikema teksti mugavaks sisestamiseks klikkige kasti paremal ülaservas oleval ikoonil.
Pakkumist tehes on keelatud postitada enda kontaktandmeid (nimi, telefon, aadress jne). Me jälgime ja analüüsime pakkumisi, et vältida pettuseid ja reeglite rikkumisi.
Rikkumise puhul kasutajakonto blokeeritakse.

 

Teisi töid samas valdkonnas

Valdkonnas "Ventilatsioonitööd" on 3 aktiivset tööd

Eramaja ventilatsioonitööd

Asukoht: Tartumaa, Soinaste
Aega jäänud: 4p 12h
Tehtud pakkumisi: 1

no-img Pilt puudub

Ventilatsiooni paigaldamine

Asukoht: Tartumaa, Tartu
Aega jäänud: 1p 12h
Tehtud pakkumisi: 0

Vanemad teated:

Vaata kõiki

Sellel veebilehel kasutatakse küpsiseid. Kasutamist jätkates nõustute küpsiste kasutamisega.

Sulge
 
Minu pakkumine

Reeglid

Pakkumise kirjelduse väli on mõeldud pakkumise detailsemaks lahti kirjutamiseks. Pikema teksti mugavaks sisestamiseks klikkige kasti paremal ülaservas oleval ikoonil.
Pakkumist tehes on keelatud postitada enda kontaktandmeid (nimi, telefon, aadress jne). Me jälgime ja analüüsime pakkumisi, et vältida pettuseid ja reeglite rikkumisi.
Rikkumise puhul kasutajakonto blokeeritakse.