+ Lisa oma töö      

Otsid ehitajat "Trepiehitus" valdkonnast?

Parima pakkumise ja teostaja leidmiseks lisa oma töö.

Hange on lõppenud!

Võitjaks osutus kasutaja ID 71759

Korraldaja hinnang tehtud tööle

3.7
08.07.2025
Töökiirus: 12345
Kvaliteet: 12345
Hind: 12345

Trepp on iseenesest korralikult tehtud ja enam-vähem kiirelt paigaldatud. Kahjuks pole aga üks valesse mõõtu lõigatud detail siiani lahendust saanud ja arvatavasti ei saagi. Samuti oli kokku lepitud lakitud trepp, aga tuli õlitatuna. Peale tööde lõppu pidin paigalduse käigus tekkinud sodi elamisest ise kokku korjama :-( - Tarmo K.

Trepi ehitus

ID 110324

1224 vaatamist

Prindi

  • check Pakkumiste tegemine
    kuni 20.02.2025
  • check Võitja valik kuni
    20.02.2025
  • 3 Töö teostamine
    ja hinnang
Hanke lõpp: N, 20. veebruar, 2025
Maakond: Harjumaa
Muu asula: Vanamõisa
Tööde lõpp: Kokkuleppel
Ehitusmaterjalid: Töö tegija poolt
Soovin pakkumisi: Summa kogu projektile

Töö sisu

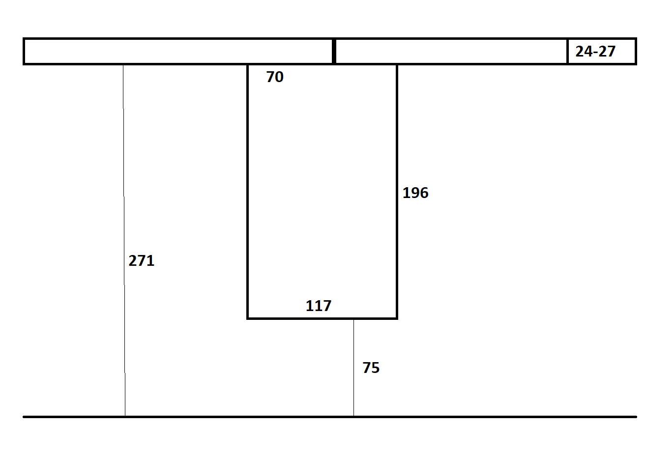
Nagu pildilt näha, siis trepp hävis tulekahjus.
Tänaseks on taastamine jõudnud sinnamaani, et oleks vaja uut treppi.
Ise mõtlesin, et uus võiks tulla metallkonstruktsioonil nn ühetala trepp puitastmetega. Võib muidugi pakkuda ka sarnast puidust treppi.
Piirdeid ei ole vaja.
Esimese ja teise korruse põrandapindade vahe on umbes 3 meetrit ning poolkorruse vahemade on 0,75 meetri kõrgusel. Ruumiga kahjuks väga priisata ei ole, seega trepi ülemine osa tuleb väga järsk.
Joonisel olevad mõõdud vajavad tegijal üle mõõtmist, aga hinna kalkuleerimiseks neist vast piisab.

Pildid, video ja failid

Hanke korraldaja: eraisik ID47702

Pakkumised

Pakkumisi kokku: 2

Ettevõte Summa Käibemaks Lisatud Vestlus
Kasutaja ikoon ID46881
Pakkuja profiil Väike nool paremale
5 300€ Sisaldab KM Sisaldab KM 16.02.2025 Vestlus (0)
Kasutaja ikoon ID71759
Pakkuja profiil Väike nool paremale
1 700€ Sisaldab KM Sisaldab KM 17.02.2025 Vestlus (8)

Pakkumise kirjeldus:

Tere.See oleks siis puidust trepi hind koos paigaldusega ja viimistlusega

Küsimused hanke korraldajale

Hanke korraldajale ei ole veel küsimusi esitatud.

Lisa küsimus

Lisa küsimus

Minu pakkumine

Reeglid

Pakkumise kirjelduse väli on mõeldud pakkumise detailsemaks lahti kirjutamiseks. Pikema teksti mugavaks sisestamiseks klikkige kasti paremal ülaservas oleval ikoonil.
Pakkumist tehes on keelatud postitada enda kontaktandmeid (nimi, telefon, aadress jne). Me jälgime ja analüüsime pakkumisi, et vältida pettuseid ja reeglite rikkumisi.
Rikkumise puhul kasutajakonto blokeeritakse.

 

Teisi töid samas valdkonnas

Valdkonnas "Trepiehitus" on 3 aktiivset tööd

Välistrepi parandus

Asukoht: Harjumaa, Saku
Aega jäänud: 2p 20h
Tehtud pakkumisi: 1

Trepi käsipuude ja piirete tegemine

Asukoht: Harjumaa, Tallinn
Aega jäänud: 20h 56 min
Tehtud pakkumisi: 0

Vanemad teated:

Vaata kõiki

Sellel veebilehel kasutatakse küpsiseid. Kasutamist jätkates nõustute küpsiste kasutamisega.

Sulge
 
Minu pakkumine

Reeglid

Pakkumise kirjelduse väli on mõeldud pakkumise detailsemaks lahti kirjutamiseks. Pikema teksti mugavaks sisestamiseks klikkige kasti paremal ülaservas oleval ikoonil.
Pakkumist tehes on keelatud postitada enda kontaktandmeid (nimi, telefon, aadress jne). Me jälgime ja analüüsime pakkumisi, et vältida pettuseid ja reeglite rikkumisi.
Rikkumise puhul kasutajakonto blokeeritakse.