+ Lisa oma töö      

Otsid ehitajat "Ehituse peatöövõtt" valdkonnast?

Parima pakkumise ja teostaja leidmiseks lisa oma töö.

Juurdeehitis

ID 110257

1125 vaatamist

Prindi

  • check Pakkumiste tegemine
    kuni 20.02.2025
  • check Võitja valik kuni
    27.02.2025
  • 3 Töö teostamine
    ja hinnang
Hanke lõpp: N, 20. veebruar, 2025
Maakond: Põlvamaa
Linn: Põlva
Tööde lõpp: L, 31. mai, 2025
Ehitusmaterjalid: Töö tegija poolt
Soovin pakkumisi: Summa kogu projektile

Töö sisu

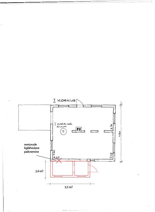
Juurdeehitise vajadus on tingitud WC ja vannitoa puudumisest. Joonistel punasega joonistatud ligikaudne idee ja mõõdud. Ligikaudne pindala 13 m2. (Võib vajadusel mõõtmeid muuta kuid peab jääma alla 20 m2. ) Juurdeehitisel võiks olla vahe sein. Lisada välisuks, trepp, ja kaks väikest akent. Maja ise ehitatud tuhaplokkidest ja vundament betoonist (materjal võiks olla sarnane, nt fiboplokk vms). Kuna teisele korrusele on planeeritud rõdu, siis katus võiks olla tasapinnaline, kuid rõdu piirded jms pole praegusel hetkel vajalik. Soovime hinda ilma siseviimistluseta.

Pildid, video ja failid

Hanke korraldaja: eraisik ID87965

Pakkumised

Pakkumisi kokku: 2

Ettevõte Summa Käibemaks Lisatud Vestlus
Kasutaja ikoon ID87234
Pakkuja profiil Väike nool paremale
13 517€ Ei ole KMKR Ei ole KMKR 16.02.2025 Vestlus (0)

Pakkumise kirjeldus:

Tere.
Pakkumine tehtud vastavalt teie soovile ja info põhjal.

Lgp Sulev.

Kasutaja ikoon ID72729
Pakkuja profiil Väike nool paremale
6 300€ KM lisandub KM lisandub 20.02.2025 Vestlus (0)

Küsimused hanke korraldajale

Küsimus: private ID87234   14.02.2025 10:34
Tere.
Sooviks rohkem infot juurdeehituse kohta? Mida ja kui palju m2 on?

Teavita reeglite rikkumisest

Korraldaja vastus: 16.02.2025 19:45

Info sai nüüd juurde lisatud. Ligikaudu 13 m2

Teavita reeglite rikkumisest

Küsimus: private ID87867   14.02.2025 14:04
Tere päevast ma sooviksin teada saada et mis läheb juurde ehituseks, mitu m²

Teavita reeglite rikkumisest

Korraldaja vastus: 16.02.2025 19:46

Info sai nüüd juurde lisatud. Ligikaudu 13 m2

Teavita reeglite rikkumisest

Küsimus: private ID52450   15.02.2025 09:24
Hange.ee võiks sellised nn hanked eos kustutada, kus ei ole infot ega midagi.

Teavita reeglite rikkumisest

Korraldaja vastus: 16.02.2025 19:46

Nüüd sai info lisatud.

Teavita reeglite rikkumisest

Küsimus: private ID87262   16.02.2025 22:26
Tere,

Kas teil on olemas ehitusprojekt?

Teavita reeglite rikkumisest

Korraldaja vastus:
Hanke korraldaja ei ole küsimusele veel vastanud

Lisa küsimus

Lisa küsimus

Minu pakkumine

Reeglid

Pakkumise kirjelduse väli on mõeldud pakkumise detailsemaks lahti kirjutamiseks. Pikema teksti mugavaks sisestamiseks klikkige kasti paremal ülaservas oleval ikoonil.
Pakkumist tehes on keelatud postitada enda kontaktandmeid (nimi, telefon, aadress jne). Me jälgime ja analüüsime pakkumisi, et vältida pettuseid ja reeglite rikkumisi.
Rikkumise puhul kasutajakonto blokeeritakse.

 

Vanemad teated:

Vaata kõiki

Sellel veebilehel kasutatakse küpsiseid. Kasutamist jätkates nõustute küpsiste kasutamisega.

Sulge
 
Minu pakkumine

Reeglid

Pakkumise kirjelduse väli on mõeldud pakkumise detailsemaks lahti kirjutamiseks. Pikema teksti mugavaks sisestamiseks klikkige kasti paremal ülaservas oleval ikoonil.
Pakkumist tehes on keelatud postitada enda kontaktandmeid (nimi, telefon, aadress jne). Me jälgime ja analüüsime pakkumisi, et vältida pettuseid ja reeglite rikkumisi.
Rikkumise puhul kasutajakonto blokeeritakse.