+ Lisa oma töö      

Otsid ehitajat "Katusetööd" valdkonnast?

Parima pakkumise ja teostaja leidmiseks lisa oma töö.

Sindelkatus vanale majale

ID 110207

984 vaatamist

Prindi

  • check Pakkumiste tegemine
    kuni 19.02.2025
  • check Võitja valik kuni
    26.02.2025
  • 3 Töö teostamine
    ja hinnang
Hanke lõpp: K, 19. veebruar, 2025
Maakond: Saaremaa
Muu asula: Tornimäe
Tööde lõpp: Kokkuleppel
Ehitusmaterjalid: Töö tegija poolt
Soovin pakkumisi: Summa kogu projektile

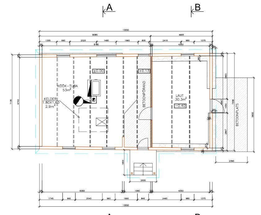
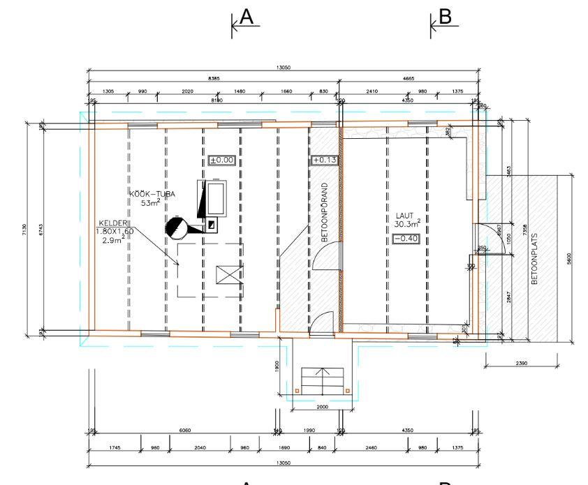
Töö sisu

Tere!
Sooviks planeerida sindelkatust.
Olemasolev olukord fotodel, samuti mõõdud.

Säilitame olemasoleva katuse vormi ja kuju, aga ühtlustada tuleb praeguse katuse kaks eraldi tsooni.
Tulemuseks peaks olema ühe harjakõrgusega ühtlane katus.

Vajadusel planeerida ja kalkuleerida uus roovitus, sarikapalke pole ilmselt tarvis vahetada. Kui selgub, et ikkagi on, siis seda käsitleme eraldi tööna.

Tõenäoline töö aeg on august-september 2025.

Kui pakute hinda, siis kasuks tuleb hinnajaotus 4-5 reaga, näiteks kulu materjalidele, sindlitele jt.

Lgp

Pildid, video ja failid

Hanke korraldaja: ettevõte ID72365

Pakkumised

Pakkumisi kokku: 0

Küsimused hanke korraldajale

Hanke korraldajale ei ole veel küsimusi esitatud.

Lisa küsimus

Lisa küsimus

Minu pakkumine

Reeglid

Pakkumise kirjelduse väli on mõeldud pakkumise detailsemaks lahti kirjutamiseks. Pikema teksti mugavaks sisestamiseks klikkige kasti paremal ülaservas oleval ikoonil.
Pakkumist tehes on keelatud postitada enda kontaktandmeid (nimi, telefon, aadress jne). Me jälgime ja analüüsime pakkumisi, et vältida pettuseid ja reeglite rikkumisi.
Rikkumise puhul kasutajakonto blokeeritakse.

 

Teisi töid samas valdkonnas

Valdkonnas "Katusetööd" on 9 aktiivset tööd

no-img Pilt puudub

Käidava katuse PVC 54m2

Asukoht: Harjumaa, Muraste
Aega jäänud: 4p 17h
Tehtud pakkumisi: 3

Garaaži katuse vahetamine

Asukoht: Harjumaa, Viimsi
Aega jäänud: 13p 17h
Tehtud pakkumisi: 2

Vanemad teated:

Vaata kõiki

Sellel veebilehel kasutatakse küpsiseid. Kasutamist jätkates nõustute küpsiste kasutamisega.

Sulge
 
Minu pakkumine

Reeglid

Pakkumise kirjelduse väli on mõeldud pakkumise detailsemaks lahti kirjutamiseks. Pikema teksti mugavaks sisestamiseks klikkige kasti paremal ülaservas oleval ikoonil.
Pakkumist tehes on keelatud postitada enda kontaktandmeid (nimi, telefon, aadress jne). Me jälgime ja analüüsime pakkumisi, et vältida pettuseid ja reeglite rikkumisi.
Rikkumise puhul kasutajakonto blokeeritakse.