+ Lisa oma töö      

Otsid ehitajat "Betoonitööd" valdkonnast?

Parima pakkumise ja teostaja leidmiseks lisa oma töö.

Betoonvöö

ID 110147

1408 vaatamist

Prindi

  • check Pakkumiste tegemine
    kuni 25.02.2025
  • check Võitja valik kuni
    04.03.2025
  • 3 Töö teostamine
    ja hinnang
Hanke lõpp: T, 25. veebruar, 2025
Maakond: Harjumaa
Linn: Tallinn
Tööde lõpp: Kokkuleppel
Ehitusmaterjalid: Töö tegija poolt
Soovin pakkumisi: Summa kogu projektile

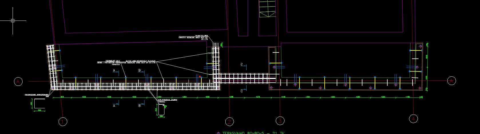
Töö sisu

Ainult betoonitöö. Armeerimine, raketis, betoneerimine, sidumine vana vundamendiga, raketis lahti, plats puhtaks.

Pildid, video ja failid

Hanke korraldaja: ettevõte ID4773

Pakkumised

Pakkumisi kokku: 2

Ettevõte Summa Käibemaks Lisatud Vestlus
Kasutaja ikoon ID87958
Pakkuja profiil Väike nool paremale
7 880€ KM lisandub KM lisandub 19.02.2025 Vestlus (0)

Pakkumise kirjeldus:

Tere,
antud pakkumine on lähtuv Teie poolt edastatud töö sisust koos ehitusmaterjalidega:
1)armeerimine
2)raketise ehitus
3)sidumine vana vundamendiga
4)betoneerimine
5)raketise demonteerimine
6)töömaa koristus

Antud pakkumine võib muutuda lisainfo ilmnedes.
Lisainfoks avada vestlus.

Lugupidamisega

Kasutaja ikoon ID88107
Pakkuja profiil Väike nool paremale
700€ KM lisandub KM lisandub 23.02.2025 Vestlus (0)

Pakkumise kirjeldus:

Tere! Projekte ei jätku, seega panin hinnaks 1M3. See on tööjõu, betooni, armatuuri, raketise hind

Küsimused hanke korraldajale

Küsimus: private ID38464   11.02.2025 19:17
Tere. Jooniseid pdf-ina?

Teavita reeglite rikkumisest

Korraldaja vastus: 12.02.2025 07:42

DWG siis ainult

Teavita reeglite rikkumisest

Küsimus: private ID81836   12.02.2025 17:29
Tere,
kui vana vundamendiga tegu on?

Teavita reeglite rikkumisest

Korraldaja vastus: 12.02.2025 18:05

Vana vundament on 90a vana. Uus läheb täpselt vana kõrvale. Sama kõrgusega mõlemad.

Teavita reeglite rikkumisest

Küsimus: private ID87958   17.02.2025 11:51
Tere, kas pakkumine esitada ainult hankes kirjeldatud tööle või tööle koos materjaliga?

Lugupidamisega

Teavita reeglite rikkumisest

Korraldaja vastus: 20.02.2025 13:35

Töö ja materjal ikka kokku. V-lja arvatud killustikalus, vaiad

Teavita reeglite rikkumisest

Lisa küsimus

Lisa küsimus

Minu pakkumine

Reeglid

Pakkumise kirjelduse väli on mõeldud pakkumise detailsemaks lahti kirjutamiseks. Pikema teksti mugavaks sisestamiseks klikkige kasti paremal ülaservas oleval ikoonil.
Pakkumist tehes on keelatud postitada enda kontaktandmeid (nimi, telefon, aadress jne). Me jälgime ja analüüsime pakkumisi, et vältida pettuseid ja reeglite rikkumisi.
Rikkumise puhul kasutajakonto blokeeritakse.

 

Teisi töid samas valdkonnas

Valdkonnas "Betoonitööd" on 5 aktiivset tööd

Betoonist platsi valamine väljas.

Asukoht: Harjumaa, Luige
Aega jäänud: 15h 27 min
Tehtud pakkumisi: 4

Betoonpõranda valu

Asukoht: Harjumaa, Jõelähtme
Aega jäänud: 2p 15h
Tehtud pakkumisi: 3

Vanemad teated:

Vaata kõiki

Sellel veebilehel kasutatakse küpsiseid. Kasutamist jätkates nõustute küpsiste kasutamisega.

Sulge
 
Minu pakkumine

Reeglid

Pakkumise kirjelduse väli on mõeldud pakkumise detailsemaks lahti kirjutamiseks. Pikema teksti mugavaks sisestamiseks klikkige kasti paremal ülaservas oleval ikoonil.
Pakkumist tehes on keelatud postitada enda kontaktandmeid (nimi, telefon, aadress jne). Me jälgime ja analüüsime pakkumisi, et vältida pettuseid ja reeglite rikkumisi.
Rikkumise puhul kasutajakonto blokeeritakse.