+ Lisa oma töö      

Otsid ehitajat "Ventilatsioonitööd" valdkonnast?

Parima pakkumise ja teostaja leidmiseks lisa oma töö.

Eramu ventilatsioonitööd

ID 109976

1288 vaatamist

Prindi

  • check Pakkumiste tegemine
    kuni 14.02.2025
  • check Võitja valik kuni
    21.02.2025
  • 3 Töö teostamine
    ja hinnang
Hanke lõpp: R, 14. veebruar, 2025
Maakond: Lääne-Virumaa
Muu asula: Altja
Tööde lõpp: R, 14. märts, 2025
Ehitusmaterjalid: Töö tegija poolt
Soovin pakkumisi: Summa kogu projektile

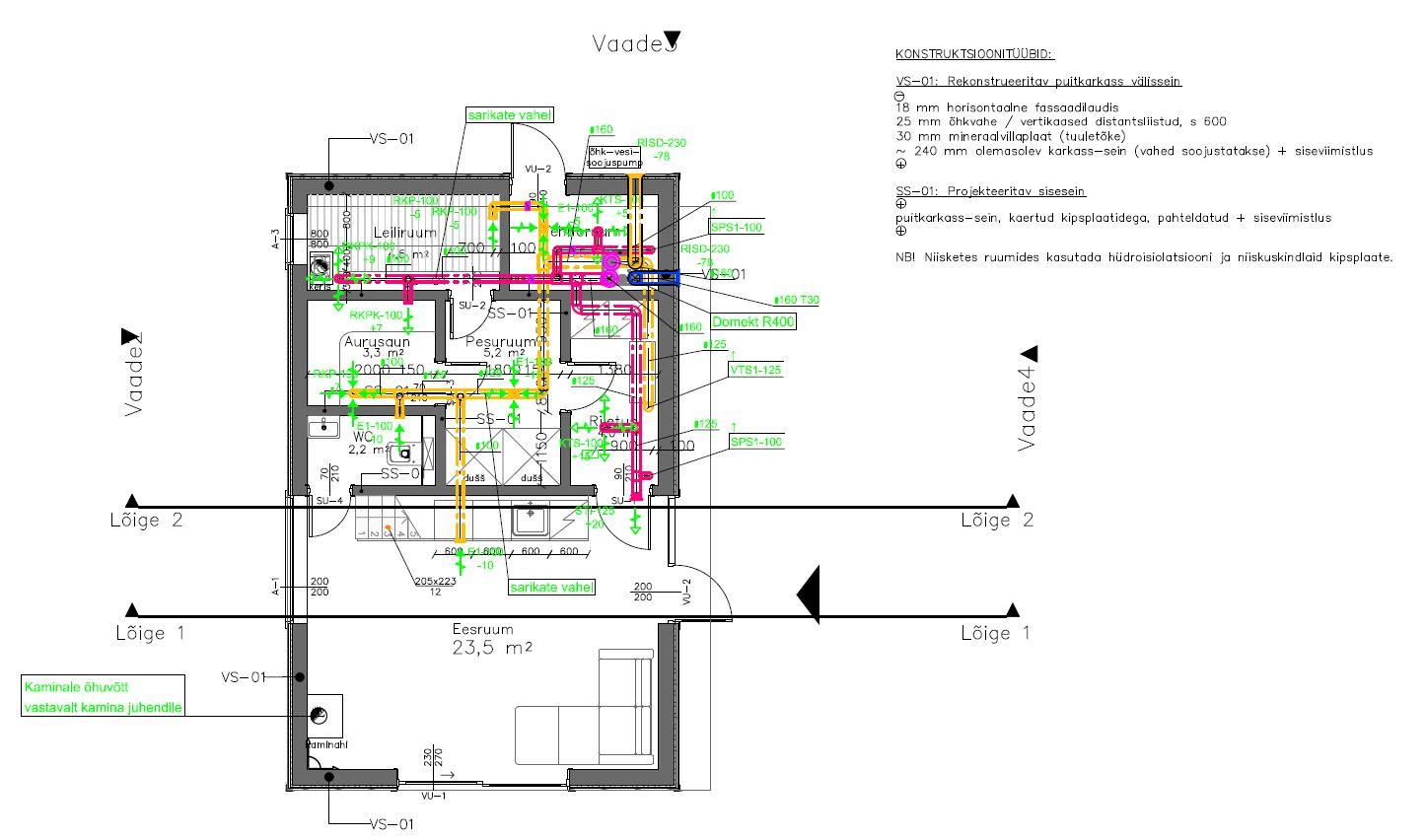
Töö sisu

Väikese ca 60 m2 maja ventilatsioonitööd kogu mahus.
Kahekorruseline.

Töö aeg:
Alustada saab ca 13 veebruar.
Märtsi lõpus kipsitööde lõpp.
Ilmselt kohapeal vaja käia 3-4 korda.
Töid saab teostada igapäevaselt, paindlikult.

Ventilatsiooniagregaat on olemas tellijal.

Maja karkass ja olukord:
Enamus puitkarkassil kipsseinad ja torud laetalade all, 1 läbiviik 150mm fibost.
Lagi 150mm puitprussid.
Märjad ruumid ripplagedega (ruumi on).
Kõik karkassid on hetkel avatud.
1 kor lae kõrgus 2,5m.
Majas vesi.
Majas ca 15C.

Töö/pakkumuse hinda arvestada:
1. Töö
2. Materjalide tarne (torud, plafoonid, kinnitusvahendid jm), v.a agregaat
3. Transport
4. Garantii
5. Agregaadi paigaldus ja ühendamine

Töö hinda ei kuulu:
1. Mõõtmine+akt
2. Elektritööd
3. Agregaadi tarne

Arveldamine arvetega, max 3 osas. Makse tähtaeg 7 pv.

Pildid, video ja failid

Hanke korraldaja: ettevõte ID72365

Pakkumised

Pakkumisi kokku: 5

Ettevõte Summa Käibemaks Lisatud Vestlus
Kasutaja ikoon ID52325
Pakkuja profiil Väike nool paremale
5 214,5€ Sisaldab KM Sisaldab KM 07.02.2025 Vestlus (0)

Pakkumise kirjeldus:

Tere,

Pakkumine sisaldab vent süsteemi paigaldust (sh. puurimistööd, välisõhu torustiku isoleerimine ja agregaadi paigaldus) vastavalt põhiprojektile.
Hinnas on kõik vajaminevad sertifitseeritud materjalid ning transpordikulud.
Sooviks objektiga varasemalt tutvuda ning arutaks asja veel üle.
Töö tegemise aeg on ca 4 päeva ja saaksime alust ... Rohkem

Kasutaja ikoon ID60355
Pakkuja profiil Väike nool paremale
2 680€ KM lisandub KM lisandub 08.02.2025 Vestlus (8)

Pakkumise kirjeldus:

Töö 1150
Materjalid 1130
transport 200
garantii kuulub hinda
agregaadi paigaldus 200

Kasutaja ikoon ID86464
Pakkuja profiil Väike nool paremale
4 205€ Sisaldab KM Sisaldab KM 10.02.2025 Vestlus (0)

Pakkumise kirjeldus:

Materjalid 1150
Abi materjalid 150
Augud 225
Paigaldus ja transport 2500
Isolatsioon ja paigaldus 180

4205

Kasutaja ikoon ID76141
Pakkuja profiil Väike nool paremale
2 888€ KM lisandub KM lisandub 11.02.2025 Vestlus (2)
Kasutaja ikoon ID7685
Pakkuja profiil Väike nool paremale
5 400€ KM lisandub KM lisandub 11.02.2025 Vestlus (0)

Pakkumise kirjeldus:

Hinnapakkumine sisaldab:
Materjal
Paigaldus
Transport

Küsimused hanke korraldajale

Hanke korraldajale ei ole veel küsimusi esitatud.

Lisa küsimus

Lisa küsimus

Minu pakkumine

Reeglid

Pakkumise kirjelduse väli on mõeldud pakkumise detailsemaks lahti kirjutamiseks. Pikema teksti mugavaks sisestamiseks klikkige kasti paremal ülaservas oleval ikoonil.
Pakkumist tehes on keelatud postitada enda kontaktandmeid (nimi, telefon, aadress jne). Me jälgime ja analüüsime pakkumisi, et vältida pettuseid ja reeglite rikkumisi.
Rikkumise puhul kasutajakonto blokeeritakse.

 

Vanemad teated:

Vaata kõiki

Sellel veebilehel kasutatakse küpsiseid. Kasutamist jätkates nõustute küpsiste kasutamisega.

Sulge
 
Minu pakkumine

Reeglid

Pakkumise kirjelduse väli on mõeldud pakkumise detailsemaks lahti kirjutamiseks. Pikema teksti mugavaks sisestamiseks klikkige kasti paremal ülaservas oleval ikoonil.
Pakkumist tehes on keelatud postitada enda kontaktandmeid (nimi, telefon, aadress jne). Me jälgime ja analüüsime pakkumisi, et vältida pettuseid ja reeglite rikkumisi.
Rikkumise puhul kasutajakonto blokeeritakse.