+ Lisa oma töö      

Otsid ehitajat "Siseviimistlustööd" valdkonnast?

Parima pakkumise ja teostaja leidmiseks lisa oma töö.

Nelja toa remont

ID 109680

2180 vaatamist

Prindi

  • check Pakkumiste tegemine
    kuni 02.03.2025
  • check Võitja valik kuni
    09.03.2025
  • 3 Töö teostamine
    ja hinnang
Hanke lõpp: P, 2. märts, 2025
Maakond: Tartumaa
Tööde lõpp: P, 31. august, 2025
Ehitusmaterjalid: Töö tegija poolt
Soovin pakkumisi: Tüki- või ühikuhinda

Töö sisu

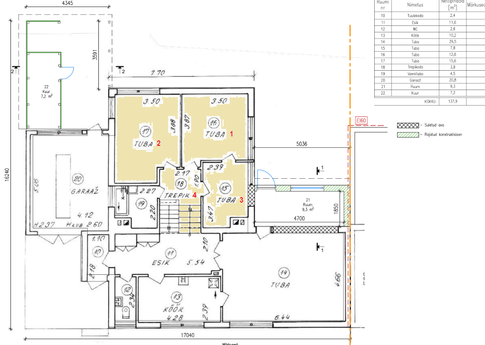
Otsime ettevõtet, kes viimistleks uueks meie 80ndatest pärit Tartu linna eramu kolm magamistuba ja nendevahelise koridori. Kuulutusele on lisatud 1) pildid igast toast, 2) tabelite kujul tööde nimekirjad iga toa kohta eraldi, mis sisaldavad ka infot materjalide kohta, mis on hetkel seinas, laes ja põrandal, ning 3) tubade mõõtmetega plaanid, kus on vana elektri asukohad märgitud oranžiga ning uute, soovitud elektrijuhtmete asukohad märgitud roheliste kastide abil.

Tööde nimekirjad me koostasime nii täpselt, kui oskasime, aga ilmselgelt on seal hulk asju vaja eraldi kokku leppida, nii et andke teada, kuidas teile kõige mugavam oleks.

Pildid, video ja failid

Hanke korraldaja: eraisik ID48913

Pakkumised

Pakkumisi kokku: 12

Ettevõte Summa Käibemaks Lisatud Vestlus
Kasutaja ikoon ID65367
Pakkuja profiil Väike nool paremale
25 680€ KM lisandub KM lisandub 01.02.2025 Vestlus (0)

Pakkumise kirjeldus:

Tere.
Pakkumine on koostatud vastavalt piltidele ja seletuskirjadele.Sisaldab kõiki töid koos elektriga.Olemas mehed ja load et seda teostada .Täpsema pakkumise tegemiseks peab nägema,

Kasutaja ikoon ID54056
Pakkuja profiil Väike nool paremale
23 786€ KM lisandub KM lisandub 06.02.2025 Vestlus (0)
Kasutaja ikoon ID87640
Pakkuja profiil Väike nool paremale
21 960€ Ei ole KMKR Ei ole KMKR 15.02.2025 Vestlus (0)
Kasutaja ikoon ID4459
Pakkuja profiil Väike nool paremale
18 400€ Ei ole KMKR Ei ole KMKR 16.02.2025 Vestlus (0)

Pakkumise kirjeldus:

Hinnapakkumine tehtud hankes oleva info ja piltide põhjal töödele, üldehitus materjalidele (viimistlusmaterjalid tellijalt), prahi utiliseerimisele. Täpsema ja detailsema hinna saab öelda kohapealset olukorda nähes ja tellijaga arutades. (hinnakõikumine võib olla 20%.) Töödele leping,, garantii

Kasutaja ikoon ID85299
Pakkuja profiil Väike nool paremale
24 890€ Ei ole KMKR Ei ole KMKR 17.02.2025 Vestlus (0)
Kasutaja ikoon ID88025
Pakkuja profiil Väike nool paremale
13 600€ KM lisandub KM lisandub 18.02.2025 Vestlus (0)

Pakkumise kirjeldus:

Tere. Olen hankes uus kuid töid palju teinud (vaadake minu pilte).
Väga hästi või isegi liiga põhjalikul tehtud teie seletuskiri. äitäh.
Oleme ausad ja tööd on teil palju kuid varasemad pakkumised tekitavad muige näole.
Ma ei hakka üksikasjalikult lahti kirjutama, kuid see on täpselt see mida ma teha oskan/tahan.- muuta vana ilusaks.
Palju on ... Rohkem

Kasutaja ikoon ID40475
Pakkuja profiil Väike nool paremale
18 200€ KM lisandub KM lisandub 19.02.2025 Vestlus (0)

Pakkumise kirjeldus:

Tere! Pikaajaline ehitus-, viimistlustööde kogemus ( 26 a ). Head !

Kasutaja ikoon ID54304
Pakkuja profiil Väike nool paremale
30€ Ei ole KMKR Ei ole KMKR 21.02.2025 Vestlus (0)

Pakkumise kirjeldus:

See seinte viimistluse m2 hind koos materjaliga.

Kasutaja ikoon ID77868
Pakkuja profiil Väike nool paremale
6 700€ KM lisandub KM lisandub 26.02.2025 Vestlus (0)

Pakkumise kirjeldus:

Elektritööde osa

Kasutaja ikoon ID87354
Pakkuja profiil Väike nool paremale
7 500€ Sisaldab KM Sisaldab KM 02.03.2025 Vestlus (0)
Kasutaja ikoon ID46881
Pakkuja profiil Väike nool paremale
23 895€ KM lisandub KM lisandub 02.03.2025 Vestlus (0)
Kasutaja ikoon ID82196
Pakkuja profiil Väike nool paremale
20€ KM lisandub KM lisandub 02.03.2025 Vestlus (0)

Pakkumise kirjeldus:

Tere!

Meie pakkumine on 20€/h töölise kohta. Materjal arvete alusel jooksvalt. Rohkem infot vestluses.

Lugupidamisega,
R&P

Küsimused hanke korraldajale

Küsimus: private ID30215   10.02.2025 21:46
Kas katuse probleemid on lahendatud enne tööde alustamist?

Teavita reeglite rikkumisest

Korraldaja vastus: 10.02.2025 23:20

Jah, lekkeprobleeme pole.

Teavita reeglite rikkumisest

Küsimus: private ID67766   27.02.2025 16:37
Tere.Kas korter on tühi ja kas remondi ajal elatakse sees.Parimat soovides

Teavita reeglite rikkumisest

Korraldaja vastus:
Hanke korraldaja ei ole küsimusele veel vastanud

Lisa küsimus

Lisa küsimus

Minu pakkumine

Reeglid

Pakkumise kirjelduse väli on mõeldud pakkumise detailsemaks lahti kirjutamiseks. Pikema teksti mugavaks sisestamiseks klikkige kasti paremal ülaservas oleval ikoonil.
Pakkumist tehes on keelatud postitada enda kontaktandmeid (nimi, telefon, aadress jne). Me jälgime ja analüüsime pakkumisi, et vältida pettuseid ja reeglite rikkumisi.
Rikkumise puhul kasutajakonto blokeeritakse.

 

Teisi töid samas valdkonnas

Valdkonnas "Siseviimistlustööd" on 24 aktiivset tööd

Korteri remont

Asukoht: Harjumaa, Muraste
Aega jäänud: 2p 5h
Tehtud pakkumisi: 15

Seinte pahteldus ja värvimine

Asukoht: Harjumaa, Türisalu
Aega jäänud: 3p 5h
Tehtud pakkumisi: 7

Vanemad teated:

Vaata kõiki

Sellel veebilehel kasutatakse küpsiseid. Kasutamist jätkates nõustute küpsiste kasutamisega.

Sulge
 
Minu pakkumine

Reeglid

Pakkumise kirjelduse väli on mõeldud pakkumise detailsemaks lahti kirjutamiseks. Pikema teksti mugavaks sisestamiseks klikkige kasti paremal ülaservas oleval ikoonil.
Pakkumist tehes on keelatud postitada enda kontaktandmeid (nimi, telefon, aadress jne). Me jälgime ja analüüsime pakkumisi, et vältida pettuseid ja reeglite rikkumisi.
Rikkumise puhul kasutajakonto blokeeritakse.