+ Lisa oma töö      

Otsid ehitajat "Küttesüsteemid" valdkonnast?

Parima pakkumise ja teostaja leidmiseks lisa oma töö.

Uus küttesüsteem eramule

ID 109416

2020 vaatamist

Prindi

  • check Pakkumiste tegemine
    kuni 26.02.2025
  • check Võitja valik kuni
    05.03.2025
  • 3 Töö teostamine
    ja hinnang
Hanke lõpp: K, 26. veebruar, 2025
Maakond: Jõgevamaa
Muu asula: Kurista
Tööde lõpp: N, 31. juuli, 2025
Ehitusmaterjalid: Töö tellija poolt
Soovin pakkumisi: Tüki- või ühikuhinda

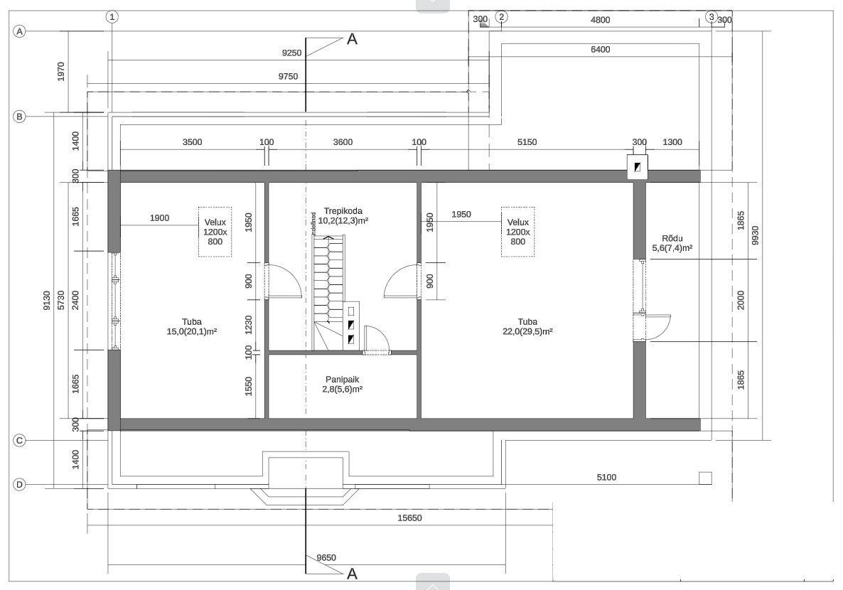
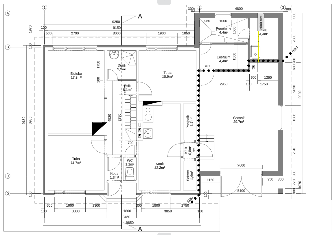
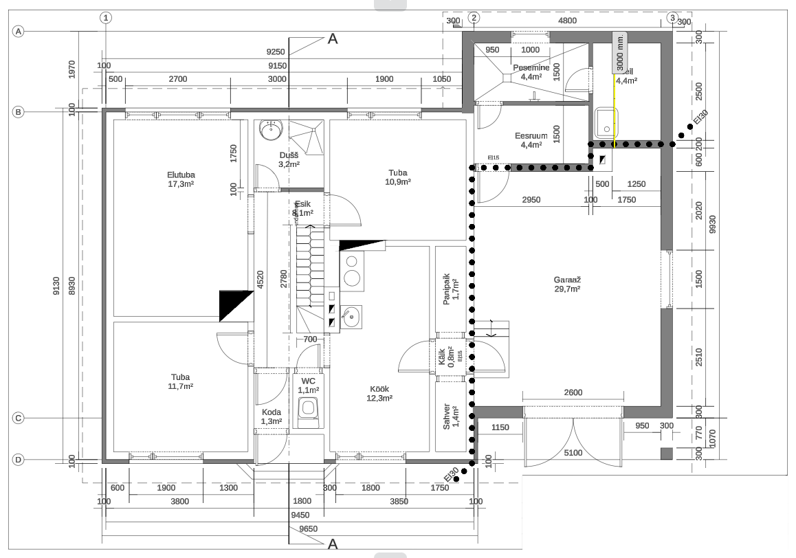
Töö sisu

Soovin pakkumist radiaatorite paigalduseks koos maakütte või õhk-vesi soojuspumba paigalduseks.
Pakkumine peab sisaldama radiaatorite paigaldust, küttesüsteemi paigaldust koos eeldatava kuluarvestusega maja 1. ja 2. korruse küttekuludest aastaringselt.
Radiaatorite paigaldus ei ole võimalik igale poole, seega projektis peab täpsemalt minuga kooskõlastama kuhu need asetatakse ja kuidas veetakse torustik. Küttesüsteemi paigaldus on võimalik külma garaazi või kompkasse (sõtub selle suurusest ja ruumi vajadusest)

Pildid, video ja failid

Hanke korraldaja: eraisik ID87581

Pakkumised

Pakkumisi kokku: 1

Ettevõte Summa Käibemaks Lisatud Vestlus
Kasutaja ikoon ID87664
Pakkuja profiil Väike nool paremale
18 550€ KM lisandub KM lisandub 02.02.2025 Vestlus (1)

Pakkumise kirjeldus:

Radiaatorid,materjalid,radiaatori trasside vedamine,õhk-vesi soojuspump daikin 8kw integreeritud boileriga 180l,akupaak 200l

Küsimused hanke korraldajale

Küsimus: private ID80302   27.01.2025 22:50
Tere.

Nagu kirjelduses aru saada siis kütteprojekti teil pole? Alustage sellest!

Teavita reeglite rikkumisest

Korraldaja vastus: 29.01.2025 08:33

Jah, kütte projekti mul ei ole, aga kui keeruline see ikka olla saab!

Teavita reeglite rikkumisest

Lisa küsimus

Lisa küsimus

Minu pakkumine

Reeglid

Pakkumise kirjelduse väli on mõeldud pakkumise detailsemaks lahti kirjutamiseks. Pikema teksti mugavaks sisestamiseks klikkige kasti paremal ülaservas oleval ikoonil.
Pakkumist tehes on keelatud postitada enda kontaktandmeid (nimi, telefon, aadress jne). Me jälgime ja analüüsime pakkumisi, et vältida pettuseid ja reeglite rikkumisi.
Rikkumise puhul kasutajakonto blokeeritakse.

 

Teisi töid samas valdkonnas

Valdkonnas "Küttesüsteemid" on 2 aktiivset tööd

no-img Pilt puudub

Küttesüsteemi püstakute vahetus ja radiaatoritega ühendamine

Asukoht: Järvamaa, Paide
Aega jäänud: 3p 19h
Tehtud pakkumisi: 2

Cooper&Hunter Consol Inverter 18

Asukoht: Harjumaa, Tallinn
Aega jäänud: 19h 50 min
Tehtud pakkumisi: 1

Vanemad teated:

Vaata kõiki

Sellel veebilehel kasutatakse küpsiseid. Kasutamist jätkates nõustute küpsiste kasutamisega.

Sulge
 
Minu pakkumine

Reeglid

Pakkumise kirjelduse väli on mõeldud pakkumise detailsemaks lahti kirjutamiseks. Pikema teksti mugavaks sisestamiseks klikkige kasti paremal ülaservas oleval ikoonil.
Pakkumist tehes on keelatud postitada enda kontaktandmeid (nimi, telefon, aadress jne). Me jälgime ja analüüsime pakkumisi, et vältida pettuseid ja reeglite rikkumisi.
Rikkumise puhul kasutajakonto blokeeritakse.