+ Lisa oma töö      

Otsid ehitajat "Mööbli kokkupanek ja paigaldus" valdkonnast?

Parima pakkumise ja teostaja leidmiseks lisa oma töö.

Hange on lõppenud!

Võitjaks osutus kasutaja ID 48876

Korraldaja hinnang tehtud tööle

1.0
05.08.2025
Töökiirus: 12345
Kvaliteet: 12345
Hind: 12345

Meil oli algusest peale töö tegijaga kokkulepe, et mõningad tööd lükkuvad materjali tarne tõttu edasi. Kuigi ma ei olnud sellega arvestanud kuid tulin siiski vastu siis inimlikel põhjustel lükkusid edasi pidevalt ka olemasolevate asjade paigaldus, isegi kui algselt olime kokku leppinud kolme päevaga esimese osa paigaldusega. Töö tegija oli paindlik ja tuli kaasa muudatustega, mis seoses mööbliosadega, mis algse plaani kohaselt paigaldatud sai, välja vahetada tuli. Kahjuks selgus, et paigalduses ilmnes väga palju vigu, nii mööbli, tehnika kui ka köögi seinte kahjustamist. Mul on kahju, et uskusin antud hinnanguid siin portaalis, mis kinnitasid, et tegemist on pädeva paigaldajaga. Tulenevalt sellest pidin ebakvaliteetse töö tulemusel tegema lisakulutusi nii uue materjali ostmiseks kui uue töömehe palkamiseks. Ei soovita! - Liisa V.

Näita pilte (15) Peida pildid

Enne:

  • IMG_1197.jpeg
  • IMG_1201.jpeg

Pärast:

  • IMG_5861.jpeg
  • IMG_5860.jpeg
  • IMG_5858.jpeg
  • IMG_5862.jpeg
  • IMG_5863.jpeg
  • IMG_1383.jpeg
  • IMG_1379.jpeg
  • IMG_1378.jpeg
  • IMG_1377.jpeg
  • IMG_1376.jpeg
  • IMG_1375.jpeg
  • IMG_1374.jpeg
  • IMG_1875.jpeg

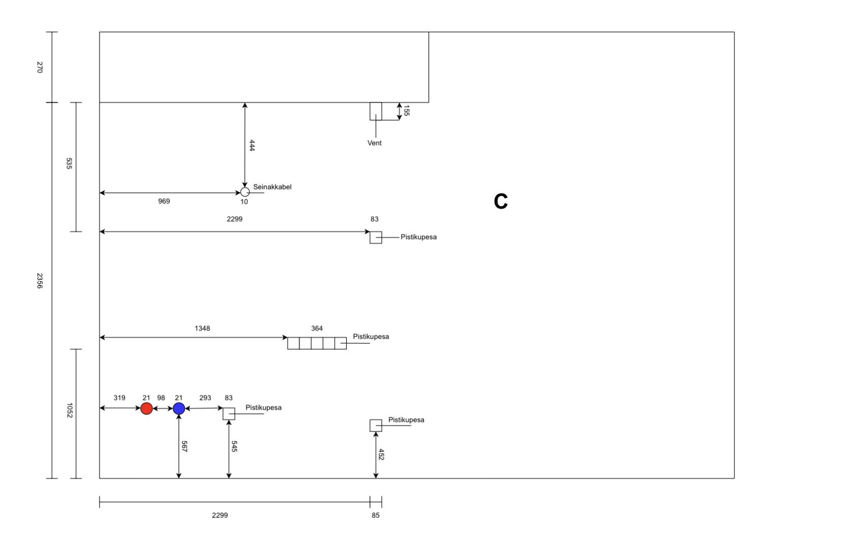
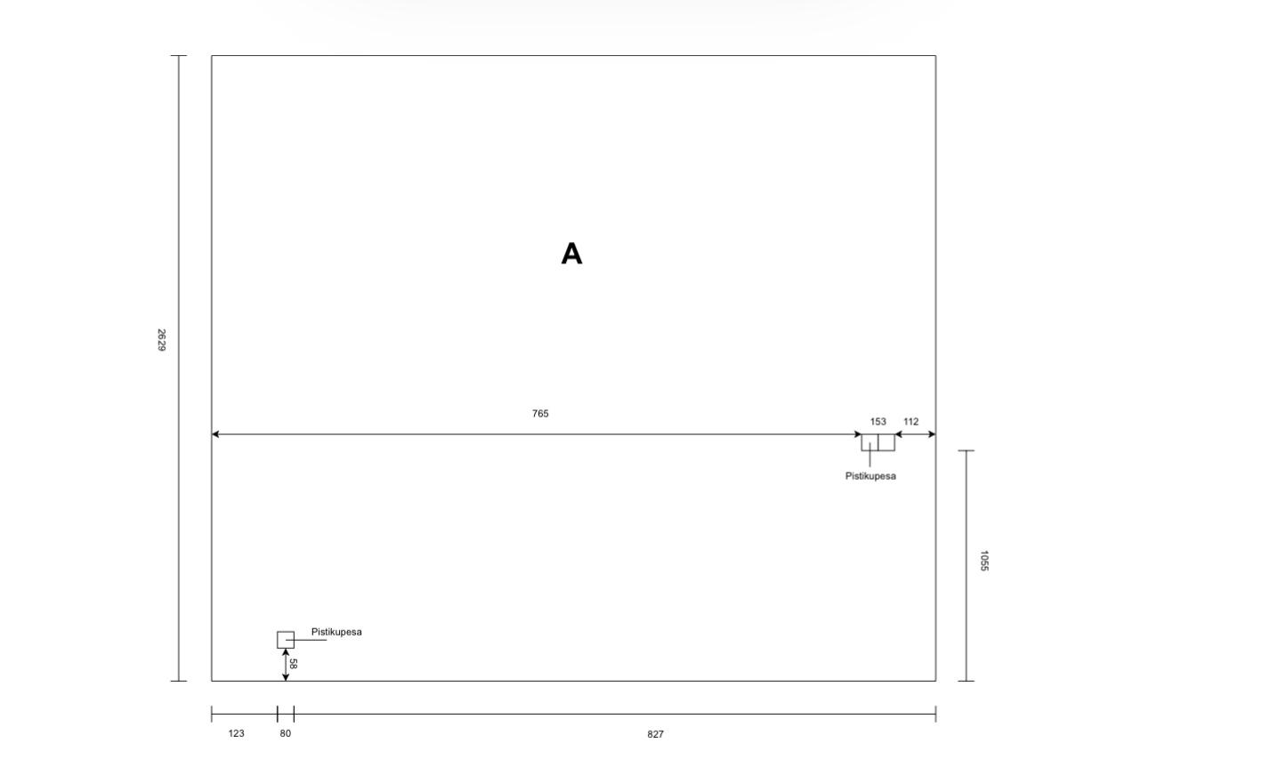
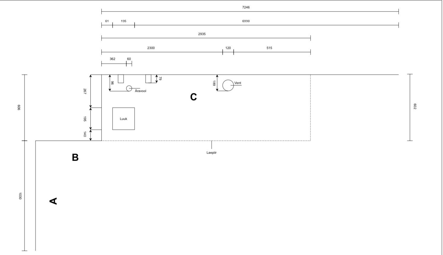
Ikea köögimööbli paigaldamine koos tehnikaga

ID 109403

1365 vaatamist

Prindi

  • check Pakkumiste tegemine
    kuni 29.01.2025
  • check Võitja valik kuni
    05.02.2025
  • 3 Töö teostamine
    ja hinnang
Hanke lõpp: K, 29. jaanuar, 2025
Maakond: Harjumaa
Linn: Tallinn
Tööde lõpp: Kokkuleppel
Ehitusmaterjalid: Töö tellija poolt
Soovin pakkumisi: Summa kogu projektile

Pildid, video ja failid

Hanke korraldaja: eraisik ID87571

Pakkumised

Pakkumisi kokku: 16

Ettevõte Summa Käibemaks Lisatud Vestlus
Kasutaja ikoon ID48876
Pakkuja profiil Väike nool paremale
740€ Ei ole KMKR Ei ole KMKR 26.01.2025 Vestlus (22)

Pakkumise kirjeldus:

Tere

Pakkumine sisaldab kõiki töid(vesi/elekter). Kokkuleppel võimalik teostada ka pakendite ultiliseerimist. Võimekus leida parimad lahendused, kui midagi ei klapi ja ei peaks sobima nagu algsel plaanil. Võimekus teostada alates 03.02.

Kasutaja ikoon ID52325
Pakkuja profiil Väike nool paremale
335€ KM lisandub KM lisandub 26.01.2025 Vestlus (0)

Pakkumise kirjeldus:

Pakkumine sisaldab mööbli komplekteerimist koos tehnikaga ning viimistlemist.

Saaksin alustada esmaspäeval

Kasutaja ikoon ID77266
Pakkuja profiil Väike nool paremale
790€ Ei ole KMKR Ei ole KMKR 27.01.2025 Vestlus (0)

Pakkumise kirjeldus:

Pakkumine sisaldab mööbli kokkupanekut ja paigaldust koos tehnikaga.

Lugupidamisega
T.K.

Kasutaja ikoon ID86096
Pakkuja profiil Väike nool paremale
460€ Sisaldab KM Sisaldab KM 27.01.2025 Vestlus (3)

Pakkumise kirjeldus:

Hind sisaldab kõik tarvikuid mööbli kinnitamiseks seina külge ja segisti ühindamiseks.
Võtab 3 p.

Kasutaja ikoon ID77473
Pakkuja profiil Väike nool paremale
900€ Ei ole KMKR Ei ole KMKR 27.01.2025 Vestlus (0)

Pakkumise kirjeldus:

edu hankel

Kasutaja ikoon ID87462
Pakkuja profiil Väike nool paremale
1 500€ Sisaldab KM Sisaldab KM 27.01.2025 Vestlus (0)
Kasutaja ikoon ID74460
Pakkuja profiil Väike nool paremale
850€ Ei ole KMKR Ei ole KMKR 27.01.2025 Vestlus (0)
Kasutaja ikoon ID70509
Pakkuja profiil Väike nool paremale
1 500€ KM lisandub KM lisandub 27.01.2025 Vestlus (0)
Kasutaja ikoon ID71075
Pakkuja profiil Väike nool paremale
950€ KM lisandub KM lisandub 27.01.2025 Vestlus (0)
Kasutaja ikoon ID63159
Pakkuja profiil Väike nool paremale
800€ KM lisandub KM lisandub 28.01.2025 Vestlus (0)

Pakkumise kirjeldus:

Mööbli kokkupanek ja paigaldus, vajalikud ühendused.

Kasutaja ikoon ID79431
Pakkuja profiil Väike nool paremale
1 000€ Ei ole KMKR Ei ole KMKR 28.01.2025 Vestlus (0)
Kasutaja ikoon ID83541
Pakkuja profiil Väike nool paremale
700€ KM lisandub KM lisandub 29.01.2025 Vestlus (0)

Pakkumise kirjeldus:

Tere, paigaldame teie köögi koos tehnikaga kvaliteetselt ja lühikese ajaga.

Kasutaja ikoon ID40222
Pakkuja profiil Väike nool paremale
1 050€ Ei ole KMKR Ei ole KMKR 29.01.2025 Vestlus (0)

Pakkumise kirjeldus:

Tere!
Mööbli paigaldus + ühendused (vesi, elekter, vent).

Parimat

Kasutaja ikoon ID80832
Pakkuja profiil Väike nool paremale
1 320€ Sisaldab KM Sisaldab KM 29.01.2025 Vestlus (0)

Pakkumise kirjeldus:

Suur kogemus Ikea köögidega.
See projekt arvestasin võtab 4-5 päeva .

Kasutaja ikoon ID86959
Pakkuja profiil Väike nool paremale
580€ KM lisandub KM lisandub 29.01.2025 Vestlus (36)

Pakkumise kirjeldus:

Tere, pakkumine tehtud vastavalt saadud infole hanke kirjelduses.
Sisaldab kappide monteerimist. Seina paigaldamist. Tasapinna mõõtu lõikamist. Tehnika paigaldamist. Segisti ja valamu paigaldus ning ühendamine. Vajalikke ühenduste hermetiseerimist.
Jäätmete utiliseerimine!

Lisaküsimuste korral vastan meeleldi!
Lugupidamisega.

Kasutaja ikoon ID83634
Pakkuja profiil Väike nool paremale
950€ Ei ole KMKR Ei ole KMKR 29.01.2025 Vestlus (0)

Küsimused hanke korraldajale

Küsimus: private ID72269   29.01.2025 16:12
Tere,

Palun täpsustada mis materjalist olete planeerinud töötasapinna taguse seina ning kas see peab pakkumises kajastuma?

Parimat,

Olev

Teavita reeglite rikkumisest

Korraldaja vastus:
Hanke korraldaja ei ole küsimusele veel vastanud

Lisa küsimus

Lisa küsimus

Minu pakkumine

Reeglid

Pakkumise kirjelduse väli on mõeldud pakkumise detailsemaks lahti kirjutamiseks. Pikema teksti mugavaks sisestamiseks klikkige kasti paremal ülaservas oleval ikoonil.
Pakkumist tehes on keelatud postitada enda kontaktandmeid (nimi, telefon, aadress jne). Me jälgime ja analüüsime pakkumisi, et vältida pettuseid ja reeglite rikkumisi.
Rikkumise puhul kasutajakonto blokeeritakse.

 

Vanemad teated:

Vaata kõiki

Sellel veebilehel kasutatakse küpsiseid. Kasutamist jätkates nõustute küpsiste kasutamisega.

Sulge
 
Minu pakkumine

Reeglid

Pakkumise kirjelduse väli on mõeldud pakkumise detailsemaks lahti kirjutamiseks. Pikema teksti mugavaks sisestamiseks klikkige kasti paremal ülaservas oleval ikoonil.
Pakkumist tehes on keelatud postitada enda kontaktandmeid (nimi, telefon, aadress jne). Me jälgime ja analüüsime pakkumisi, et vältida pettuseid ja reeglite rikkumisi.
Rikkumise puhul kasutajakonto blokeeritakse.